**Standout Features:**
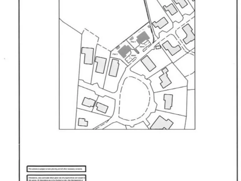
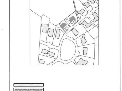
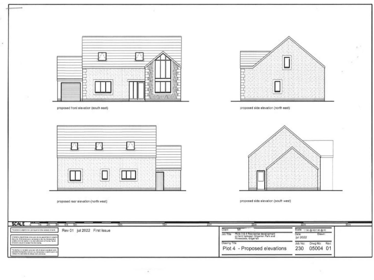
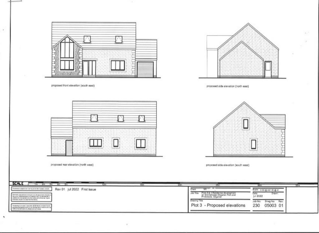
- Building plot of approximately 513 sqm situated in the village of Gilgarran.
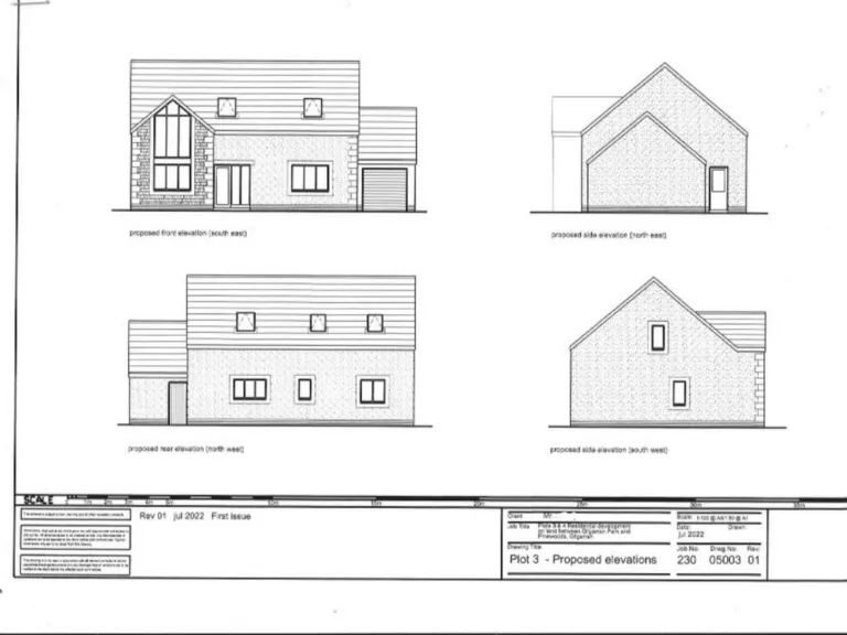
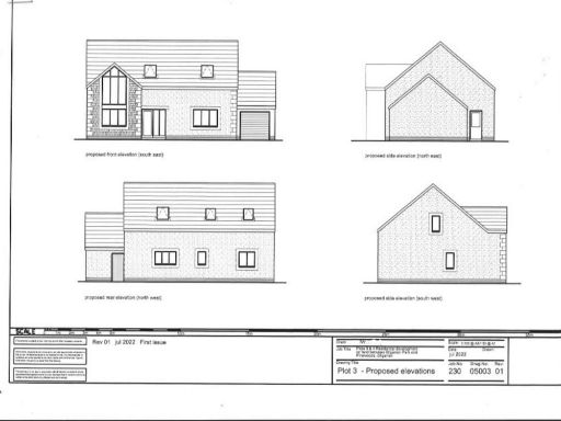
- Full planning permission granted for a spacious 4/5 bedroom detached dwelling.
- Foundations already laid, offering significant savings on upfront costs.
- Prime central village location, with scenic woodland views and easy access to neighboring towns (Workington, Whitehaven, Cockermouth).
- All essential services readily available on-site.
- Flexible design options to personalize your future home.
**Summary:**
Seize the opportunity to create your dream home on the last available plot in the delightful village of Gilgarran! At approximately 513 sqm, this building plot comes with full planning permission for a 4/5 bedroom detached property, with foundations already laid to accelerate your build process. Nestled amidst idyllic open countryside, this location offers serene living while being just a short drive to local amenities and stunning areas of the Lake District National Park.
With no time constraints for amendments, you can customize the layout of your future home to fit your needs—whether that's a spacious family kitchen or additional bedrooms. This plot provides both a tranquil setting and accessibility to essential services and schools, making it ideal for families or as an investment. Don’t let this unique opportunity pass you by; take the first step towards building your bespoke residence in a picturesque community. Act now to secure your future in this sought-after area!
Plot for sale in Building Plot 2 At Townhead, Sandwith, Whitehaven, Cumbria, CA28 — £75,000 • 1 bed • 1 bath
Plot for sale in Building Plot 4 At Townhead, Sandwith, Whitehaven, Cumbria, CA28 — £95,000 • 1 bed • 1 bath
Plot for sale in West Road, Kirkland, CA26 — £83,000 • 1 bed • 1 bath
Plot for sale in Self-Build Bungalows, Bonny Meadows, Moresby Parks, CA28 — £125,000 • 1 bed • 1 bath • 1308 ft²
Plot for sale in Gatehead, Great Clifton, Workington, CA14 1TN, CA14 — £45,000 • 3 bed • 1 bath • 6000 ft²
Plot for sale in Plot 19, Self Build House, Bonny Meadows, Moresby Parks, CA28 — £135,000 • 1 bed • 1 bath • 5618 ft²














































