SY13 4HW - 3 bedroom barn conversion for sale in Norbury, Nr Whitchurc…

View on Property Piper

3 bedroom barn conversion for sale in Norbury, Nr Whitchurch, Cheshire., SY13

Summary - THE VILLA, SWANWICK GREEN SY13 4HW

3 bed 1 bath Barn Conversion

**Standout Features:**
- Beautiful and spacious 3-bedroom barn conversion.
- Blend of character charm and modern enhancements.
- Located at the end of a private drive in a semi-rural setting.
- Stunning gardens with open views and a peaceful courtyard.
- Ample parking and an electric vehicle charging point.
- Potential for further renovations to suit personal tastes.
- No onward chain; available for immediate possession.

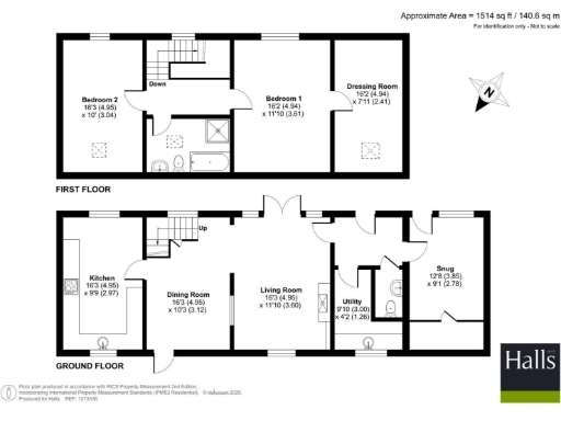
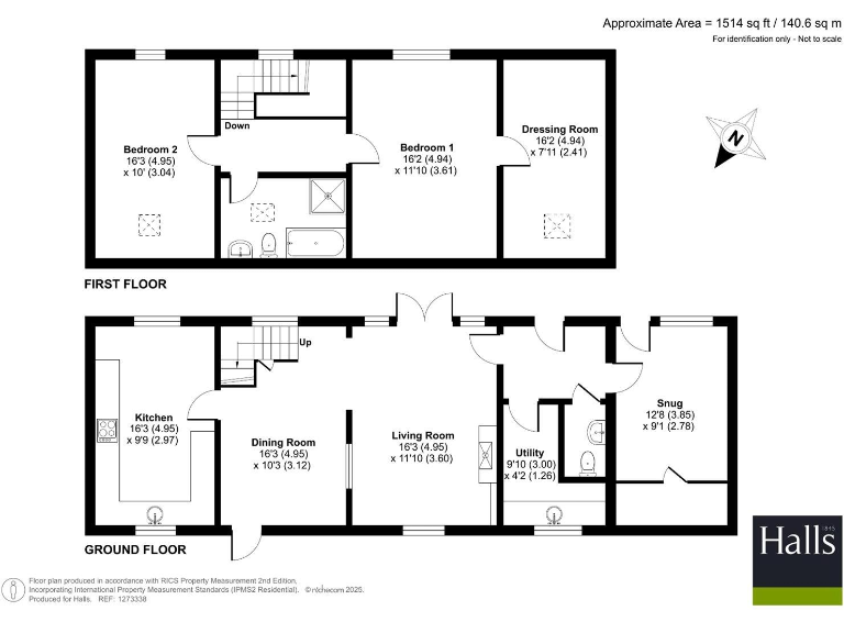
Nestled in the idyllic hamlet of Norbury, this charming 3-bedroom barn conversion offers spacious living while encapsulating the rustic beauty of Cheshire. With 1,514 sq ft of thoughtfully laid-out space, the property features a welcoming kitchen, two generous reception rooms with exposed brick walls and a cozy fireplace, and versatile bedroom arrangements, including a dressing room that could easily serve as an en-suite. The expansive gardens provide the ideal backdrop for relaxation or entertaining, alongside a private courtyard perfectly positioned to catch the morning sun.

The Barn House stands out not just for its aesthetic appeal but also for its exceptional potential. Set within a stunning semi-rural location, it offers easy access to village amenities in nearby Wrenbury and the wider offerings of Whitchurch and Malpas. Ideal for families, retirees, or investors, this property combines a tranquil lifestyle with modern conveniences and low council tax costs. Don't miss your chance to make this picturesque barn house your new home—the perfect blend of heritage and comfort awaits!

Property Details

Brochure Descriptions

Image Descriptions

Floorplan Description

Rooms

Textual Property Features

Detected Visual Features

Nearby Schools

Nearest Bars And Restaurants

,,,,}

Nearest General Shops

,,}

Nearest Grocery shops

,,}

Nearest Supermarkets

,,}

Nearest Religious buildings

,,}

Nearest Medical buildings

,,,}

Nearest Leisure Facilities

,,,,}

Nearest Tourist attractions

,,}

Nearest Train stations

,,,,}

Nearest Bus stations and stops

,,,,}

Nearest Hotels

,,}

Tags

Local Market Stats

Similar Properties

Meta

High Res Images

Compatible Images

Low res Images

Thumbnails

Raw Images

High Res Floorplan Images

Compatible Floorplan Images

Low res Floorplan Images

FloorplanImages Thumbnail

Raw Floorplan Images