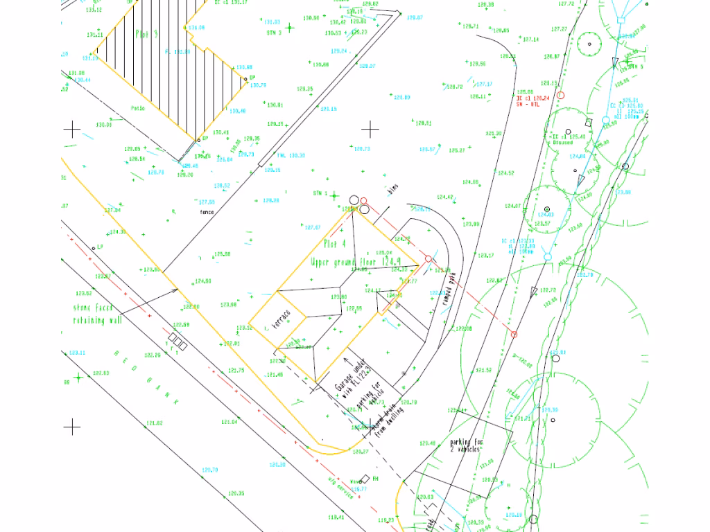
Affordable building plot with approved plans and elevated views across Welshpool.
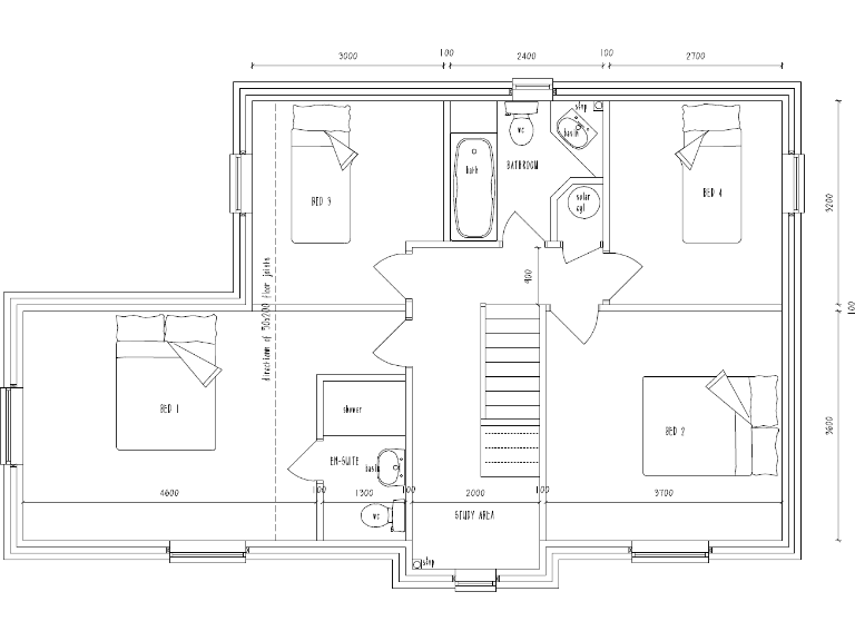
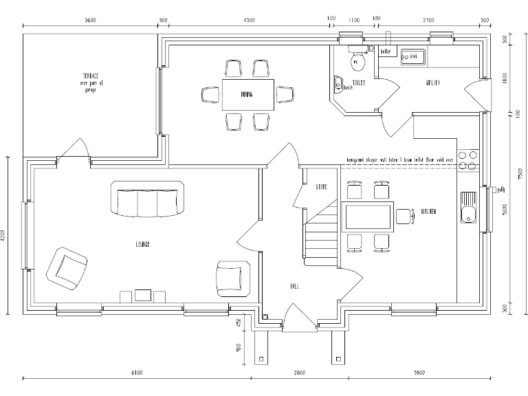
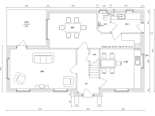
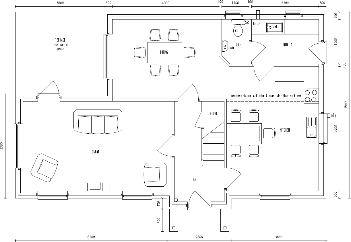
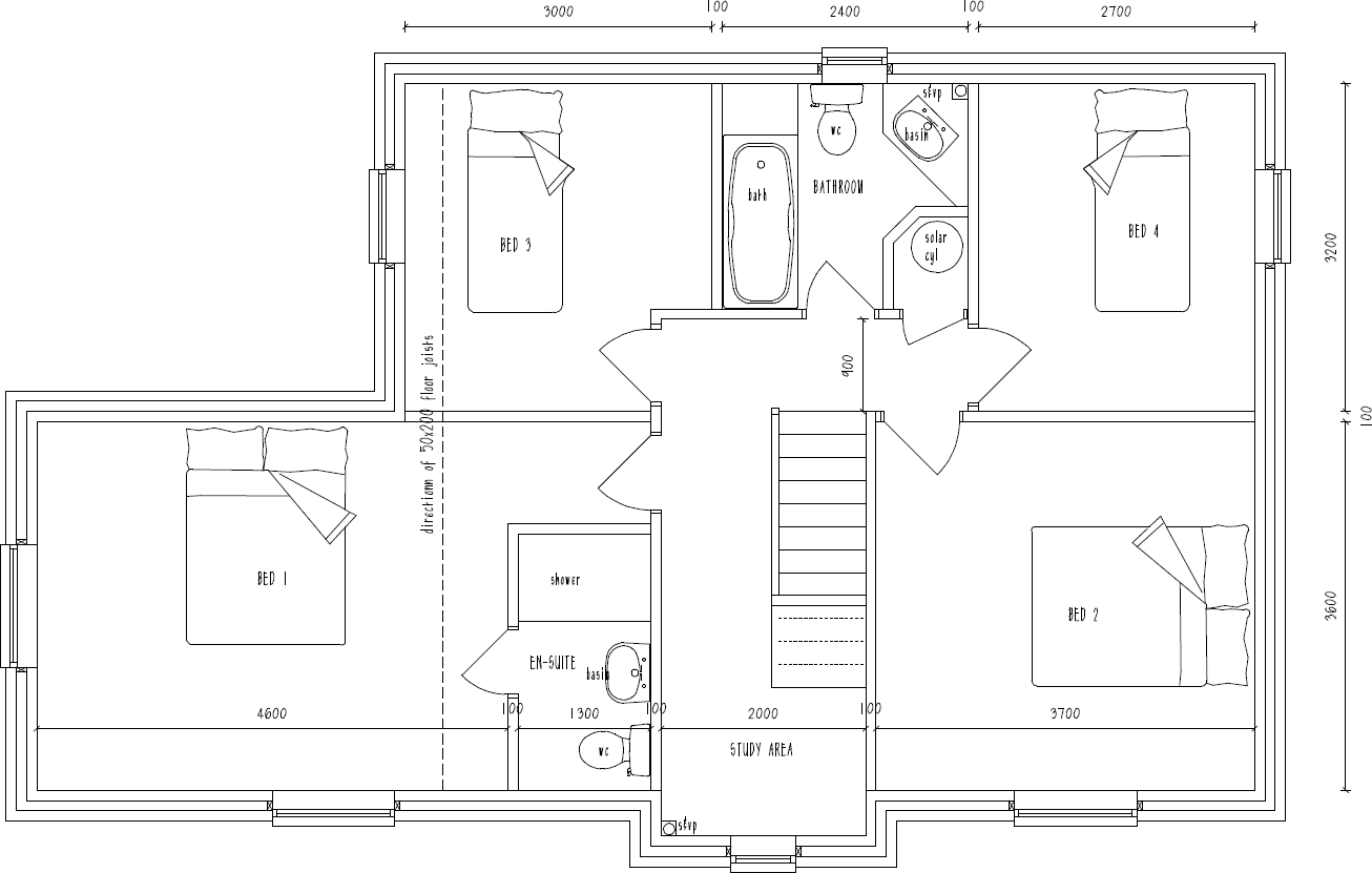
Full planning permission for detached four-bedroom house and garage
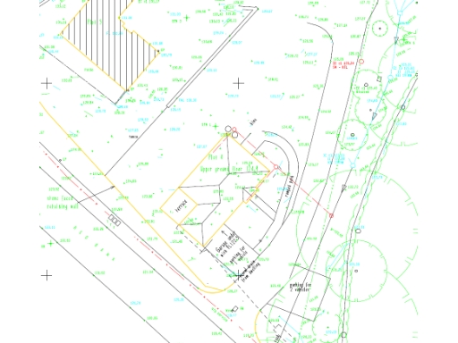
An individual, freehold building plot on Red Bank with full planning permission for a detached four-bedroom house and garaging. The site sits on a raised, large plot with planned modern elevations and promises elevated views across Welshpool towards Powys Castle. Its price reflects a plot sale only; the approved scheme is for a two-storey, contemporary home rather than a finished property.
This location places the plot within walking distance of local amenities — shops, café, library, post box and bus stops — in a small town / town-fringe setting. Mobile signal is excellent and broadband speeds are fast, which supports modern living and home working. Flood risk is listed as no risk and the plot benefits from countryside scenery on the approach road.
Important practical points are straightforward: full planning permission has been granted for a single building plot and garage, tenure is freehold, and the site is described as a new-build opportunity. Buyers should budget for all construction costs, statutory connections and any landscaping beyond the approved drawings, as the sale is for the plot only. Council tax and some service details are not provided and should be confirmed before exchange.
Note the wider local context: the area is classified as very deprived and recorded crime is average. That may influence mortgage offers, lettings demand or long-term value for some buyers. This plot will suit a buyer or small developer seeking an affordable build opportunity with planning consent and attractive elevated views rather than someone wanting a move-in ready home.
Detached house for sale in Olivers Lane, Tregynon, Newtown, Powys, SY16 — £100,000 • 1 bed • 1 bath
Land for sale in Bwlch-Y-Cibau, Llanfyllin, SY22 — £325,000 • 1 bed • 1 bath
4 bedroom detached house for sale in Plot 4, Tregynon, Newtown, SY16 — £110,000 • 4 bed • 2 bath • 1845 ft²
Land for sale in Development Land adjacent to Swan Bank. Pool Quay, SY21 — £150,000 • 1 bed • 1 bath • 2604 ft²
Plot for sale in Raven Square, Welshpool, Powys, SY21 — £30,000 • 1 bed • 1 bath
4 bedroom detached house for sale in 9, Long Mountain View, Trewern, Welshpool, SY21 — £395,000 • 4 bed • 2 bath • 1095 ft²






















































