Turnkey seaside holiday let two minutes from the beach and local eateries.
Fully furnished luxury 2-bed lodge with integrated appliances
Just a two-minute walk to Aldeburgh beach and seafront
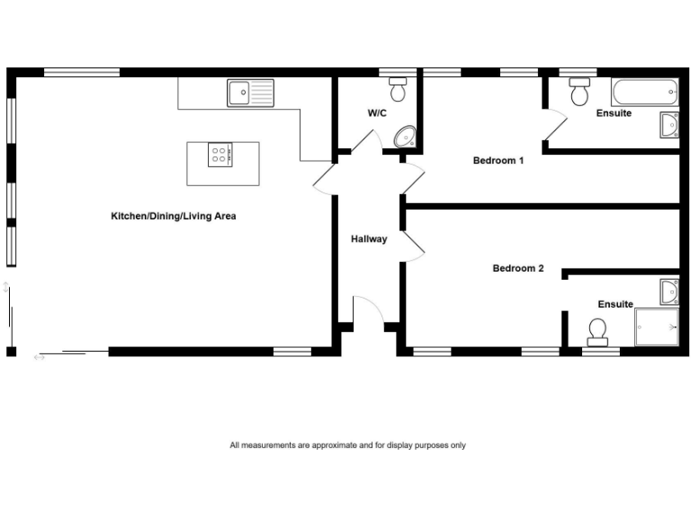
Two ensuite bedrooms; bright open-plan living with deck access
Ready to let immediately with 10-year manufacturer warranty
Annual pitch fee £6,750; electric/LPG and insurance extra
30-year licence term — lenders may refuse mortgage finance
Park closed 12 Jan–4 Mar; not permitted as main residence
Short lease means limited long-term residential security
This ready-to-go Tingdene Havana lodge is a turnkey luxury holiday home two minutes from Aldeburgh beach. Fully furnished with integrated appliances and contemporary open-plan living, it targets short-break rentals or private seaside escape. The property sits on Marsh View within an Area of Outstanding Natural Beauty and benefits from fast broadband and nearby restaurants and galleries.
The internal layout includes a bright open-plan living/dining/kitchen with deck access, two ensuite bedrooms, utility room and separate WC. The lodge is sold with a 10-year warranty and comes equipped for immediate letting, reducing upfront costs and downtime for income generation.
Buyers should note material constraints: the unit is sold on a 30-year licence agreement and many mortgage lenders will decline to lend on such a short term. The annual pitch fee is £6,750 (covers water, grounds maintenance, CCTV, waste, business rates and fibre Wi‑Fi) and electricity/LPG and insurance are charged separately. The park is closed annually from 12 January to 4 March, and the lodges cannot be used as a main residence.
This opportunity suits buyers seeking a high-spec holiday-let near the coast who accept park tenure and management rules. If immediate rental income and low setup effort are priorities, this lodge is a strong shortlist candidate; buyers needing traditional mortgage finance or long-term residential security should consider the lease limitations carefully.
2 bedroom lodge for sale in Marsh View, Church Farm Holiday Park, Church Farm Road, Aldeburgh, Suffolk, IP15 — £350,000 • 2 bed • 2 bath • 536 ft²
2 bedroom lodge for sale in Marsh View, Church Farm Holiday Park, Aldeburgh, IP15 — £350,000 • 2 bed • 1 bath
2 bedroom lodge for sale in Marsh View, Church Farm Holiday Park, Aldeburgh, IP15 — £425,000 • 2 bed • 2 bath
2 bedroom lodge for sale in Marsh View, Church Farm Holiday Park, Aldeburgh, IP15 — £300,000 • 2 bed • 2 bath
2 bedroom lodge for sale in Marsh View, Church Farm Holiday Park, Aldeburgh, IP15 — £475,000 • 2 bed • 2 bath
2 bedroom villa for sale in Cliff House Holiday Park, Dunwich, IP17 — £299,950 • 2 bed • 2 bath • 473 ft²


























































































