NN6 6HH - 4 bed welford country retreat in South Kilworth Road, NN6 6…

View on Property Piper

4 bedroom barn conversion for sale in South Kilworth Road, Welford, Northampton, NN6

Summary - The Barn, Court Lane Farm, South Kilworth Road, Welford, NORTHAMPTON NN6 6HH

4 bed 2 bath Barn Conversion

High-spec home on 0.8 acre with double garage and panoramic fields.
High-spec barn conversion with contemporary finishes
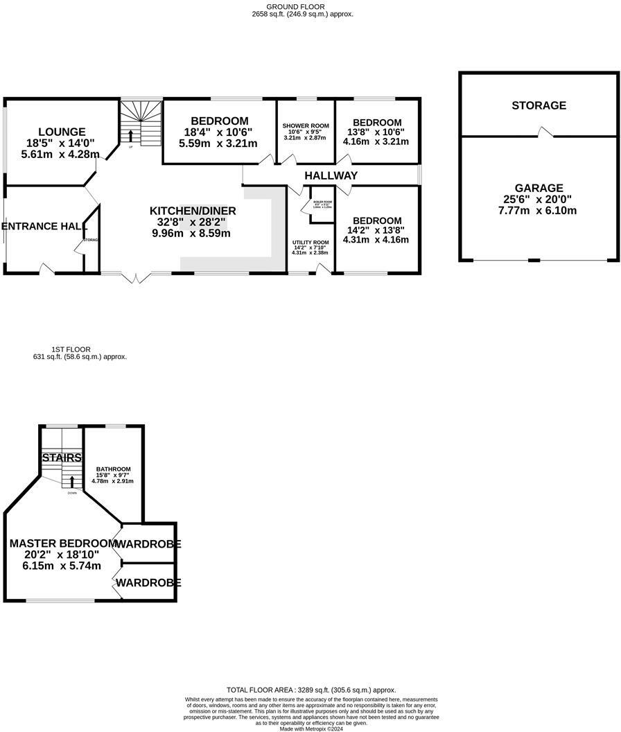
Set just outside Welford, this high-spec barn conversion sits within a very large 0.8 acre plot and combines contemporary appointments with generous living space. The open-plan kitchen/dining/family room is the home's social hub, featuring a central granite island and large picture windows that frame countryside views. High vaulted ceilings, bi-fold doors and a bespoke staircase lead to a substantial master suite with double-aspect views, two walk-in wardrobes and an ensuite.

Practical strengths include a double garage (double width) with space to park up to four cars on the drive, fast broadband and excellent mobile signal—useful for working from home in this rural setting. The property offers flexible accommodation across two floors: three double bedrooms on the ground floor, principal suite above, plus two modern bathrooms and a utility/boiler room.

Notable considerations: the house lies in an isolated hamlet setting so daily amenities will require driving; council tax is described as expensive. There are only two bathrooms for four bedrooms, which may matter for larger households. The home is presented to a high standard and appears move-in ready, but buyers seeking an urban location or immediate public transport links should note the rural location.

Property Details

Brochure Descriptions

Image Descriptions

Floorplan Description

Rooms

Textual Property Features

Target Audience

AI Tags

Detected Visual Features

Nearby Schools

Nearest Bars And Restaurants

,,,,}

Nearest General Shops

,,}

Nearest Grocery shops

,,}

Nearest Supermarkets

,,}

Nearest Religious buildings

,,}

Nearest Medical buildings

,,,}

Nearest Airports

}

Nearest Leisure Facilities

,,,,}

Nearest Tourist attractions

,,}

Nearest Train stations

,,,,}

Nearest Bus stations and stops

,,,,}

Nearest Hotels

,,}

Tags

Local Market Stats

Similar Properties

Meta

High Res Images

Compatible Images

Low res Images

Thumbnails

Raw Images

High Res Floorplan Images

Compatible Floorplan Images

Low res Floorplan Images

FloorplanImages Thumbnail

Raw Floorplan Images