Roomy family dormer bungalow with garage and garden, close to Milford Haven amenities..
Three bedrooms with ground-floor bedroom and ensuite wetroom
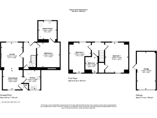
Lounge with double-aspect windows and wood-burning stove
Garage with pedestrian side door; gated front access
Freehold; approx. 1,339 sq ft internal space
Mains gas central heating with underfloor heating; double glazing
EPC rating D — potential energy and running-cost improvements needed
Located on small plot; limited outside space for extension
Wider area shows high crime and significant deprivation
Set on the edge of Milford Haven, this three-bedroom dormer bungalow offers a practical family layout with easy access to local shops, schools and the marina. The lounge has double-aspect windows and a log burner, creating a warm, sociable living space that looks onto the enclosed rear garden. Ground-floor living and a ground-floor bedroom with ensuite wetroom make day-to-day life flexible for families or those needing single-level accommodation.
Practical features include a garage with pedestrian side access, mains gas central heating with underfloor heating, and double glazing installed post-2002. The property is freehold, generous in internal size (approx. 1,339 sq ft) and sits on a small, manageable plot with gated front access and a raised flower bed to the rear.
Buyers should note a few material points: the EPC is rated D, the wider area records higher crime levels and significant deprivation, and the plot is small compared with the house size. Some property records show mixed descriptions of built form (described as detached but also recorded as semi‑detached) — purchasers should confirm legal/title details. Services and appliances have not been tested.
This home will suit a family seeking roomy, comfortable accommodation near Milford Haven’s facilities, or buyers wanting a good-sized bungalow they can personalise. Its location offers convenience and strong communications (excellent mobile and fast broadband), while the garage and garden add everyday practicality.
3 bedroom bungalow for sale in Skomer Drive, Milford Haven, Pembrokeshire, SA73 — £339,000 • 3 bed • 2 bath • 1088 ft²
3 bedroom detached bungalow for sale in Gateholm Avenue, Milford Haven, SA73 — £299,950 • 3 bed • 3 bath • 1821 ft²
5 bedroom detached bungalow for sale in Steynton, SA73 — £325,000 • 5 bed • 3 bath • 1841 ft²
3 bedroom bungalow for sale in Woodland Crescent, MILFORD HAVEN, Dyfed, SA73 — £290,000 • 3 bed • 2 bath • 1419 ft²
3 bedroom bungalow for sale in Sardis, Milford Haven, Pembrokeshire, SA73 — £225,000 • 3 bed • 2 bath • 1551 ft²
4 bedroom bungalow for sale in Woodland Crescent, Milford Haven, Pembrokeshire, SA73 — £289,999 • 4 bed • 2 bath






























































































































