Three-bedroom period home with deep garden and garage, no onward chain..
Freshly decorated with new carpets throughout
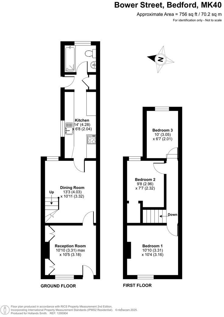
A freshly decorated Victorian terraced home just yards from Russell Park, offered with no onward chain. The house has two reception rooms, a kitchen and a ground-floor bathroom, plus three bedrooms across the upper floors. New carpets and replaced uPVC double glazing help make this ready to move into.
The rear garden is deeper than most in the street and is easy to maintain; there is also a garage providing off-street parking or storage. Gas-fired central heating with radiators gives reliable warmth and the property sits within walking distance of Castle Road’s independent coffee shops, delis, restaurants and well-regarded schools.
Practical points to note: the building is a late-Victorian solid brick terrace (pre-1900) and assumed to have no wall insulation. The Energy Performance Certificate is a D, and some exterior areas show signs that may indicate localized damp or need for repair. There is a single ground-floor bathroom, so a growing family may want to reconfigure or add facilities in future.
This house will suit buyers seeking a characterful, move-in-ready family home in a popular Bedford quarter, or investors looking for a period property with good rental demand and nearby amenities. The small plot and solid-wall construction offer scope for targeted improvements rather than major redevelopment.
 3 bedroom terraced house for sale in Bower Street, Bedford, MK40 — £320,000 • 3 bed • 1 bath • 905 ft²
 3 bedroom terraced house for sale in Bower Street, Bedford, MK40 — £320,000 • 3 bed • 1 bath • 905 ft² 3 bedroom terraced house for sale in Bower Street, Bedford, MK40 — £350,000 • 3 bed • 1 bath • 851 ft²
 3 bedroom terraced house for sale in Bower Street, Bedford, MK40 — £350,000 • 3 bed • 1 bath • 851 ft² 3 bedroom terraced house for sale in George Street, Bedford, MK40 — £410,000 • 3 bed • 1 bath • 1152 ft²
 3 bedroom terraced house for sale in George Street, Bedford, MK40 — £410,000 • 3 bed • 1 bath • 1152 ft² 3 bedroom terraced house for sale in Bower Street, Bedford, MK40 — £450,000 • 3 bed • 2 bath • 1194 ft²
 3 bedroom terraced house for sale in Bower Street, Bedford, MK40 — £450,000 • 3 bed • 2 bath • 1194 ft² 2 bedroom terraced house for sale in Pembroke Street, Bedford, MK40 — £350,000 • 2 bed • 1 bath • 948 ft²
 2 bedroom terraced house for sale in Pembroke Street, Bedford, MK40 — £350,000 • 2 bed • 1 bath • 948 ft² 3 bedroom house for sale in York Street, Bedford, MK40 — £310,000 • 3 bed • 1 bath • 921 ft²
 3 bedroom house for sale in York Street, Bedford, MK40 — £310,000 • 3 bed • 1 bath • 921 ft²










































