**Standout Features:**
- Larger-than-typical Victorian terraced home
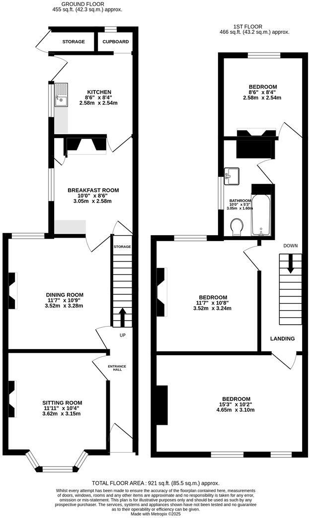
- 3 bedrooms and 1 bathroom, with potential for additional renovation 
- Two separate storage cupboards and multiple reception rooms
- Sunlit garden with a sunny west-facing aspect
- Close proximity to Russell Park and amenities
- Chain-free sale
**Potential Concerns:**
- Requires complete refurbishment throughout
- Dated decor and worn flooring
- Average plot size with limited outdoor space 
Welcome to this charming, larger-than-average Victorian terraced home conveniently located near Russell Park in Bedford. With three medium-sized bedrooms and a flexible layout, this property presents an exciting renovation opportunity for families or investors looking to craft their dream home. The current layout includes three reception rooms, a cozy kitchen, and a first-floor bathroom, providing a solid foundation for modern updates.
Step outside to enjoy a private, walled rear garden that basks in the warmth of a sunny west-facing aspect. Local amenities abound, with cafes, specialty shops, and recreational facilities just a short stroll away. This property offers not only a future filled with potential, but also a low-crime, family-friendly neighborhood, perfect for fostering community ties. While the house does require comprehensive refurbishment, it’s priced attractively at £310,000 and is available chain-free. Don't miss the chance to transform this character-rich home into your personal sanctuary in an affluent area with excellent schools and easy access to Bedford town center. Act quickly—opportunities like this don’t last long!























































