Village location near good schools with generous private garden and EV charging.
Estimated completion September 2025, early reservation available
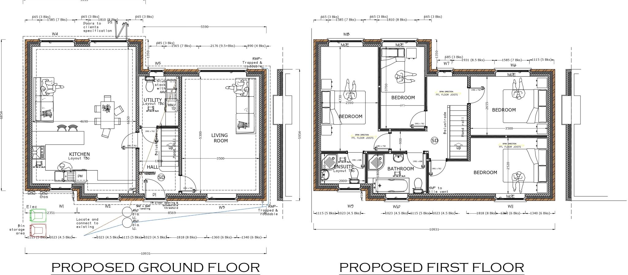
Ready for early reservation, this newly built four-bedroom house is due for completion in September 2025. The layout suits family life: a welcoming hallway, ground-floor utility/cloakroom, a through living room and an open-plan kitchen/diner with bi-fold doors opening onto a private rear garden. The kitchen will be fitted in a contemporary style with island, fan-assisted oven and granite-effect worktops.
Upstairs offers four bedrooms, with the principal bedroom served by an en-suite and a separate family bathroom with a shower. Practical features include off-street parking for two to three cars and an electric vehicle charging point. The property has gas central heating, uPVC double glazing and an Energy Rating estimated at B.
Set in Harby village in the Vale of Belvoir, the location provides village amenities—pub, primary school, garage/café—and easy road access to Melton Mowbray, Nottingham and Leicester. Local schools include a Good-rated village primary and an Outstanding primary nearby, making the address well-suited to families.
Buyers should note the house is under construction and some exterior landscaping is unfinished. Broadband speeds are reported slow and mobile signal is average. Construction details list system-built walls with insulation status unconfirmed, so buyers seeking maximum thermal performance should confirm final specifications before exchange.
4 bedroom detached house for sale in Stathern Lane, Harby, LE14 — £950,000 • 4 bed • 3 bath • 3100 ft²
4 bedroom detached house for sale in The Stable Yard, Flawborough, NG13 — £795,000 • 4 bed • 3 bath • 917 ft²
4 bedroom detached house for sale in Church Lane, Croxton Kerrial, Grantham, NG32 — £750,000 • 4 bed • 2 bath • 2073 ft²
3 bedroom semi-detached house for sale in The Stable Yard, Flawborough, NG13 — £395,000 • 3 bed • 2 bath • 2887 ft²
4 bedroom detached house for sale in Harding Close, Willoughby on the Wolds, LE12 — £600,000 • 4 bed • 2 bath • 1804 ft²
5 bedroom detached house for sale in West Thorpe, Willoughby on the Wolds, LE12 — £1,169,950 • 5 bed • 4 bath • 3381 ft²


























































































































