High-spec four-bedroom new build with countryside views and large garage — sold off-plan.
4 double bedrooms with en-suite and family bathroom
Open-plan living/dining/kitchen fitted to a high standard
Air Source heat pump; underfloor heating to ground floor
Large garage, sweeping driveway and generous gardens
Off-plan sale — build starts after legal purchase commitment
Completion timescale to be agreed; not suitable for immediate move-in
Provision for EV charging; high-spec double glazing throughout
10-year warranty provided by the developer
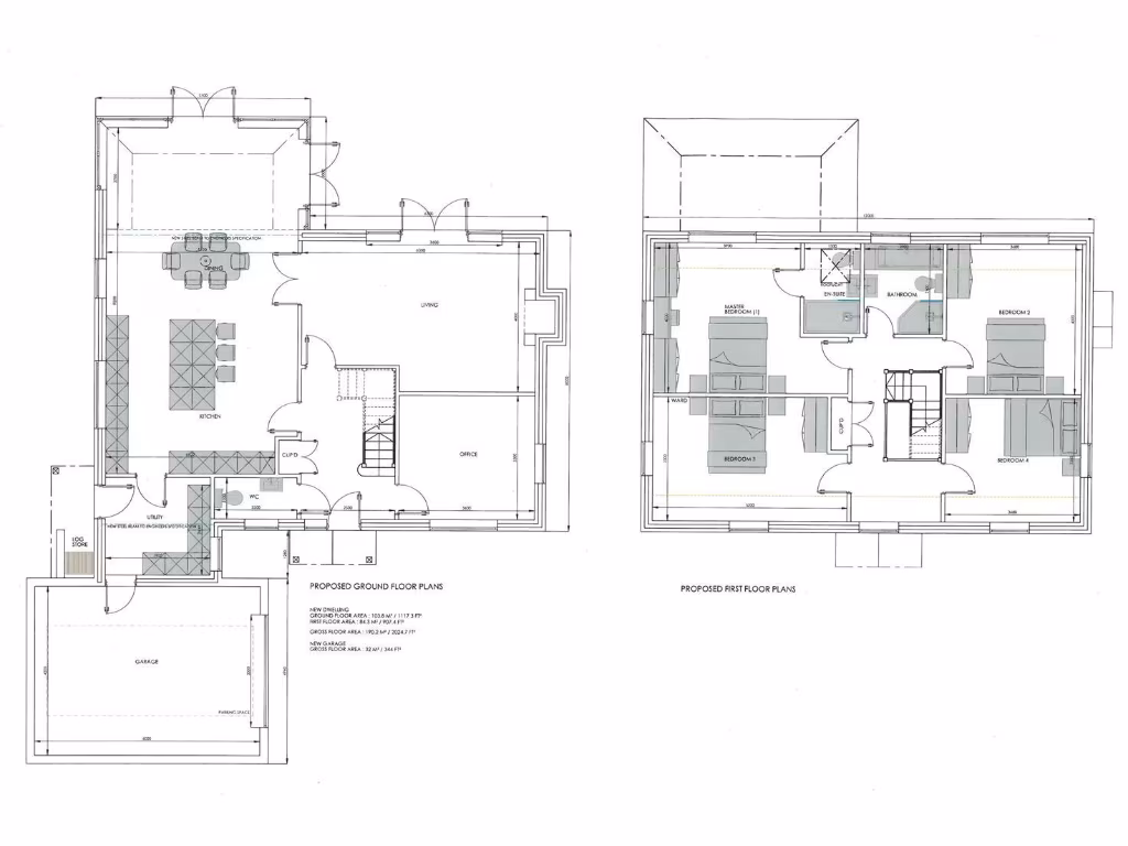
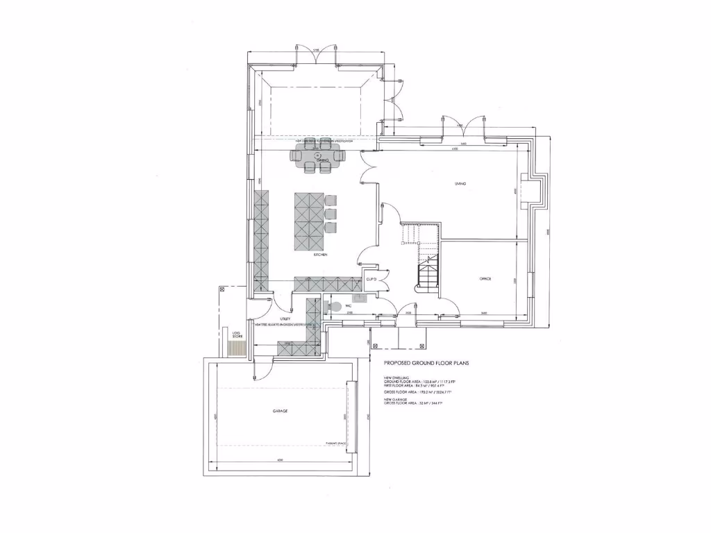
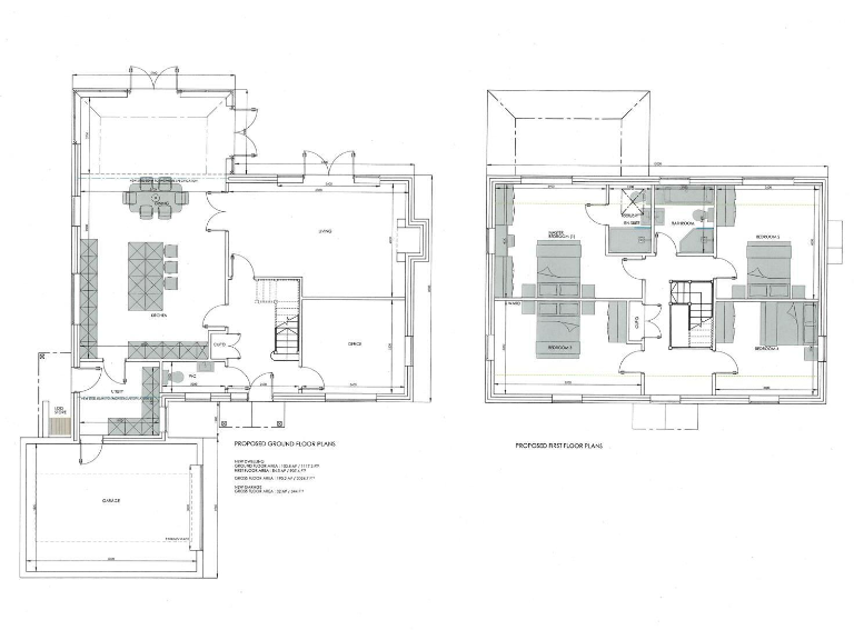
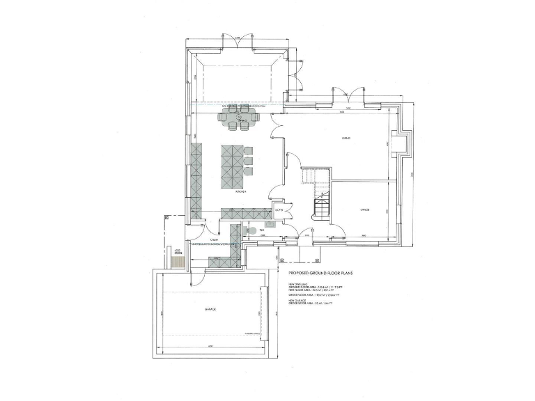
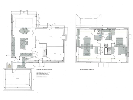
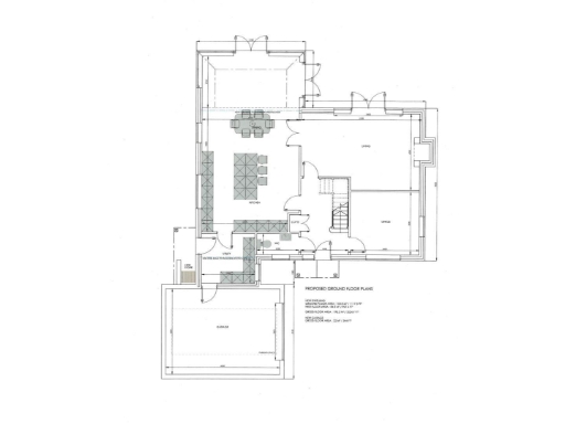
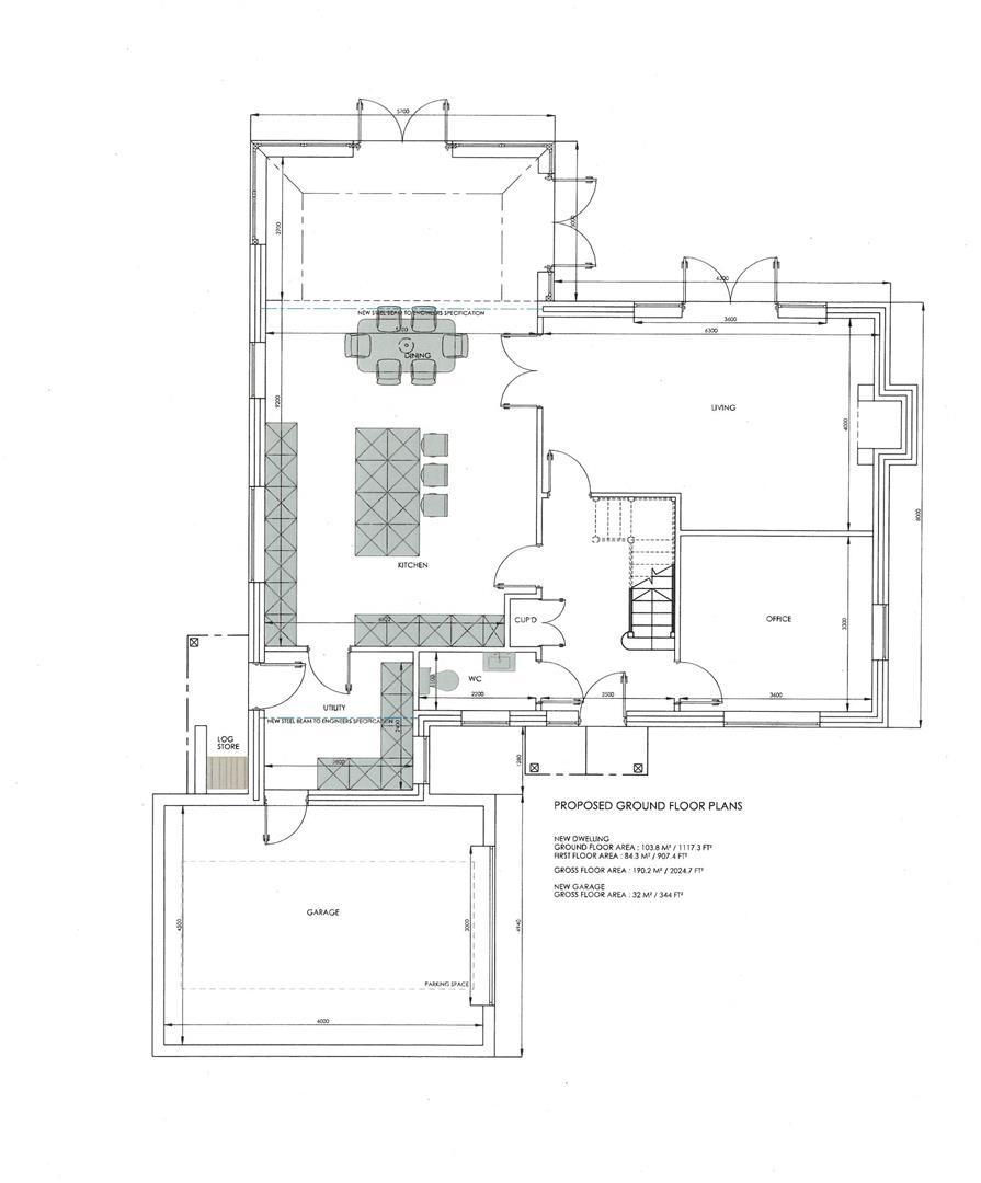
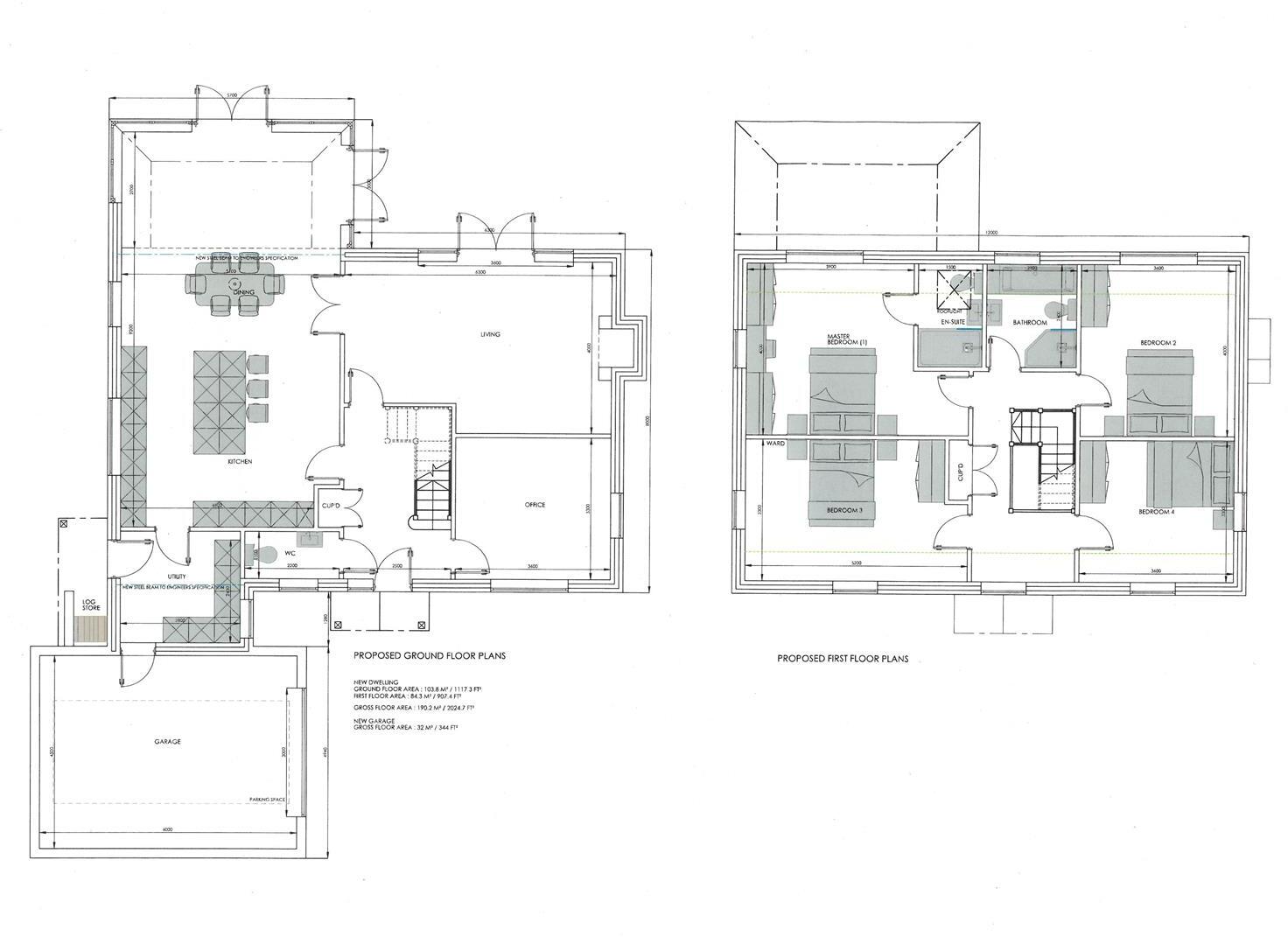
A substantial four-bedroom detached new build on an elevated private plot, designed for modern family living and finished to a high specification. The house will enjoy uninterrupted rural views across the parish church, manor ruins and open farmland, generous gardens, a large garage and sweeping driveway — all suited to family recreation and parking for multiple vehicles.
Technical and comfort benefits include Air Source heat pump with underfloor heating to the ground floor, high-spec double glazing, an oak staircase and the provision for an electric vehicle charging point. The generous open-plan living/dining/kitchen and separate study provide flexible space for home working, play and family living. Bathrooms and kitchen are described as being fitted to a high standard with integrated appliances and quality sanitary ware.
Important purchase information: this property is being sold off-plan and will be built once a legal commitment to purchase is in place. Timescale for build and completion will be agreed with the buyer and are not fixed. The developer offers a 10-year warranty; prospective buyers should allow for the normal off-plan risks — specification may vary between show homes and final finish.
Overall this is a high-spec, energy-efficient family home in a quiet village setting with fast broadband and low local crime. It will suit buyers seeking a roomy, modern detached house with countryside views, but those needing immediate occupation or a fixed completion date should note the off-plan nature and conditional build timetable.
5 bedroom detached house for sale in Chestnut House, Off Main Street, North Rauceby, Sleaford, Lincolnshire, NG34 — £775,000 • 5 bed • 3 bath • 2781 ft²
4 bedroom detached house for sale in Stathern Lane, Harby, LE14 — £950,000 • 4 bed • 3 bath • 3100 ft²
4 bedroom detached house for sale in Scalford Road, Eastwell, LE14 — £925,000 • 4 bed • 3 bath • 3100 ft²
5 bedroom detached house for sale in Sycamore House (Plot 1), Main Street, North Rauceby, Sleaford, Lincolnshire, NG34 — £835,000 • 5 bed • 3 bath • 3379 ft²
4 bedroom detached house for sale in Main Street
Stathern
Leicestershire
LE14 4HT, LE14 — £600,000 • 4 bed • 1 bath • 1730 ft²
4 bedroom detached house for sale in Pinfold Place, Harby, Melton Mowbray, LE14 — £399,950 • 4 bed • 2 bath • 668 ft²






















































