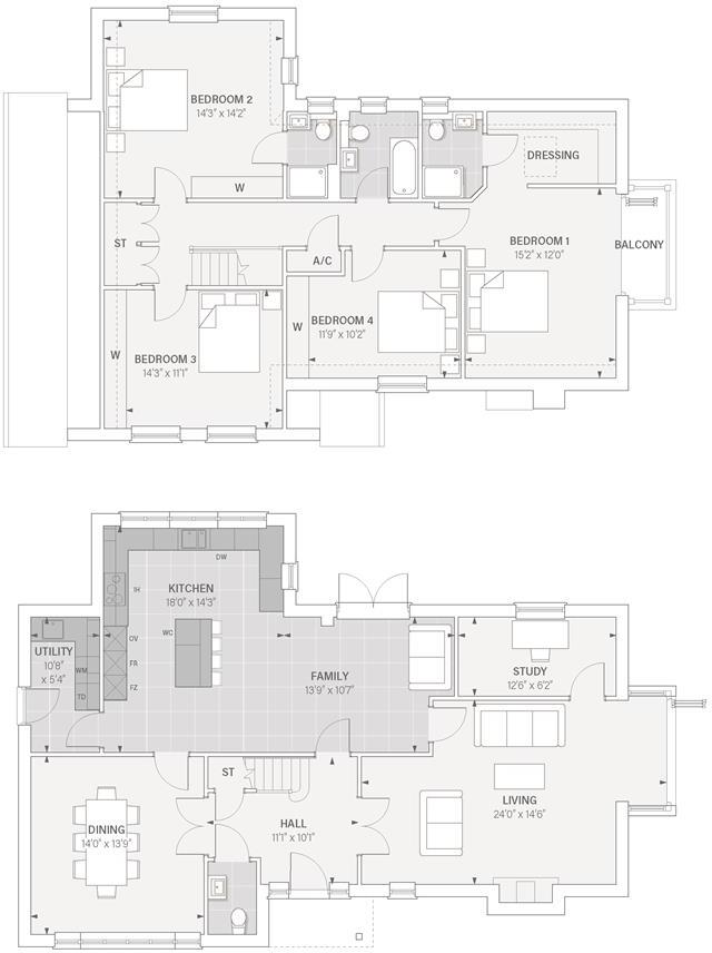
**Standout Features:**
- Spacious four-bedroom, three-bathroom detached house.
- Exclusive development of only three homes.
- Primary bedroom with balcony, ensuite, and dressing room.
- Modern finishes with a large open-plan kitchen and dining area.
- Eco-friendly solar panels and air source heat pump.
- Generous garden space and double carport.
- Chain-free sale.
**Summary Description:**
Welcome to your dream home in picturesque Upper Basildon, an exclusive development of just three impressive properties. This newly built, four-bedroom detached house boasts modern Tudor Revival design, expansive living areas, and high-quality finishes throughout. The ground floor features a bright entrance hall, a separate study ideal for remote work, a spacious living room, and an open-plan kitchen and dining area that flows effortlessly into a private garden—perfect for family gatherings and entertaining.
Upstairs, indulge in the luxurious primary suite, complete with a private balcony offering stunning countryside views, an ensuite bathroom, and a generous dressing room. Two additional bedrooms feature their own ensuites, while the fourth bedroom is perfect for guests or a home office, serviced by a stylish shared family bathroom. The property's eco-friendly attributes, including solar panels and an air-source heat pump, cater to modern lifestyles while ensuring lower utility costs.
Set in the desirable Berkshire countryside, you’ll enjoy proximity to Pangbourne and Reading, with excellent local schools and amenities just a stone's throw away. This remarkable property is chain-free and ready for its new owner. Don’t miss your chance to secure a slice of tranquil family living—schedule a viewing and embrace the comfort and exclusivity of Upper Basildon.
3 bedroom semi-detached house for sale in Kiln Ride, Upper Basildon, Reading, Berkshire, RG8 — £450,000 • 3 bed • 1 bath • 1083 ft²
4 bedroom detached house for sale in Park Wall Lane, Lower Basildon, Reading, Berkshire, RG8 — £1,400,000 • 4 bed • 3 bath • 2314 ft²
3 bedroom semi-detached house for sale in Wakemans, Upper Basildon, Reading, RG8 — £425,000 • 3 bed • 1 bath • 840 ft²
5 bedroom detached house for sale in Aldworth Road, Upper Basildon, Reading, Berkshire, RG8 — £1,750,000 • 5 bed • 4 bath • 5000 ft²
4 bedroom detached house for sale in Hatch Close, Chapel Row, Reading, Berkshire, RG7 — £865,000 • 4 bed • 3 bath • 2196 ft²
4 bedroom detached house for sale in Spring Close, Upper Basildon, Reading, Berkshire, RG8 — £850,000 • 4 bed • 3 bath • 2266 ft²


















