**Standout Features:**
- Luxury new build in an Area of Outstanding Natural Beauty
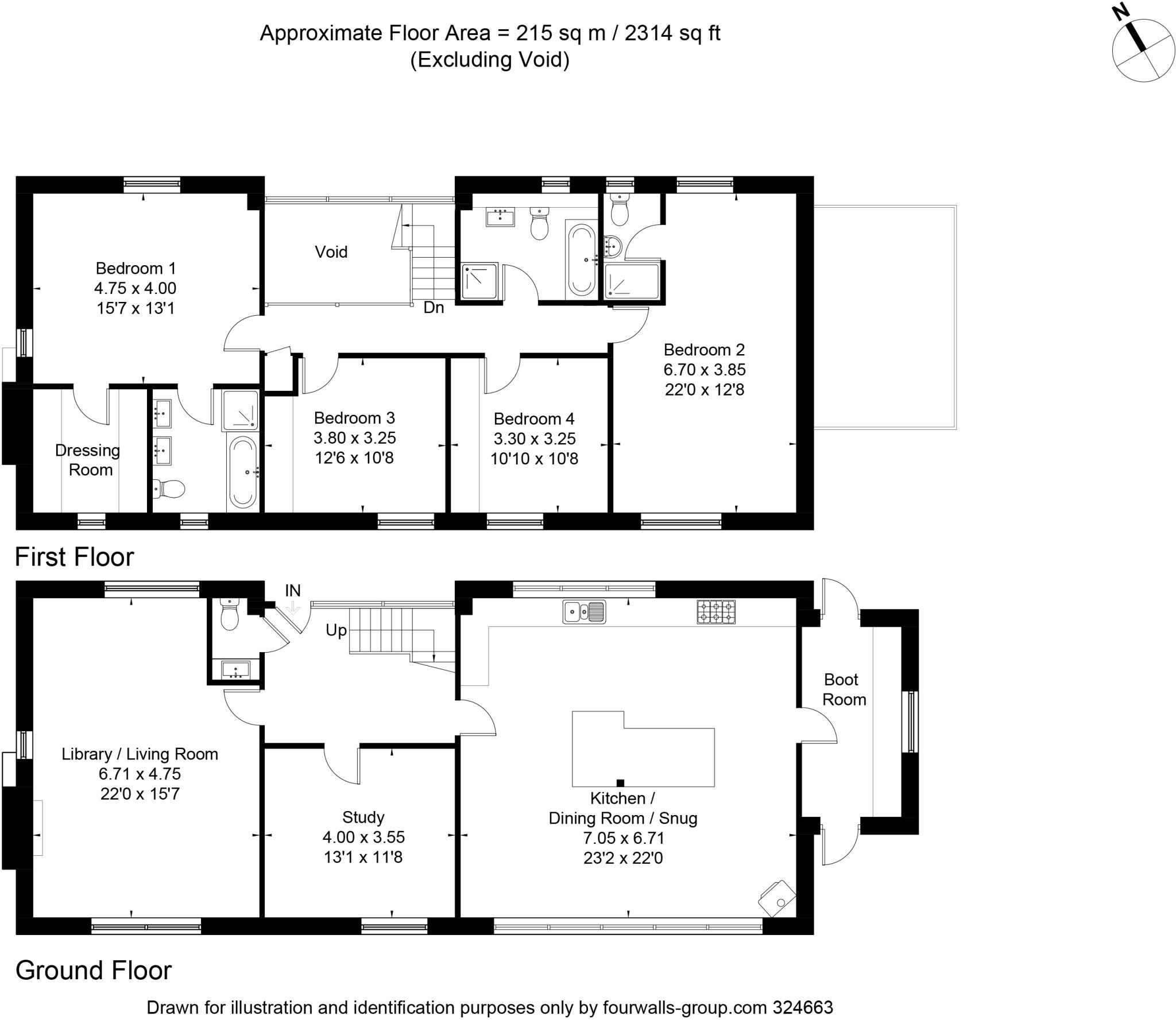
- Spacious 2,314 sq ft layout with high-spec finishes
- Four double bedrooms, including master with ensuite and walk-in wardrobe
- Double-height hallway with feature window, creating an airy ambiance
- Private off-street parking and generous gardens
- Uninterrupted countryside views extending to Oxfordshire
- Chain-free and newly renovated
**Potential Downsides:**
- Location may be remote for those seeking urban amenities
- Limited information on council tax requirements
**Summary:**
Discover Outerlen, an exquisite luxury new build nestled in serene Lower Basildon, Berkshire. Spanning 2,314 sq ft, this elegantly designed home boasts four spacious double bedrooms, including a master suite with an ensuite and walk-in wardrobe, complemented by two additional bathrooms. The striking double-height hallway welcomes you into an expansive living area that flows effortlessly for family living and entertaining, all while bathed in natural light from large windows.
Embrace the tranquility of expansive front and rear gardens and enjoy the breathtaking, uninterrupted views of the lush countryside stretching towards Oxfordshire. With ample off-street parking and set within a prestigious, rural community, this property is ideal for families seeking comfort and serenity. Don’t miss this rare opportunity for upscale living in a peaceful haven—schedule a viewing today!
5 bedroom detached house for sale in Park Wall Lane, Lower Basildon, Reading, Berkshire, RG8 — £1,500,000 • 5 bed • 3 bath • 2454 ft²
4 bedroom detached house for sale in The Chestnut at Autumn Fields, Upper Basildon, RG8 8JG, RG8 — £1,495,000 • 4 bed • 3 bath • 2282 ft²
6 bedroom detached house for sale in Creek End, Burcot, Abingdon, Oxfordshire, OX14 — £3,250,000 • 6 bed • 5 bath • 7644 ft²
4 bedroom detached house for sale in Honey Lane, Cholsey, OX10 — £925,000 • 4 bed • 2 bath • 1887 ft²
5 bedroom detached house for sale in PRIME LOCATION - Bethesda Street, Upper Basildon, RG8 — £2,795,000 • 5 bed • 4 bath • 5834 ft²
4 bedroom detached house for sale in Blandys Lane, Upper Basildon, RG8 — £995,000 • 4 bed • 2 bath • 2012 ft²






















