Contemporary four‑bed family home with woodland backing and eco features.
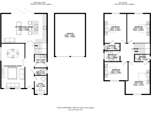
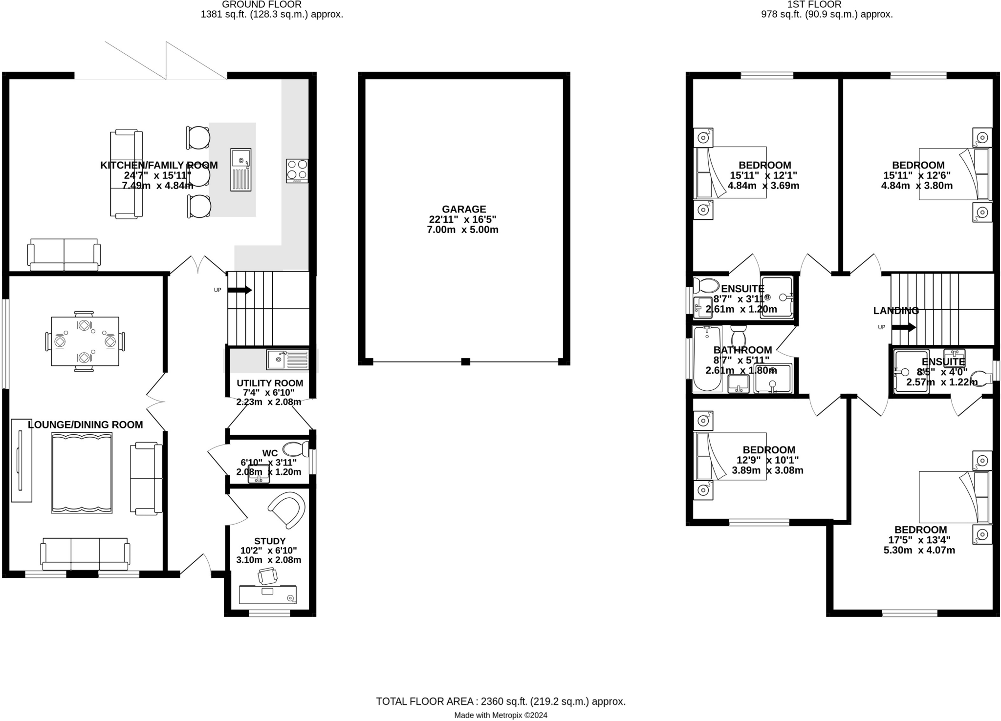
Approximately 2,360 sq ft of living accommodation
A spacious newly built family home offering about 2,360 sq ft of bright, flexible living across two floors. The house sits on a large plot at the edge of Garboldisham and backs directly onto mature woodland, giving immediate privacy and a strong indoor–outdoor feel from the kitchen/family room with bi-fold doors.
Finished in 2025 to modern, energy‑efficient standards, the specification includes air‑source heating, underfloor heating, an electric car charging point, rainwater harvesting and a specialist sewage treatment plant. Practical space is strong: a generous sitting/dining room, separate study, utility and cloakroom, four double bedrooms with two en‑suites, and a double garage with private parking.
This development of only seven homes carries a 10‑year structural warranty and allows some buyer input during construction stages. The location suits families seeking village life with good primary schools nearby; the plot size and woodland backdrop also appeal to gardeners and those who value outdoor privacy.
Notable practical points: the drive to the site is shared, broadband speeds are average for the area, and some reservation terms require a deposit that may be retained if a purchase is withdrawn before exchange. Images are indicative of the development rather than the specific plot.
3 bedroom semi-detached house for sale in The Street, Garboldisham, IP22 — £400,000 • 3 bed • 2 bath • 1286 ft²
4 bedroom semi-detached house for sale in The Street, Garboldisham, IP22 — £465,000 • 4 bed • 2 bath • 1500 ft²
4 bedroom semi-detached house for sale in The Street, Garboldisham, IP22 — £465,000 • 4 bed • 2 bath • 1500 ft²
4 bedroom detached house for sale in Alia Way, North Lopham, Diss, IP22 — £775,000 • 4 bed • 3 bath • 2334 ft²
4 bedroom detached house for sale in Alia Way, North Lopham, Diss, IP22 — £735,000 • 4 bed • 4 bath • 1925 ft²
4 bedroom detached house for sale in Roxbury Drive, East Harling, Norwich, NR16 — £575,000 • 4 bed • 3 bath • 2059 ft²






























































