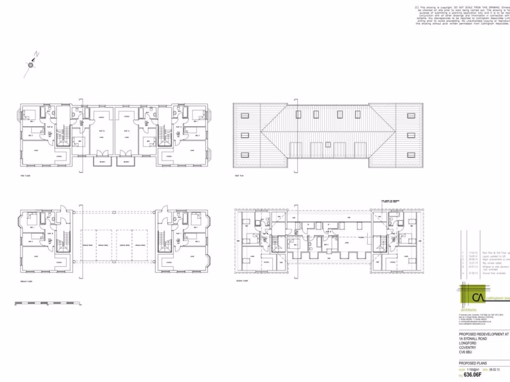
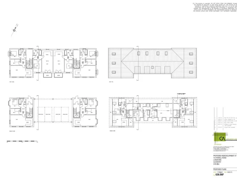
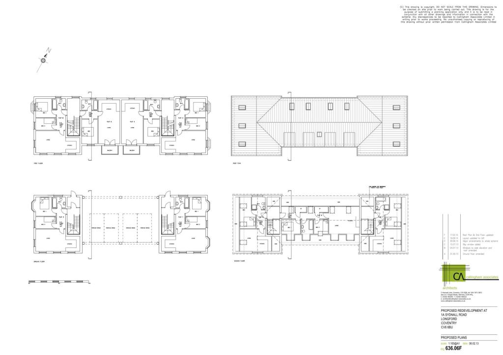
**Standout Features:**
- Canal-side location with planning permission for a block of nine residential apartments (PL/2023/0001770/LDCE)
- Freehold property with a large plot size of 750m² (approximately 8076 sq ft)
- Potential rental income of approximately £89,700 per annum
- Access from Sydnall Road and proximity to local amenities
- Excellent mobile signal and fast broadband speeds
**Potential Concerns:**
- Situated in an area with high crime rates
- Located within a very deprived urban cultural mix
Seize the opportunity to invest in this prime canal-side plot with planning permissions in place for constructing nine residential apartments. Spanning over 750m², this substantial freehold land allows direct access from Sydnall Road, making it ideal for future development. With the potential to generate a robust rental income, it is suited for both seasoned investors and first-time buyers looking to capitalize on the growing need for housing in this urban area.
While the location offers convenient access to a variety of amenities, including schools rated 'Good' by Ofsted, it is important to consider the security issues prevalent in the area. Don’t miss out on this rare chance to create a desirable residential complex in a market that’s rapidly evolving; a bidding opportunity like this won’t last long!
Land for sale in Sydnall Road, Longford, Coventry, CV6 — £275,000 • 1 bed • 1 bath • 8072 ft²
Land for sale in Land, Bridgeman Road, Radford, Coventry, West Midlands CV6 1NS, CV6 — £40,000 • 1 bed • 1 bath
Plot for sale in Land at 6-8 Welford Place, Coventry, CV6 5NZ, CV6 — £90,000 • 1 bed • 1 bath
Land for sale in Land, 511 Walsgrave Road, Coventry CV2 4AG, CV2 — £1,200,000 • 1 bed • 1 bath • 23146 ft²
Land for sale in Lucerne Close, Coventry, CV2 — £250,000 • 1 bed • 1 bath • 18731 ft²
Land for sale in Harnall Lane West, Coventry, CV1 — £500,000 • 1 bed • 1 bath • 2933 ft²


















