CV6 6BU - Land for sale in Sydnall Road, Longford, Coventry, CV6

View on Property Piper

Land for sale in Sydnall Road, Longford, Coventry, CV6

Summary - 7 SYDNALL ROAD COVENTRY CV6 6BU

1 bed 1 bath Land

**Standout Features:**
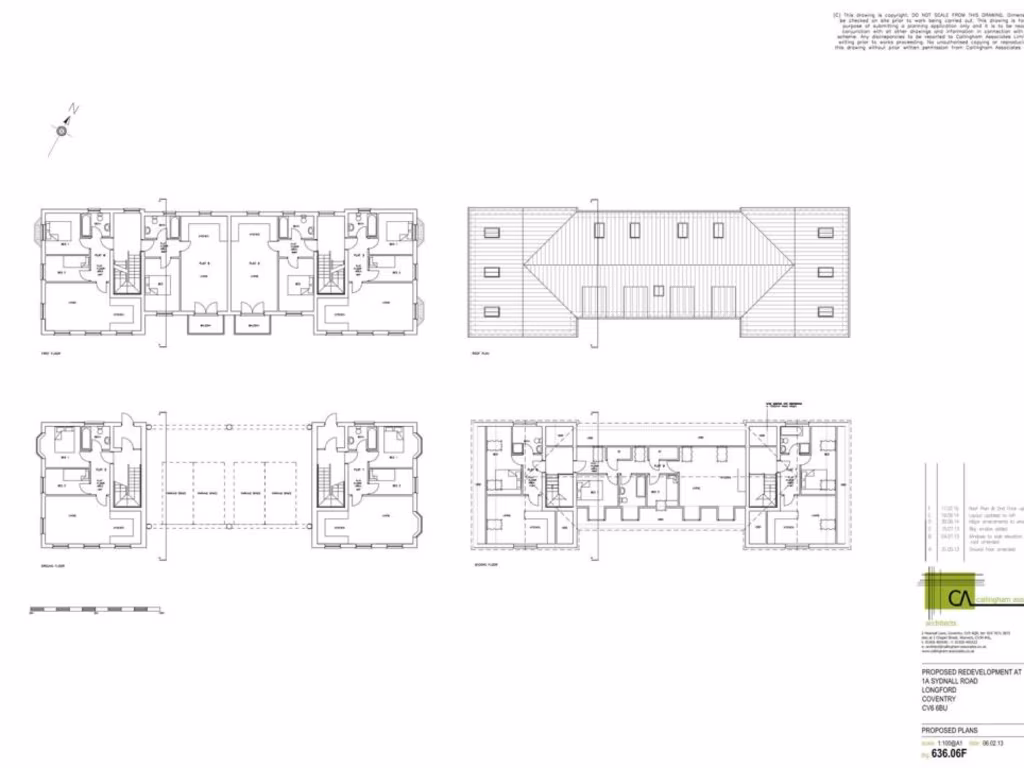
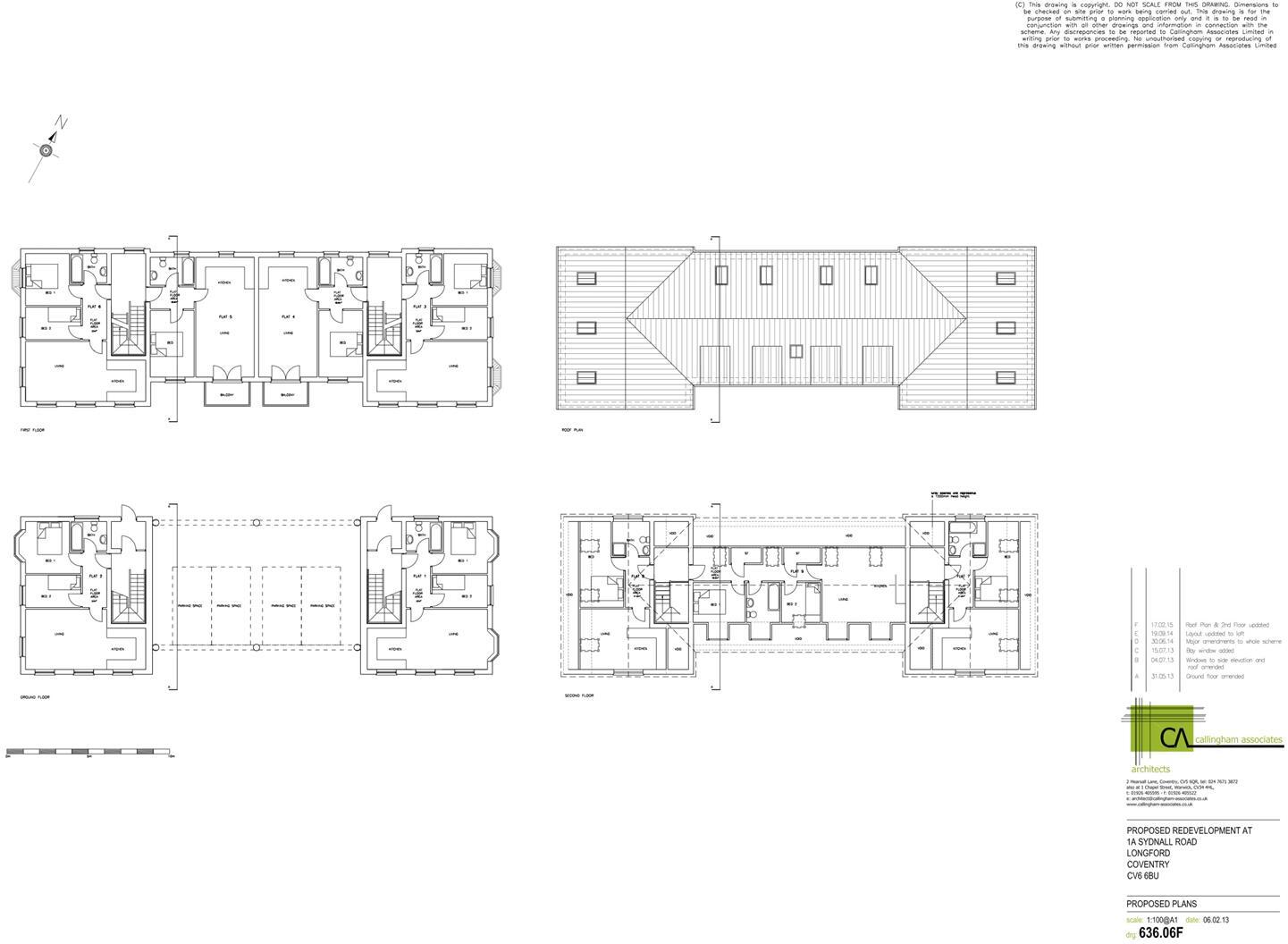
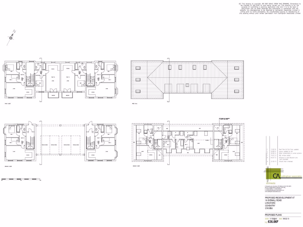
- Residential development site of 750m² (approx. 8072 sq ft)
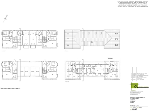
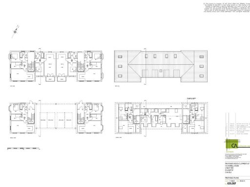
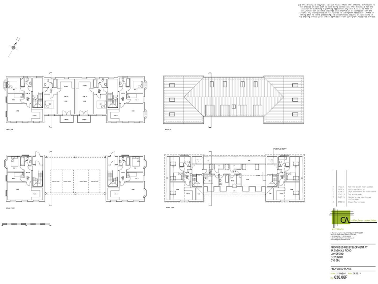
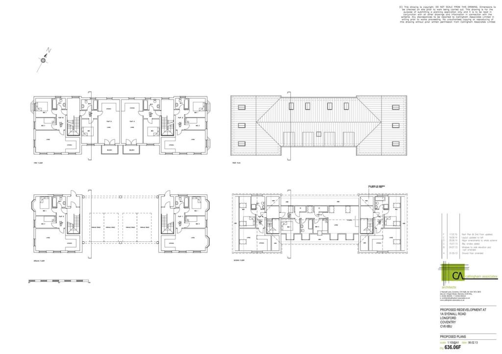
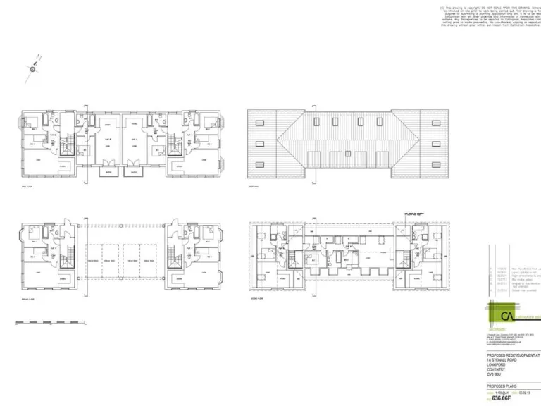
- Planning permission granted for nine apartments
- Scenic canal-side location with potential for attractive water views
- Excellent access to local transport and major motorways
- Freehold tenure providing flexibility for future ownership
- Estimated rental income potential of £89,700 per annum

**Summary:**
Discover a remarkable opportunity to invest in a sizable residential development site, perfectly situated by the canal in a community that blends urban vibrancy with cultural diversity. Spanning approximately 750m², this freehold plot comes with granted planning permission for the construction of nine apartments, promising an enticing rental income of around £89,700 annually upon completion. The location offers easy access to local transport links, the M6 and M69 motorways, the CBS Arena, and shopping amenities, making it appealing for future residents.

While the area does face some challenges, including higher crime rates and signs of urban neglect, the potential for a successful development is significant. The plot's existing utility provisions for electricity, water, and drainage enhance its desirability for development. Seize this rare chance to create a multi-unit residential project in a growing vicinity—demand is rising, and opportunities like this won’t last long. Explore the possibility to make your mark in this promising canal-side landscape!

Property Details

Brochure Descriptions

Image Descriptions

Floorplan Description

Textual Property Features

Detected Visual Features

Nearby Schools

Nearest Bars And Restaurants

,,,,}

Nearest General Shops

,,}

Nearest Grocery shops

,,}

Nearest Supermarkets

,,}

Nearest Religious buildings

,,}

Nearest Medical buildings

,,,}

Nearest Airports

}

Nearest Leisure Facilities

,,,,}

Nearest Tourist attractions

,,}

Nearest Train stations

,,,,}

Nearest Bus stations and stops

,,,,}

Nearest Hotels

,,}

Tags

Local Market Stats

Similar Properties

Meta

High Res Images

Compatible Images

Low res Images

Thumbnails

Raw Images

High Res Floorplan Images

Compatible Floorplan Images

Low res Floorplan Images

FloorplanImages Thumbnail

Raw Floorplan Images