Stylish, bright two-bedroom near Norwich centre with parking and storage.
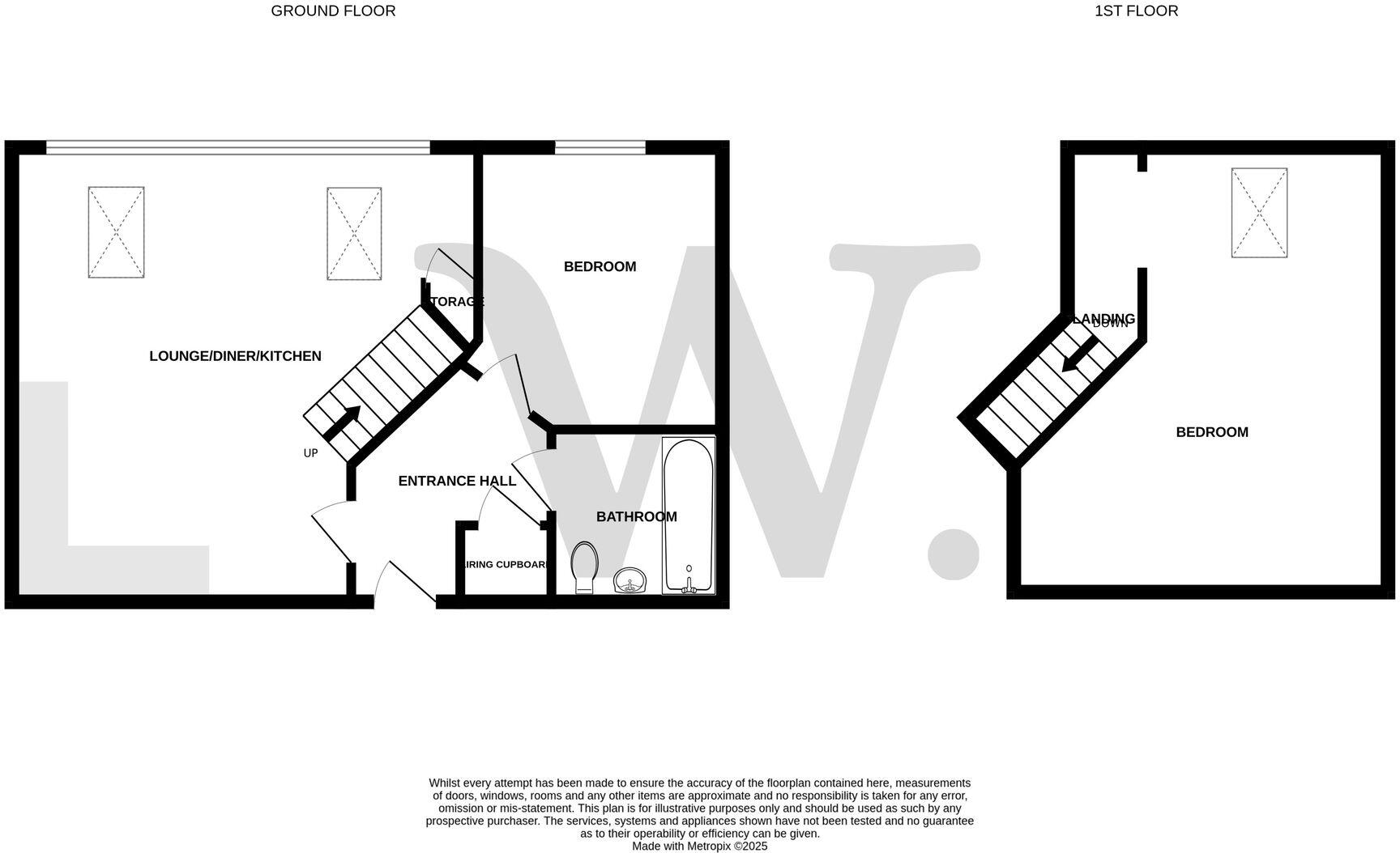
Two double bedrooms with loft-style high ceilings
Light-filled split-level loft apartment offering two double bedrooms and a large open-plan kitchen/diner/lounge. High ceilings, large industrial windows and contemporary finishes create a spacious, urban feeling while retaining practical storage and an allocated parking space.
Well-located close to Norwich city centre, this apartment suits first-time buyers seeking a stylish home or buy-to-let investors targeting students and professionals. Lift access and a secure allocated storage space add everyday convenience; broadband speeds are fast and mobile signal is excellent.
Practical facts to note: the property is leasehold with 109 years remaining, an average service charge of £1,450 and ground rent of £100. Heating is by electric room heaters and the EPC is rated D. The local area has above-average crime levels and is classed as deprived, so buyers should weigh neighbourhood considerations.
Built as a conversion between 2007–2011, the building has modern construction and double glazing (install date unknown). There is no flood risk and council tax is described as cheap, but the apartment may suit buyers prepared for electric heating and urban living close to nightlife and student populations.
1 bedroom apartment for sale in Paper Mill Yard, Norwich, NR1 — £190,000 • 1 bed • 2 bath • 883 ft²
2 bedroom flat for sale in Paper Mill Yard, Norwich, NR1 — £209,950 • 2 bed • 1 bath • 948 ft²
2 bedroom apartment for sale in Paper Mill Yard, Norwich, NR1 — £180,000 • 2 bed • 1 bath • 980 ft²
2 bedroom apartment for sale in Paper Mill Yard, Norwich, NR1 — £180,000 • 2 bed • 1 bath • 808 ft²
2 bedroom apartment for sale in Millers Lane, Norwich, NR3 — £180,000 • 2 bed • 2 bath • 925 ft²
2 bedroom apartment for sale in Norwich, NR2 — £215,000 • 2 bed • 2 bath • 606 ft²






















































