Characterful city-centre home with parking and flexible living spaces.
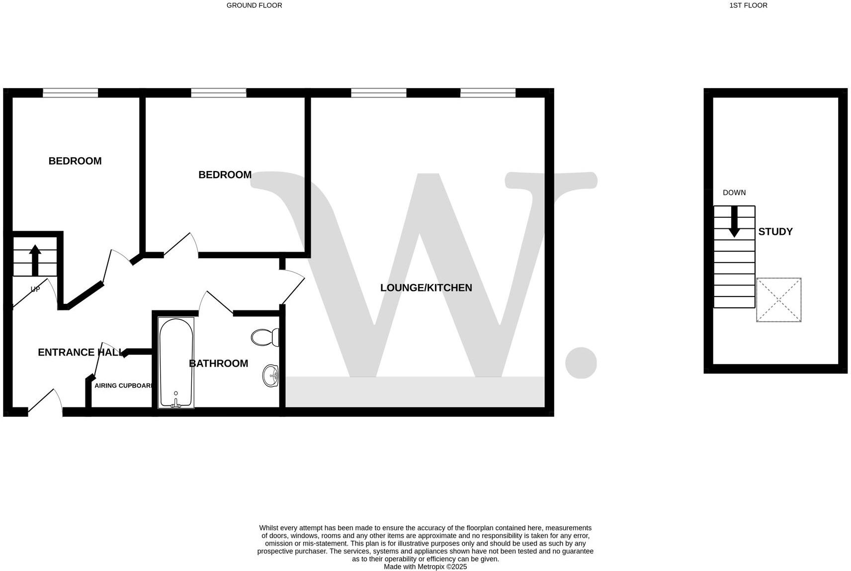
Two double bedrooms plus a third room suitable for study or office
Bright loft-style open-plan lounge and kitchen with high ceilings
Large apartment — approximately 948 sq ft of living space
Allocated off-street parking space included
Leasehold with 107 years remaining; ground rent £150 per year
No onward chain; formal notice shows an offer already submitted
Heating via boiler and electric underfloor system; EPC rating C
Local crime level reported as very high — consider security implications
Set within Paper Mill Yard just a short walk from Norwich city centre, this spacious loft-style apartment offers roomy, light-filled accommodation across 948 sq ft. The open-plan lounge and kitchen benefits from high ceilings and large arched windows, creating a bright, versatile living space. Two double bedrooms plus a third room for a study or home office suit first-time buyers working from home or couples wanting extra space.
Practical details favour a straightforward purchase: the property is offered with no onward chain, has an allocated off-street parking space, and an EPC rating of C. Heating is provided by a boiler with electric underfloor heating, and double glazing is installed. The flat lies in a converted building of character and sits in an affluent area classification, with fast broadband and excellent mobile signal.
Buyers should note material facts plainly: this is a leasehold property with 107 years remaining and a small ground rent of £150. A formal notice indicates an offer has already been submitted for a lower sum, so interested parties may need to act promptly. The immediate neighbourhood is described as a cosmopolitan student area and local crime levels are very high, which may affect some buyers’ sense of security.
Overall this apartment suits first-time buyers seeking space, character, and proximity to city amenities, or investors targeting city-centre rental demand. It offers good living space and parking but comes with leasehold obligations and local safety considerations that should be factored into viewing and offer decisions.
2 bedroom apartment for sale in Paper Mill Yard, Norwich, NR1 — £180,000 • 2 bed • 1 bath • 808 ft²
1 bedroom apartment for sale in Paper Mill Yard, Norwich, NR1 — £190,000 • 1 bed • 2 bath • 883 ft²
2 bedroom apartment for sale in Paper Mill Yard, Norwich, NR1 — £180,000 • 2 bed • 1 bath • 980 ft²
2 bedroom apartment for sale in Northumberland Street, Norwich, NR2 — £180,000 • 2 bed • 1 bath
2 bedroom apartment for sale in Paper Mill Yard, Norwich, Norfolk, NR1 — £200,000 • 2 bed • 1 bath • 742 ft²
2 bedroom apartment for sale in Millers Lane, Norwich, NR3 — £180,000 • 2 bed • 2 bath • 925 ft²














































