**Standout Features:**
- Full planning permission for a barn conversion project (application N/063/02285/23).
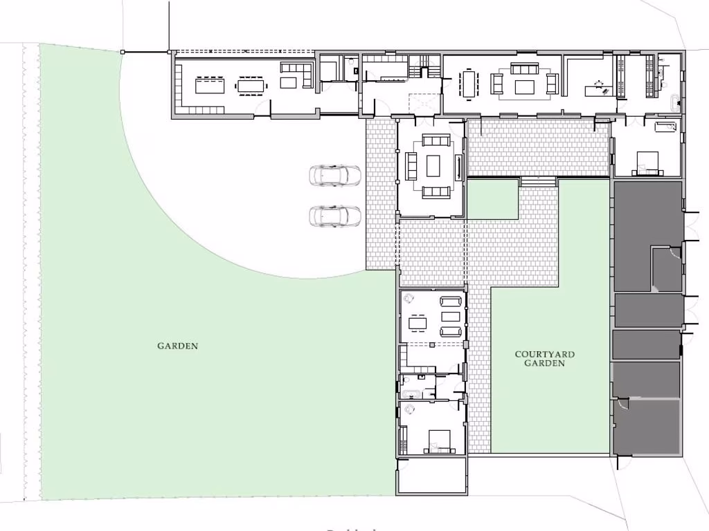
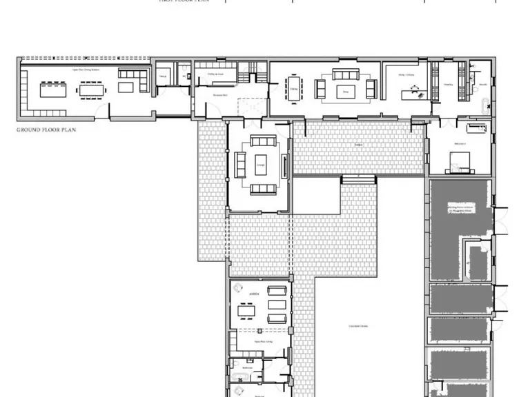
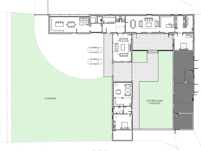
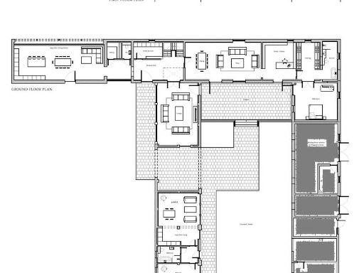
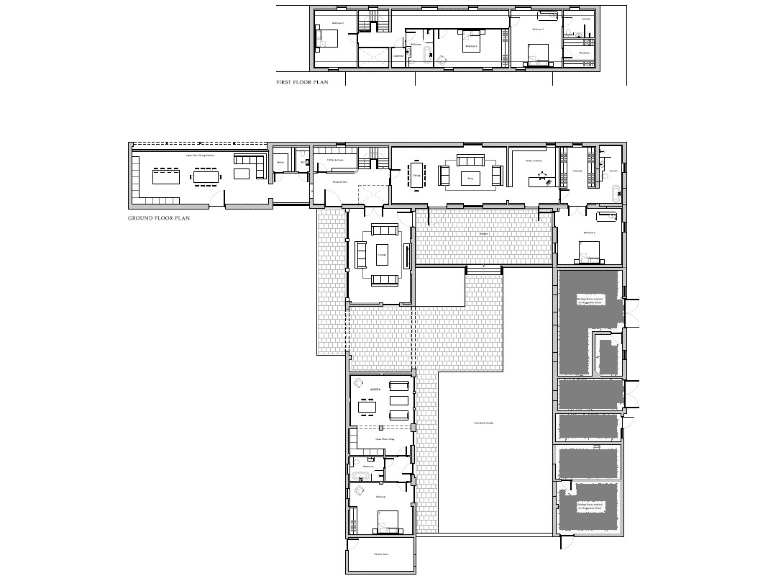
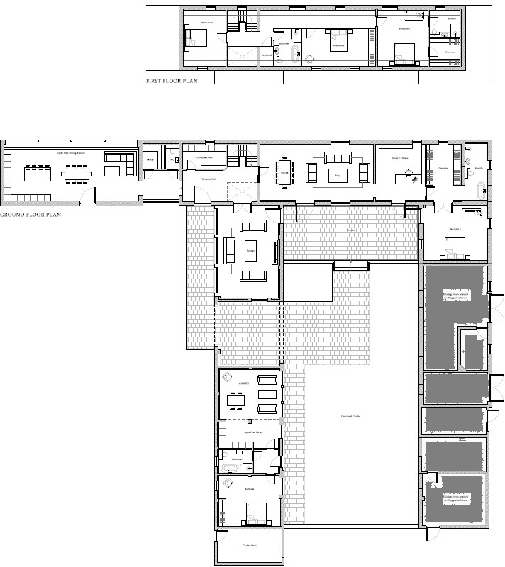
- Expansive floor space of 5,340 sq ft, including 4-bedroom accommodation and a 1-bedroom annex.
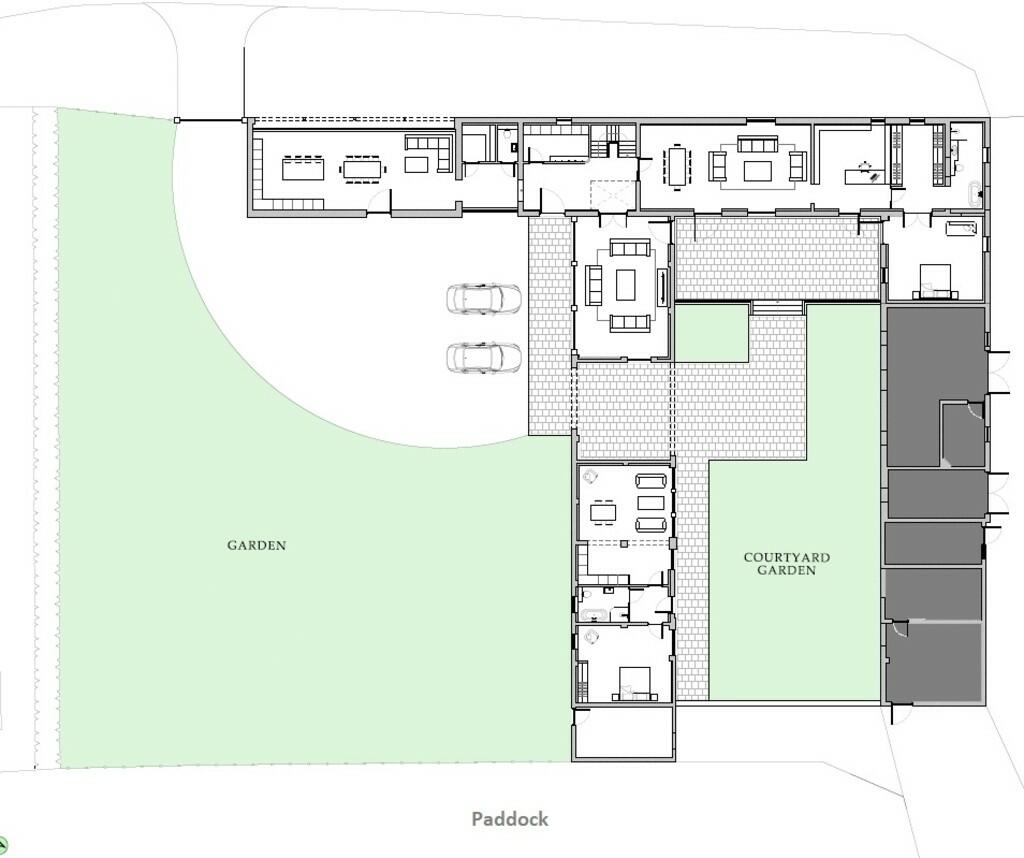
- Sits on a generous 4.4 acres of land with formal gardens and a paddock, ideal for equestrian or horticultural activities.
- Quiet village location on a no-through road with stunning countryside views.
- Chain-free sale, allowing for quick possession.
**Summary:**
Unlock the potential of this remarkable barn conversion project nestled in a tranquil village setting. With full planning permission granted, you can transform this expansive 5,340 sq ft barn into a stunning 4-bedroom home accompanied by a 1-bedroom annex. Set on 4.4 acres of idyllic grounds, this property offers a flawless blend of modern living and rustic charm, featuring thoughtfully designed open-plan spaces, ample reception rooms, and a sun-drenched internal courtyard.
Although the property requires renovation, it presents a unique opportunity for discerning buyers or investors looking to create their dream residence or an attractive rental option. The expansive land is perfect for those interested in equestrian pursuits or simply enjoying the beauty of rural life. Conveniently located a mere 7 miles from the vibrant market town of Louth, this barn conversion is a hidden gem with significant future potential. Don’t miss your chance to own this exceptional piece of countryside—opportunities like this are rare and won’t last long!
5 bedroom bungalow for sale in Lincoln Road, Welton Le Wold, Louth, Lincolnshire, LN11 — £600,000 • 5 bed • 4 bath • 3282 ft²
4 bedroom barn conversion for sale in Kenwick Hill, Louth, LN11 — £800,000 • 4 bed • 3 bath • 2348 ft²
5 bedroom barn conversion for sale in Newbridge Lane, Covenham St Mary, Louth, LN11 — £250,000 • 5 bed • 3 bath • 3090 ft²
4 bedroom detached house for sale in Gowts Farm Main Road Saltfleet Louth LN11 7SB, LN11 — £685,000 • 4 bed • 2 bath • 5024 ft²
4 bedroom detached bungalow for sale in Equestrian Facility, North End, Saltfleetby LN11 7SX, LN11 — £400,000 • 4 bed • 2 bath • 2761 ft²
4 bedroom detached house for sale in Mill Way, Fulstow LN11 0XU, LN11 — £550,000 • 4 bed • 1 bath • 1958 ft²










































































































