Large garden, garage and driveway in a popular family neighbourhood.
Chain free three-bedroom semi-detached family home
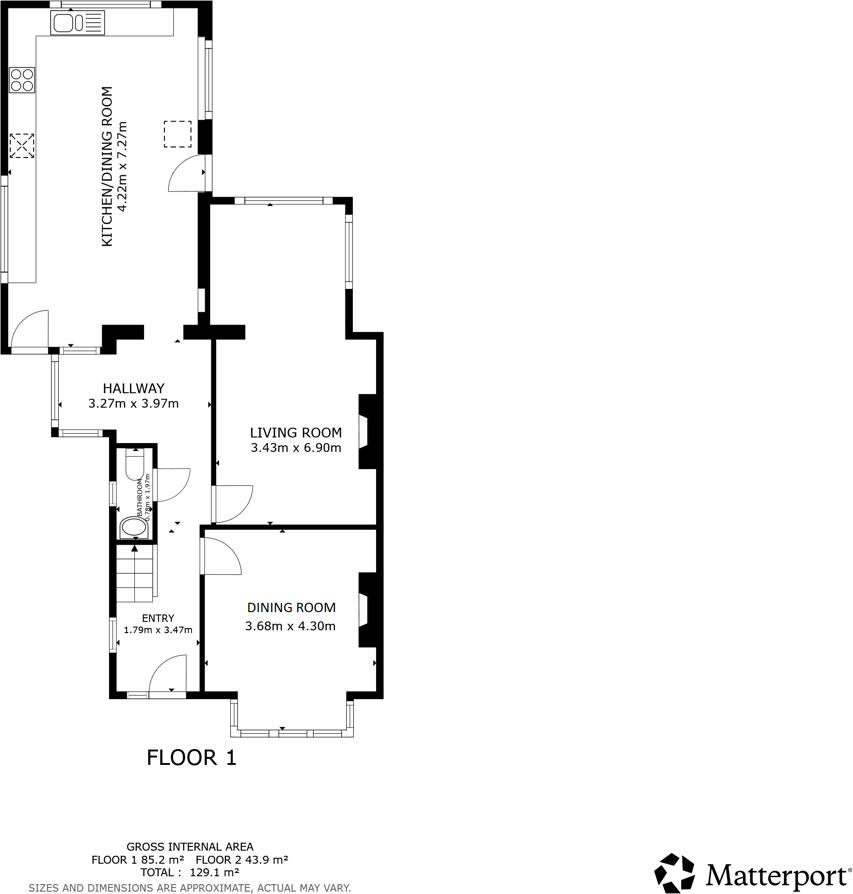
This three-bedroom semi-detached home on Broughton Road is offered chain free and sits on a large plot with a long block-paved driveway and detached garage. The property delivers immediate family living with two reception rooms, a spacious kitchen-diner and a sizeable enclosed rear garden ideal for children or outdoor entertaining.
The house is structurally traditional red brick with bay windows and appears in generally good order, but the kitchen dates from the 1980s and would benefit from modernization to meet contemporary tastes. Upstairs provides three bedrooms and a family bathroom; internal room sizes are average for a family home and suit everyday living.
Practical positives include freehold tenure, low local crime, fast broadband and excellent mobile signal, plus proximity to several well-rated primary and secondary schools, local amenities and transport links. Buyers should note the property’s renovation potential and plan for updating the kitchen and cosmetic modernisation to maximise value.
This is a sensible choice for families looking for scope to personalise a comfortable, well-located home with generous outdoor space and parking, or for buyers seeking a renovation project in an affluent, low-risk area.
3 bedroom semi-detached house for sale in Broughton Road, DONCASTER, South Yorkshire, DN4 — £260,000 • 3 bed • 2 bath • 1051 ft²
3 bedroom detached house for sale in Stoops Lane, Doncaster, South Yorkshire, DN4 — £250,000 • 3 bed • 1 bath • 858 ft²
4 bedroom detached house for sale in Bawtry Road, Bessacarr, Doncaster, DN4 — £675,000 • 4 bed • 4 bath • 3197 ft²
3 bedroom semi-detached house for sale in Nearfield Road, Bessacarr, Doncaster, DN4 — £260,000 • 3 bed • 2 bath • 1141 ft²
3 bedroom semi-detached house for sale in Middlefield Road, Bessacarr, DN4 — £270,000 • 3 bed • 1 bath • 571 ft²
3 bedroom detached house for sale in Thealby Gardens, Bessacarr, Doncaster, DN4 — £230,000 • 3 bed • 1 bath • 765 ft²






























































































