Five-bedroom detached home with multi-generational layout, large garden and driveway in Churchdown village.
- Five bedrooms, including ground-floor bedroom with shower room
- Flexible multi-generational or guest/living-room layout
- Large kitchen-diner with French doors to garden
- Integral garage and wide driveway for multiple cars
- Mature rear garden with fruit trees and patios
- EPC rating C; council tax in a higher band (expensive)
- Broadband speeds reported as very slow (may need upgrade)
- Chalet-style appearance; standard ceiling heights and average room sizes
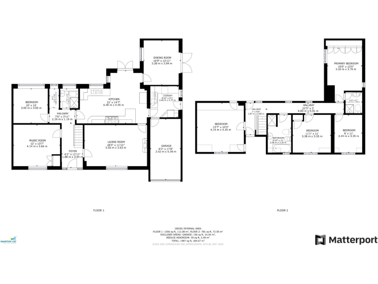
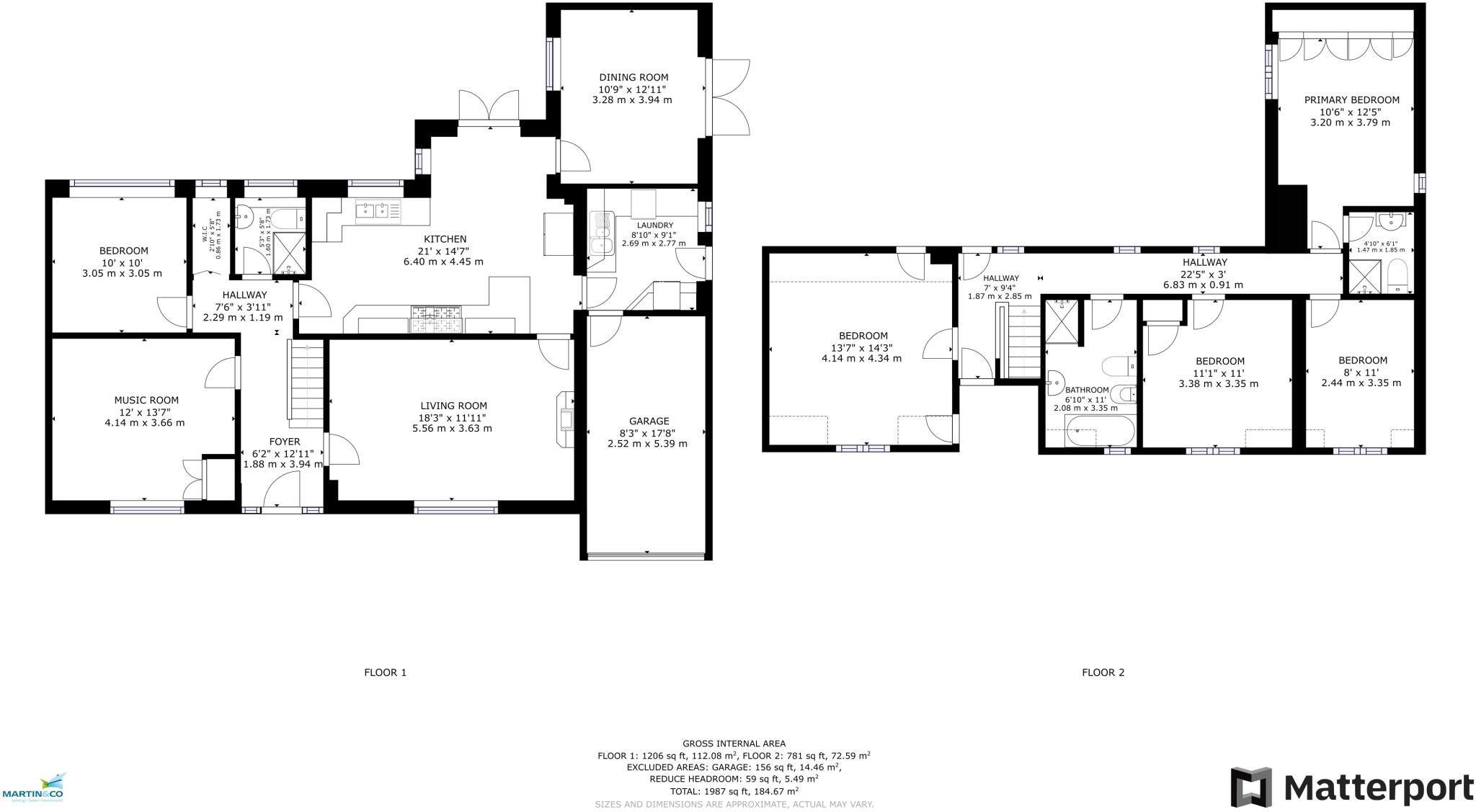
Set in the heart of Churchdown village, this five-bedroom detached house offers flexible accommodation across two floors ideal for growing or multi-generational families. The ground-floor bedroom with an adjacent shower room provides independent living space, while four first-floor bedrooms include an ensuite main bedroom and a generous five-piece family bathroom.
Social living is arranged around a large kitchen-dining room with French doors to the garden, a formal dining room with side patio access, a sitting room and a separate family/music room. Outside there is a wide driveway, integral garage and mature rear garden with fruit trees and multiple patio areas—good for entertaining and family life.
Practical details: the property is chain-free, freehold, has gas central heating and double glazing. The EPC rating is C and council tax is in a higher band, so running costs should be considered. Broadband speeds are reported as very slow and may not suit heavy home-working without an upgrade.
This is a roomy, characterful home with clear potential for updating to personal taste. A viewing is recommended to appreciate the layout, garden and scope for improvement in services such as broadband and energy efficiency upgrades.
5 bedroom detached house for sale in Brookfield Road, Churchdown, Gloucester, GL3 — £775,000 • 5 bed • 3 bath • 1947 ft²
4 bedroom detached house for sale in Parton Road, Churchdown, Gloucester, GL3 — £575,000 • 4 bed • 2 bath • 1268 ft²
4 bedroom detached house for sale in Parton Road, Churchdown, Gloucester, GL3 — £530,000 • 4 bed • 3 bath • 948 ft²
4 bedroom semi-detached house for sale in Pirton Lane, Churchdown, Gloucester, GL3 — £585,000 • 4 bed • 2 bath • 1425 ft²
3 bedroom detached house for sale in Churchdown Village | Gloucester, GL3 — £425,000 • 3 bed • 1 bath • 948 ft²
3 bedroom detached house for sale in The Nurseries, Churchdown, Gloucester, Gloucestershire, GL3 — £360,000 • 3 bed • 2 bath • 932 ft²














































































































