HA9 7AY - Cafe for sale in High Road, Wembley, Middlesex, HA9

View on Property Piper

Cafe for sale in High Road, Wembley, Middlesex, HA9

Summary - 456, HIGH ROAD HA9 7AY

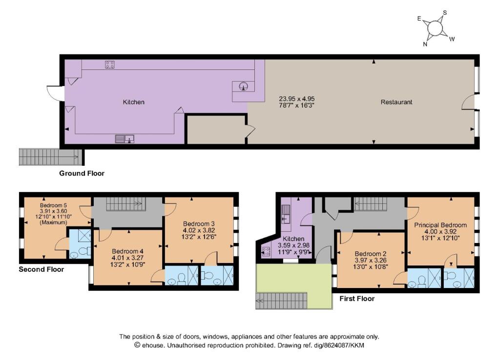
5 bed 1 bath Cafe

### Standout Features:
- Mixed-use property: Ground floor restaurant and upper floors as HMO
- Total size: 2,471 sq ft with five spacious bedrooms
- Prominent location on Wembley’s main retail high street
- Excellent access to public transport, just a tenth of a mile from Wembley Central train station

### Notable Concerns:
- Lease term of 20 years may limit mortgage options
- Crime rate above average in the area
- Limited outside space and potential structural improvements needed (insulation not present)

Discover an exceptional investment opportunity at 456 High Road, Wembley, HA9 7AY. This versatile mixed-use property features a thriving restaurant on the ground floor, complete with a substantial kitchen and dining area, while the upper two floors house an HMO with five comfortably sized bedrooms, each with en-suites. Set in a bustling urban environment, the property benefits from high foot traffic and excellent accessibility, making it ideal for both commercial and residential uses.

Potential investors will appreciate the secure income from the current tenant, along with the 20-year lease that offers rent stability (currently £52,500 per year, increasing to £55,000 in June 2025). However, please note that the relatively short lease may present difficulties for mortgage financing, and the local crime rate is above average. With significant renovation potential and the ability to capitalize on growing demand in this vibrant area, don't miss out on this unique chance to invest in a mixed-use property that blends commercial viability with residential comfort. The combination of space, location, and potential make this a rare find in the competitive Wembley market—act quickly to explore its possibilities!

Property Details

Brochure Descriptions

Image Descriptions

Textual Property Features

Detected Visual Features

EPC Details

Nearby Schools

Nearest Bars And Restaurants

,,,,}

Nearest General Shops

,,}

Nearest Grocery shops

,,}

Nearest Supermarkets

,,}

Nearest Religious buildings

,,}

Nearest Medical buildings

,,,}

Nearest Airports

,}

Nearest Leisure Facilities

,,,,}

Nearest Tourist attractions

,,}

Nearest Train stations

,,,,}

Nearest Bus stations and stops

,,,,}

Nearest Hotels

,,}

Tags

Local Market Stats

AirBnB Data

Similar Properties

Meta

High Res Images

Compatible Images

Low res Images

Thumbnails

Raw Images