**Standout Features:**
- Freehold mixed-use property with two distinct income streams.
- Ground floor commercial unit currently leased to an estate agency, ensuring steady cash flow.
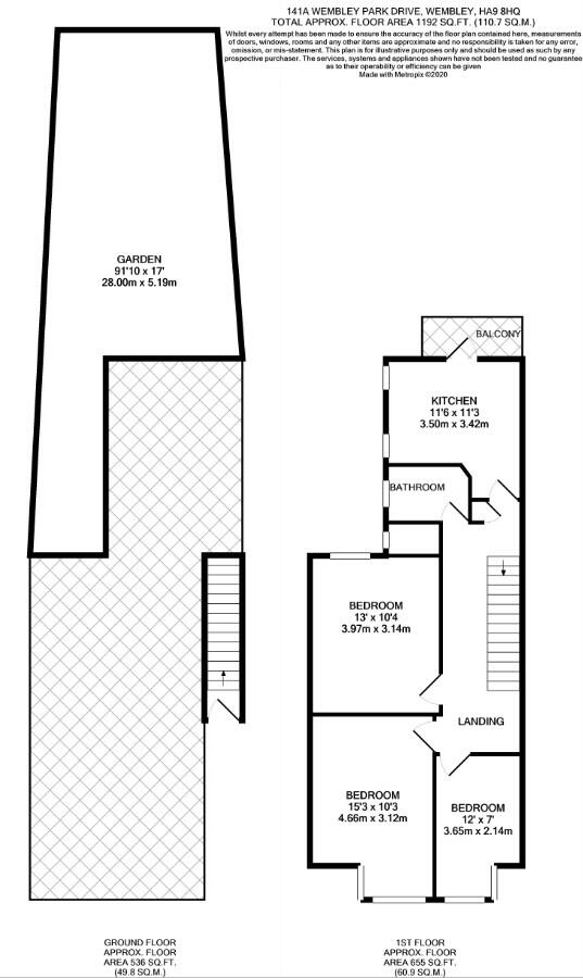
- Self-contained 2-bedroom flat above with Assured Shorthold Tenancy (AST) in place.
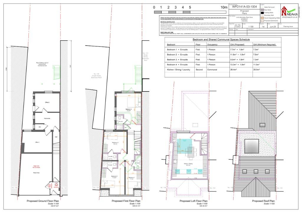
- Planning permissions granted for a rear extension to commercial space and conversion of the flat to a 4-bedroom, 4-bathroom House in Multiple Occupation (HMO).
- Excellent location on Wembley Park Drive, just minutes from Wembley Park Station and surrounded by thriving local amenities.
- Positioned in a high-growth regeneration area with strong tenant demand and potential for capital appreciation.
- Residential and commercial EPC ratings of D and E, respectively; Council Tax Band B.
**Summary:**
Discover an exceptional investment opportunity in the heart of Wembley Park. This freehold mixed-use property, featuring a ground floor commercial unit and a self-contained 2-bedroom flat, offers two reliable income streams currently generating strong financial returns. With planning approvals for a rear extension to the commercial unit and the conversion of the upper flat into a lucrative 4-bedroom, 4-bathroom HMO, the potential for significant growth and increased rental income is at your fingertips.
Located just moments from Wembley Park Station and major attractions, this property benefits from high foot traffic and an array of nearby amenities, making it ideal for tenants. Future renovations can enhance its value and appeal in a vibrant, high-demand market. Perfect for savvy investors looking for solid returns with growth potential, this property is a must-see and won't last long. Be part of the exciting Wembley Park regeneration—act quickly to secure your piece of this thriving community!
High street retail property for sale in Wembley Park Drive, Wembley, Middlesex, HA9 — £595,000 • 1 bed • 1 bath • 700 ft²
4 bedroom detached house for sale in Oakington Manor Drive, Wembley, Middlesex, HA9 6LU, HA9 — £895,000 • 4 bed • 1 bath
2 bedroom flat for sale in Wembley Park, Middlesex, HA9 8HQ, HA9 — £395,000 • 2 bed • 1 bath • 700 ft²
6 bedroom mixed use property for sale in 5,5A,5B Court Parade, Wembley, Middlesex, HA0 — £850,000 • 6 bed • 1 bath • 2285 ft²
Cafe for sale in High Road, Wembley, Middlesex, HA9 — £1,100,000 • 5 bed • 1 bath • 2471 ft²
2 bedroom flat for sale in Wembley Park, London, HA9 — £225,000 • 2 bed • 1 bath • 742 ft²


























