Move-in ready with parking and private garden near local transport links.
Victorian bay-front living room with high ceilings and period features
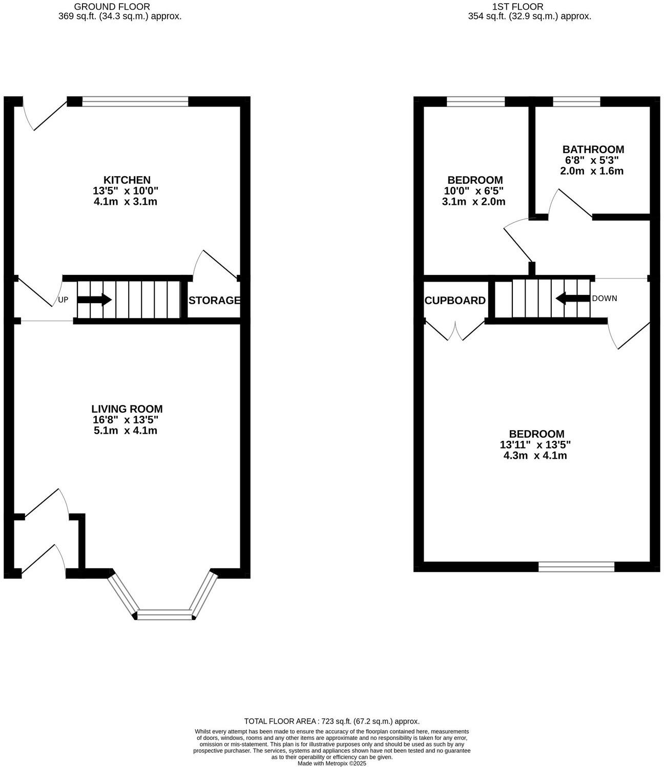
A welcoming two-bedroom Victorian terrace that balances period character with practical modern upgrades. The bay-front living room retains high ceilings and original features, while a modern kitchen and bathroom mean you can move straight in without immediate works.
Outside there’s off-street parking to the front, a small courtyard and a separate rear garden — useful for a bit of outdoor space without a large maintenance burden. The lane feels quieter and greener than nearby roads, yet shops and transport links are within walking distance, making daily life straightforward.
Important practical points are plain: the house is a mid-terrace on a modest plot, glazing was installed before 2002 and walls are assumed to be cavity with no added insulation, which could affect running costs and comfort without upgrades. The property is freehold and chain free, with a C energy rating and a low council tax band B — sensible for first-time buyers or families looking for an affordable period home close to amenities.
2 bedroom terraced house for sale in Chapel Street , Woodley, SK6 — £200,000 • 2 bed • 1 bath • 631 ft²
3 bedroom semi-detached house for sale in Station Road, Woodley, SK6 — £365,000 • 3 bed • 1 bath • 1057 ft²
2 bedroom end of terrace house for sale in Springbank Court, Manor Road, Woodley, SK6 — £255,000 • 2 bed • 2 bath • 791 ft²
2 bedroom terraced house for sale in King George Road, Gee Cross, SK14 — £180,000 • 2 bed • 1 bath • 818 ft²
2 bedroom terraced house for sale in Meadowside, Newtown, SK12 — £245,000 • 2 bed • 1 bath • 831 ft²
2 bedroom terraced house for sale in Brookfield Terrace, Hazel Grove, Stockport, Greater Manchester, SK7 — £220,000 • 2 bed • 1 bath • 916 ft²














































