Low-maintenance garden and flexible living ideal for growing families.
4 double bedrooms, master with shower en-suite
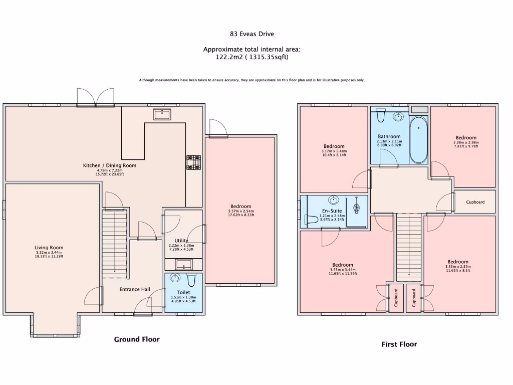
This contemporary four-bedroom detached house, built in 2016, suits a family seeking low-maintenance, move-in-ready accommodation. The ground floor is arranged for everyday living with a bay-fronted living room, open-plan kitchen/diner with French doors to the garden, utility room and a ground-floor WC. A converted garage provides flexible use as a third reception room or a fifth bedroom.
Upstairs are four well-proportioned bedrooms, the master benefiting from a shower en-suite, plus a modern family bathroom. The rear garden is designed for minimal upkeep with a large patio and artificial lawn, while a neighbouring playing field expands outside space for children and informal sport. Practical features include off-street parking for two cars and fast broadband.
Be aware of some local and running-cost considerations. The property sits in a hamlet-like setting within an area classified as deprived and with above-average crime statistics; prospective buyers should factor local services and security into their decision. Council tax is above average. The home is freehold and shows as average overall size — suitable for families needing flexible living rather than large estate grounds.
Overall, this is a practical family home that delivers contemporary fittings and low-maintenance outside space, with useful flexibility from the converted garage. It will particularly appeal to buyers who prioritise modern living, good school access and quick road links to the M2/M20, while accepting local area limitations.
4 bedroom end of terrace house for sale in Easton Drive, Sittingbourne, ME10 3FE, ME10 — £325,000 • 4 bed • 3 bath • 1163 ft²
3 bedroom semi-detached house for sale in Haffenden Avenue, Sittingbourne, ME10 3FQ, ME10 — £325,000 • 3 bed • 3 bath • 904 ft²
3 bedroom detached house for sale in Makin Drive, Sittingbourne, ME10 3FJ, ME10 — £365,000 • 3 bed • 2 bath • 974 ft²
4 bedroom semi-detached house for sale in Argent Way, Sittingbourne, ME10 — £450,000 • 4 bed • 3 bath • 1527 ft²
4 bedroom detached house for sale in Church Road, Murston, Sittingbourne, Kent, ME10 — £375,000 • 4 bed • 2 bath
4 bedroom detached house for sale in Dalewood, Sittingbourne, Kent, ME10 — £450,000 • 4 bed • 2 bath • 1579 ft²






















































































































