Generous plot, south-facing garden and good schools nearby.
Three bedrooms: two doubles plus single bedroom/office
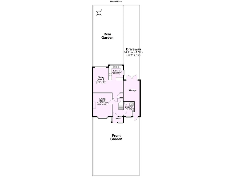
A generous three-bedroom semi-detached home on a sizeable plot in a convenient York suburb. The property offers a cosy 14ft living room with bay window and stone-clad fireplace, an extended L-shaped dining/kitchen with patio doors to a south-facing garden, and off-street parking to the front. Its layout suits family life with two double bedrooms, a third bedroom or home office, a house bathroom plus separate WC, and a ground-floor shower room formed from the original garage.
The house sits close to the University of York and within easy reach of local shops and good schools, including several rated Outstanding. Practical benefits include mains gas central heating, filled cavity walls, double glazing (installed before 2002) and fast broadband—helpful for homeworking and student visitors. The plot is decent with front and rear lawns and a patio seating area ideal for children or relaxed entertaining.
The property does need renovation and cosmetic updating: the kitchen is dated (1980s fittings and vinyl flooring) and parts of the home would benefit from general modernisation. The ground-floor shower room is installed within the converted garage, which reduces original garage storage and may limit parking/storage flexibility. These factors present clear scope to add value and personalise the home to your tastes.
Overall this freehold semi-detached house is a practical family option or an investment for someone prepared to carry out refurbishment. It offers solid structural features from its mid-20th century construction and bright living spaces with good potential to create an enhanced family home in an affluent, well-connected neighbourhood.
3 bedroom semi-detached house for sale in Boroughbridge Road, York, YO26 — £300,000 • 3 bed • 1 bath • 689 ft²
3 bedroom semi-detached house for sale in The Horseshoe, Tadcaster Road, York YO24 1LY, YO24 — £850,000 • 3 bed • 1 bath • 1273 ft²
3 bedroom semi-detached house for sale in Nursery Gardens, York, North Yorkshire, YO10 — £420,000 • 3 bed • 2 bath • 1578 ft²
3 bedroom semi-detached house for sale in 23, Nunthorpe Grove York, YO23 1DT, YO23 — £550,000 • 3 bed • 1 bath • 1357 ft²
3 bedroom semi-detached house for sale in Lilac Avenue, York, YO10 — £375,000 • 3 bed • 2 bath • 1314 ft²
5 bedroom semi-detached house for sale in Heslington Croft, Fulford, York, YO10 4NB, YO10 — £550,000 • 5 bed • 2 bath • 1408 ft²


























































