PA21 2AF - 3 bed pier house kames in Argyll And Bute, PA21 2AF

View on Property Piper

3 bedroom detached house for sale in The Pier House & Cottage, Kames, Tighnabruaich, Argyll, PA21

Summary - THE PIER HOUSE, SHORE ROAD PA21 2AF

3 bed 1 bath Detached

Architect‑designed waterfront home with private pier and an income‑producing bothy cottage.
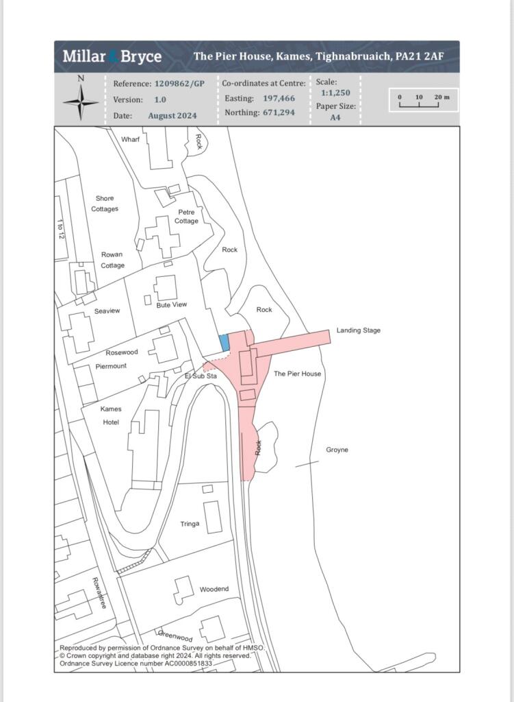
Private historic pier and owned beach frontage
Set directly on the Kyles of Bute, The Pier House occupies a rare waterside plot with its own historic pier, private beach frontage and expansive wraparound deck. The architect-designed main house makes the most of the outlook with full-height glazing, a double‑height living space and versatile first-floor gallery. Included plans to extend offer practical scope to increase living space or enhance rental income potential.

Also included is a detached bothy cottage that has operated as a successful short‑term holiday let since 2008, providing an existing income stream and booking history. The cottage is Scottish Government accredited and sits on its own decked area adjacent to the beach, making the whole site attractive for holiday guests and visitors to the sailing hub of Tighnabruaich.

Buyers should note some material facts: the property’s EPC rating is D and heating is via an LPG boiler. Broadband speeds are average and the wider area is classified as very deprived, which can affect local services and resale comparatives. The main house layout is multi‑storey with limited bathroom provision relative to three bedrooms.

This is a distinct opportunity for someone seeking a lifestyle waterside home with immediate holiday‑let income, or an investor looking to grow returns using the included extension plans. Its combination of private waterfront, proven lettings performance and architect-led design makes it a standout coastal holding, provided buyers accept the maintenance, energy and connectivity limits stated.

Property Details

Image Descriptions

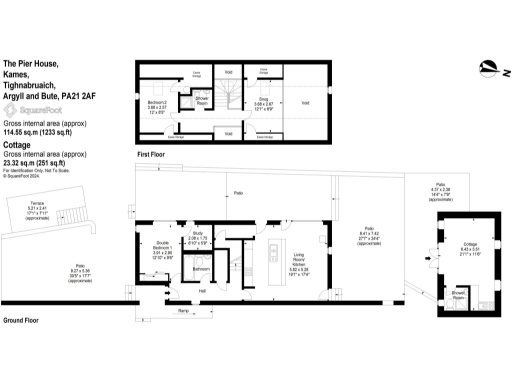
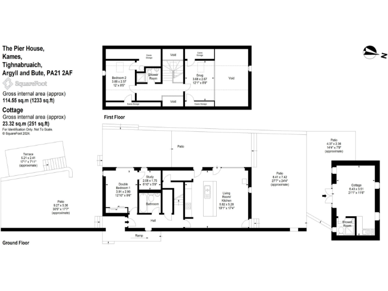
Floorplan Description

Rooms

Textual Property Features

Target Audience

AI Tags

Detected Visual Features

Nearest Bars And Restaurants

,,,,}

Nearest General Shops

,,}

Nearest Grocery shops

,,}

Nearest Supermarkets

,,}

Nearest Religious buildings

,,}

Nearest Medical buildings

,,,}

Nearest Leisure Facilities

,,,,}

Nearest Tourist attractions

,,}

Nearest Train stations

,,,,}

Nearest Bus stations and stops

,,,,}

Nearest Hotels

,,}

Tags

Local Market Stats

AirBnB Data

Similar Properties

Meta

High Res Images

Compatible Images

Low res Images

Thumbnails

Raw Images

High Res Floorplan Images

Compatible Floorplan Images

Low res Floorplan Images

FloorplanImages Thumbnail

Raw Floorplan Images