PR25 1YL - 3 bedroom semidetached house for sale in 22 Mellor Road, Le…

View on Property Piper

3 bedroom semi-detached house for sale in 22 Mellor Road, Leyland PR25 1YL , PR25

Summary - 22 MELLOR ROAD LEYLAND PR25 1YL

3 bed 1 bath Semi-Detached

Spacious three-bed semi with conservatory, double garage and parking — ideal for growing families.
Three-bedroom semi-detached with good natural light
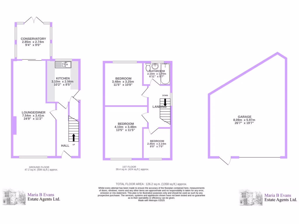
A practical three-bedroom semi-detached home in a well-connected Leyland suburb, arranged over two floors with a large garden and detached double garage. The ground floor offers a generous living-dining room with a gas living-flame feature, separate kitchen and a bright conservatory overlooking the lawn — good for family life and informal entertaining. Upstairs are two double bedrooms, a single bedroom and a three-piece family bathroom; storage is helped by fitted wardrobes in the main bedroom and built-in units in bedroom two.

Outside there is driveway parking for two cars and gated access to a substantial rear garden. The insulated double garage has power, light and heater wiring, offering genuine scope as a gym, workshop or home-office. The property benefits from gas central heating, UPVC windows and doors, and its freehold tenure and council tax band B keep running costs modest.

This home is well suited to growing families or buyers seeking easy commuter links and usable outdoor space. It presents straightforward improvement opportunities rather than heavy renovation: cosmetic updates or kitchen/bathroom modernisation would add value. Important practical points — services, appliances and the EPC rating are to be confirmed — prospective buyers should verify these and any measurements with their surveyor or solicitor before offer.

Property Details

Brochure Descriptions

Image Descriptions

Floorplan Description

Rooms

Textual Property Features

Target Audience

AI Tags

Detected Visual Features

Nearby Schools

Nearest Bars And Restaurants

,,,,}

Nearest General Shops

,,}

Nearest Grocery shops

,,}

Nearest Supermarkets

,,}

Nearest Religious buildings

,,}

Nearest Medical buildings

,,,}

Nearest Leisure Facilities

,,,,}

Nearest Tourist attractions

,,}

Nearest Train stations

,,,,}

Nearest Bus stations and stops

,,,,}

Nearest Hotels

,,}

Tags

Local Market Stats

Similar Properties

Meta

High Res Images

Compatible Images

Low res Images

Thumbnails

Raw Images

High Res Floorplan Images

Compatible Floorplan Images

Low res Floorplan Images

FloorplanImages Thumbnail

Raw Floorplan Images