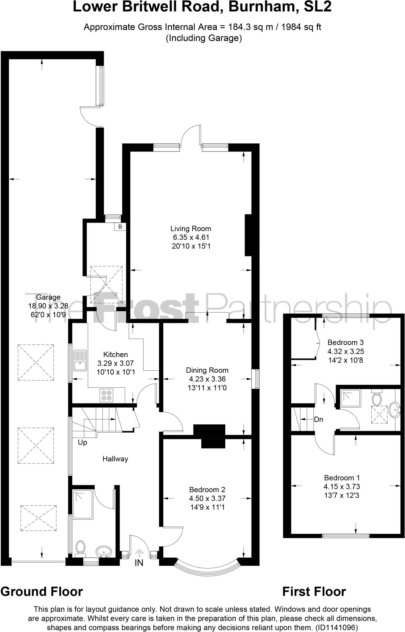
### Standout Features:
- **Type**: Extended Detached Chalet Bungalow
- **Bedrooms**: 3
- **Bathrooms**: 2 Shower Rooms
- **Living Area**: Spacious 21ft x 15ft Living Room with Garden Access
- **Dining Room**: 14ft, open-concept with Living Room
- **Garage**: Approx. 62ft long for extensive storage or parking
- **Location**: Close to Burnham Grammar School and local amenities
- **Garden**: South-east facing with patio and lawn area
- **Off-Street Parking**: Ample driveway space
- **Condition**: Average; double glazing installed pre-2002, potential insulation upgrades needed
- **Price**: £625,000
### Summary:
Discover this expansive and charming extended detached chalet bungalow, perfect for families or first-time buyers seeking space and versatility. Featuring three spacious bedrooms and two convenient shower rooms, this home boasts a grand 21ft living room that seamlessly connects to a beautiful garden—a perfect retreat for family gatherings or quiet evenings. The 14ft dining room adds an elegant touch for entertaining, while the contemporary kitchen and separate utility area cater to modern living needs.
A standout feature is the impressive 62ft garage, offering ample storage or parking space. Outside, the south-east facing garden invites you to enjoy sunny afternoons, complete with a patio, lawn, and room for gardening enthusiasts. Chain-free for a quick move, this property sits within walking distance of highly regarded Burnham Grammar School and community amenities, making it an ideal investment. While the property may require some updates—like insulation and potential roof work due to its original construction—this spacious home offers great potential to create your dream living space. Don’t miss out on this unique opportunity in a desirable location!
4 bedroom bungalow for sale in Royston Way, Slough, Berkshire, SL1 — £675,000 • 4 bed • 1 bath • 2100 ft²
3 bedroom detached house for sale in Amberley Road, Slough, SL2 — £575,000 • 3 bed • 1 bath • 797 ft²
3 bedroom detached house for sale in Burnham Lane, Burnham, SL1 — £675,000 • 3 bed • 2 bath • 1200 ft²
3 bedroom bungalow for sale in Purton Lane, Farnham Royal, SL2 — £585,000 • 3 bed • 2 bath • 1335 ft²
4 bedroom detached bungalow for sale in Pink Lane, Burnham, Slough, SL1 — £800,000 • 4 bed • 2 bath • 1477 ft²
3 bedroom detached house for sale in The Fairway, Burnham, Buckinghamshire, SL1 — £925,000 • 3 bed • 1 bath • 1400 ft²






































































