**Standout Features:**
- Freehold self-contained office space
- Grade II Listed building with classic Georgian architecture
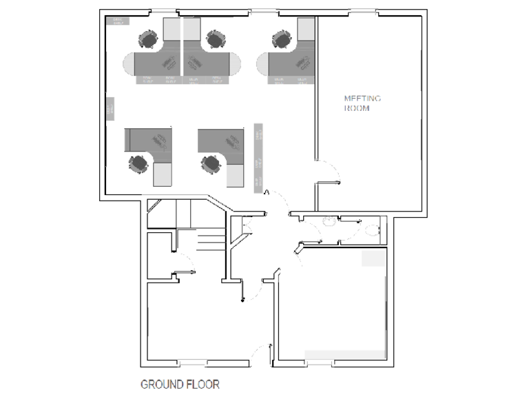
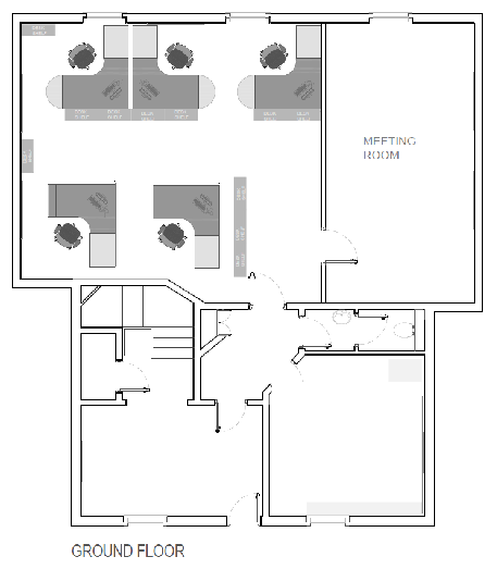
- 2,873 sq ft of versatile space – mix of open plan and cellular offices
- 11 dedicated car parking spaces
- Located just off Addlestone High Street, near amenities
- Suitable for various uses under Class E, with potential for alternative applications (STPP)
**Potential Concerns:**
- Grade II Listing may limit renovation and development options
- High local crime rates
John Cree House is a remarkable opportunity for investors or businesses seeking a distinct office space in vibrant Addlestone. This Grade II listed Georgian-style building, constructed in 1987, features a generous 2,873 sq ft layout with a blend of open plan and cellular office spaces, enhancing adaptability for various work styles. With 11 dedicated parking spots and convenient access to local amenities, including shops and restaurants within a short stroll, this property promises both comfort and accessibility.
While the property presents enticing possibilities for office, retail, or other Class E uses, prospective buyers should note its listed status, which may restrict renovation or extension options. The high local crime rate warrants consideration; however, the property encapsulates character and presence, making it a truly unique investment. Embrace the potential and secure a freehold asset that stands out amidst the bustling business community—opportunities like this don't last long!
Commercial property for sale in Guildford Street, Chertsey, Surrey, KT16 — £295,000 • 3 bed • 1 bath • 1433 ft²
Office for sale in 26 Windsor Street, Chertsey, KT16 8AS, KT16 — £500,000 • 1 bed • 1 bath • 1690 ft²
Office for sale in Broadoak House, Horsham Road, Cranleigh, GU6 8DJ, GU6 — £550,000 • 1 bed • 1 bath • 2032 ft²
High street retail property for sale in 2 Bridge Street, Leatherhead, KT22 8BZ, KT22 — £695,000 • 1 bed • 1 bath • 2295 ft²
High street retail property for sale in 45-47 High Street, Cobham, KT11 3DP, KT11 — £3,500,000 • 1 bed • 1 bath • 9000 ft²
Office for sale in Park House & Katherine House, South Street, Farnham Surrey, GU9 7QQ, GU9 — £1,500,000 • 1 bed • 1 bath • 5528 ft²


























































