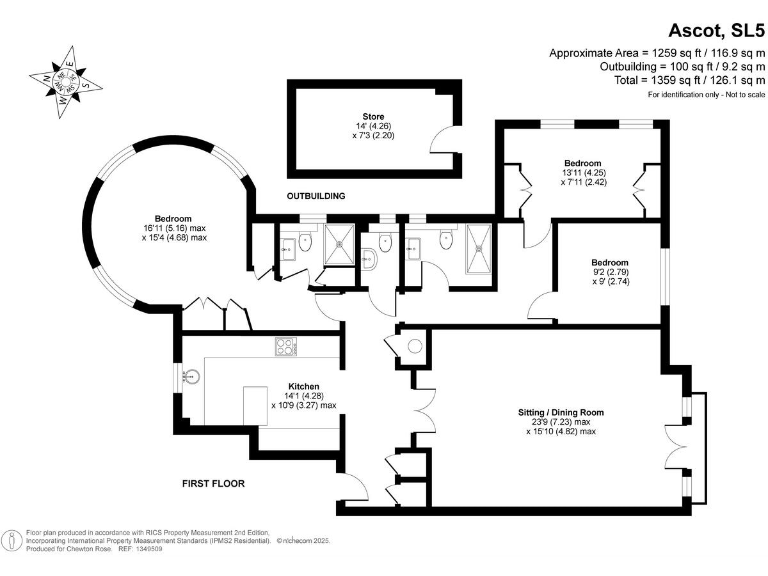
Light-filled first-floor home with garage, storage and lift access.
Three double bedrooms with principal en-suite
Set within the well-regarded Agincourt development, this first-floor three-bedroom apartment occupies part of the building’s turret, creating a distinctive, spacious layout with tall ceilings and large windows. Recently renovated throughout, the home offers a high-spec kitchen, contemporary bathrooms and turn-key presentation — ready to move into. Two allocated underground parking spaces, a private storage room and gated access add daily convenience and security.
The apartment sits in immaculately maintained landscaped grounds with mature trees and cobbled driveways, providing a peaceful setting moments from Ascot town centre. The principal bedroom includes an en-suite bathroom; the living/dining room opens onto a balcony, extending the living space and capturing natural light. Lift access serves all floors, making the property practical as well as elegant.
Practical information is clear: the property is leasehold with 97 years remaining, an average service charge of £3,000 per year and a ground rent of £500. Broadband speeds in the area are reported as slow and council tax is described as expensive. There is no local flooding risk. These running costs and lease details are important for long-term budgeting and should be checked before offer.
2 bedroom flat for sale in Agincourt, Ascot, SL5 — £460,000 • 2 bed • 2 bath • 1143 ft²
2 bedroom apartment for sale in Ascot Corner, Ascot, SL5 — £575,000 • 2 bed • 2 bath • 783 ft²
3 bedroom flat for sale in London Road, Ascot, SL5 — £825,000 • 3 bed • 3 bath • 1765 ft²
2 bedroom apartment for sale in Wells Lane, ASCOT, SL5 — £575,000 • 2 bed • 2 bath • 783 ft²
3 bedroom apartment for sale in Beechgrove, Church Lane, Ascot, SL5 — £1,695,000 • 3 bed • 3 bath • 1917 ft²
2 bedroom flat for sale in Wells Lane, Ascot, SL5 — £495,000 • 2 bed • 2 bath • 909 ft²










































































































































