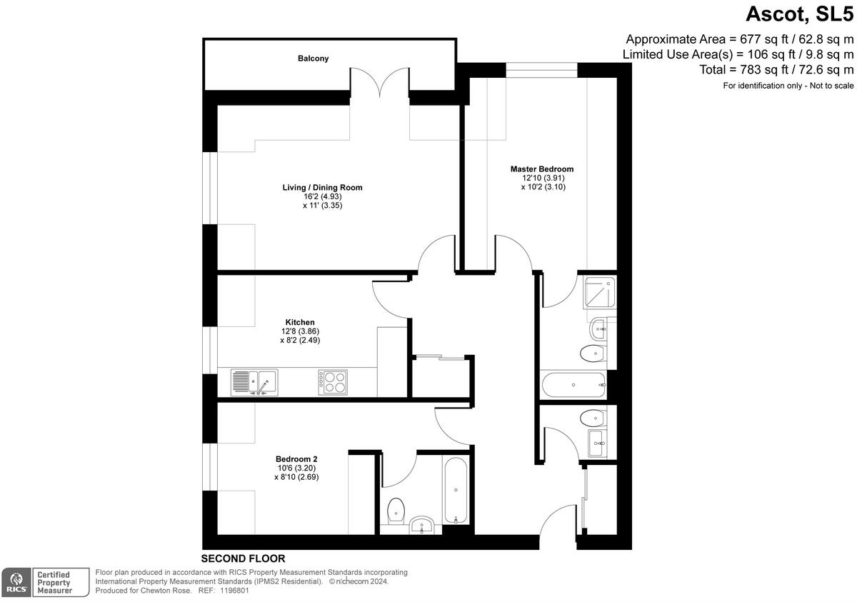
Central Ascot two-bedroom apartment with two parking spaces and balcony.
Two double bedrooms with two ensuite bathrooms and separate WC
Set moments from Ascot High Street and within easy walking distance of St George’s School, this well-presented two-double-bedroom apartment suits families or professionals seeking low-maintenance town living. The split-layout offers two ensuite bathrooms plus a separate WC, a bright open-plan living/kitchen and a balcony/roof terrace that brings daylight into the living space.
Practical conveniences include two allocated underground parking spaces, gated entrance and lift access to the apartment within a small block of just 12 flats. The property is sold as a share of freehold and benefits from high-quality finishes throughout, making it ready to move into with minimal work required.
Notable considerations: heating is via a community scheme which can carry communal management costs, and broadband speeds are reported as slow — important for remote working or heavy streaming. The apartment is an average overall size (around 783 sq ft) and sits in a very affluent area, with good local schools and easy road and rail links to central London.
This apartment will appeal to buyers prioritising location, parking and turn-key presentation, while those needing very fast internet or preferring individual boiler control should factor the communal heating and broadband limitations into their decision.
2 bedroom apartment for sale in Ascot Corner, Ascot, SL5 — £600,000 • 2 bed • 2 bath • 783 ft²
2 bedroom apartment for sale in Ascot Corner, Ascot, SL5 — £500,000 • 2 bed • 2 bath • 1041 ft²
2 bedroom flat for sale in Wells Lane, Ascot, SL5 — £495,000 • 2 bed • 2 bath • 909 ft²
2 bedroom flat for sale in Wells Lane, Ascot, SL5 — £550,000 • 2 bed • 2 bath • 904 ft²
2 bedroom apartment for sale in Grand Regency Heights, Burleigh Road, Ascot, Berkshire, SL5 8FE, SL5 — £425,000 • 2 bed • 2 bath • 943 ft²
3 bedroom apartment for sale in Agincourt, Ascot, SL5 — £600,000 • 3 bed • 2 bath • 1271 ft²






















































