Efficient starter home with parking and private garden for first-time buyers.
Three-storey new-build semi-detached house, modern specification
Top-floor bedroom with en suite; two further bedrooms
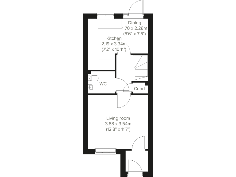
Open-plan kitchen/dining with direct outside access
Downstairs WC and three handy storage cupboards
Energy-efficient construction; double glazing throughout
Small overall size (656 sq ft) — compact rooms and layout
Small garden and plot; modest front landscaping and driveway
Area very deprived with above-average crime; council tax unknown
A three-storey new-build semi-detached house offering a compact, modern home suitable for first-time buyers or small families. The Saunton layout includes an open-plan kitchen/dining room with outside access, a front-aspect living room, and a convenient downstairs WC. The top-floor principal bedroom benefits from an en suite, and three built-in storage cupboards help maximise space in this modest footprint.
At about 656 sq ft the house is deliberately compact: rooms are efficiently planned but smaller than older family homes. The property is energy-efficient and double-glazed, and comes with an off-street driveway and an enclosed garden — practical pluses for everyday living. Broadband speeds are fast and mobile signal is excellent, useful for home working or streaming.
Buyers should note local context: the wider area is classified as very deprived with above-average crime rates, which may affect resale and lettability. Council tax banding isn’t yet available until post-occupation. The plot and garden are small and the internal floor area is limited, so expect tighter living and storage compared with larger family houses.
This property suits someone seeking a low-maintenance, modern starter home with parking and outdoor space, and who values energy efficiency and a compact, well-planned layout. If you need larger rooms or a more affluent neighbourhood, this particular home may feel constrained.
3 bedroom semi-detached house for sale in Queensgate,
Welsh Road,
Deeside,
Flintshire,
CH5 2HJ, CH5 — £269,995 • 3 bed • 1 bath • 656 ft²
3 bedroom detached house for sale in Queensgate,
Welsh Road,
Deeside,
Flintshire,
CH5 2HJ, CH5 — £284,995 • 3 bed • 1 bath • 368 ft²
3 bedroom semi-detached house for sale in Queensgate,
Welsh Road,
Deeside,
Flintshire,
CH5 2HJ, CH5 — £234,995 • 3 bed • 1 bath • 547 ft²
3 bedroom semi-detached house for sale in Queensgate,
Welsh Road,
Deeside,
Flintshire,
CH5 2HJ, CH5 — £234,995 • 3 bed • 1 bath • 547 ft²
4 bedroom detached house for sale in Queensgate,
Welsh Road,
Deeside,
Flintshire,
CH5 2HJ, CH5 — £329,995 • 4 bed • 1 bath • 380 ft²
4 bedroom detached house for sale in Queensgate,
Welsh Road,
Deeside,
Flintshire,
CH5 2HJ, CH5 — £319,995 • 4 bed • 1 bath • 352 ft²














































