Lifetime Lease option for buyers aged 60 or over, reduced purchase price possible.
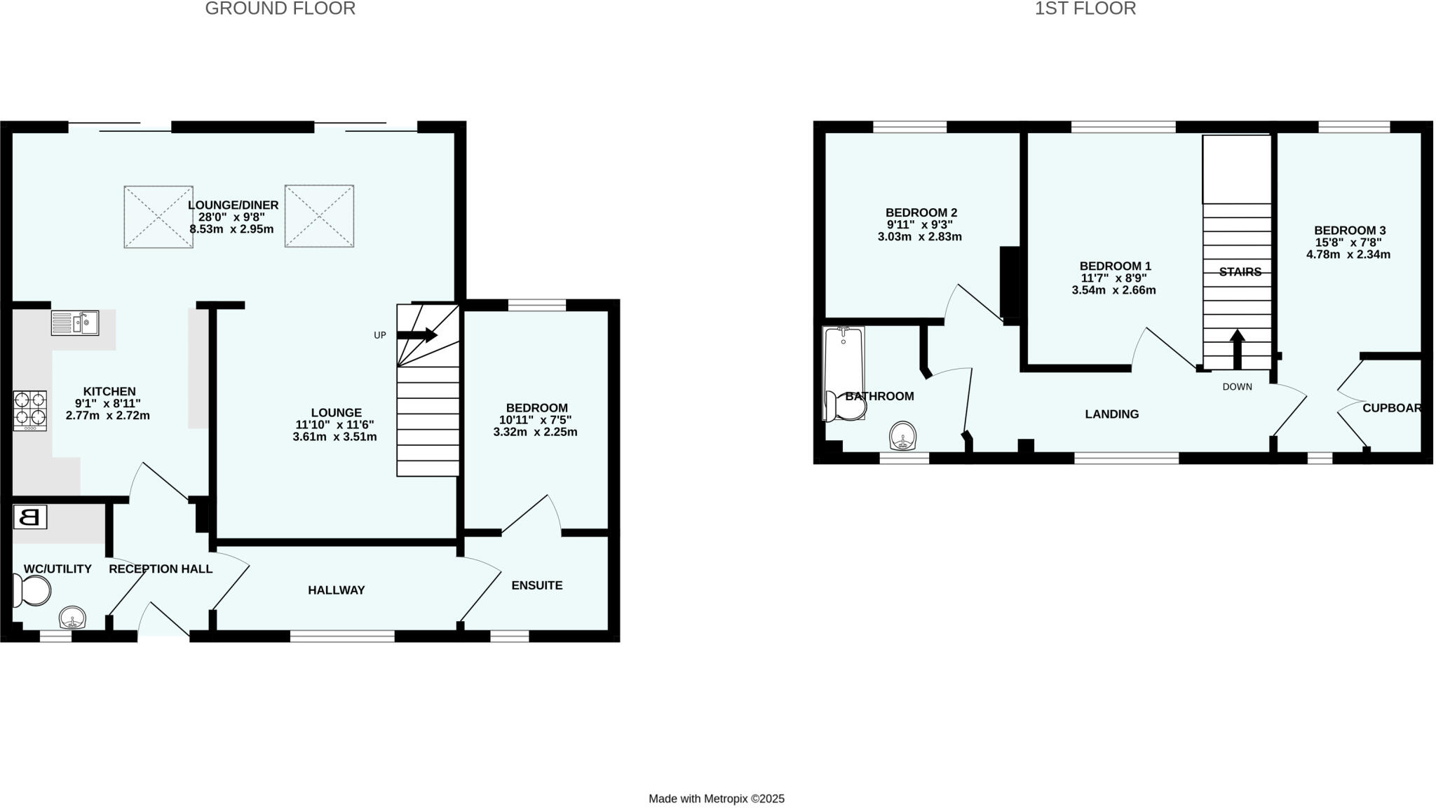
Four bedrooms across multiple storeys, flexible space for guests or hobbies
This four-bedroom semi-detached house on Exe Hill offers a practical retirement option with flexible Home for Life purchase terms for buyers aged 60+. The property combines a traditional post‑war brick exterior with a modern open-plan dining space, a low‑maintenance front garden and a side garage with parking — useful for downsizers who still want extra rooms for guests or hobbies.
The Home for Life Lifetime Lease gives eligible purchasers a reduced purchase price (guide price shown £258,000 based on an average saving). The plan lets you buy up to a 50% share to safeguard value for the future; exact cost depends on age and circumstances. If you are not over 60 you can purchase at the full market price of £385,000 — verify which route suits you before proceeding.
Practical realities are clear: the house is compact at about 882 sq ft across multiple storeys, and tenure details are not confirmed here. The surrounding area is classified as more deprived than average, although local amenities and good mobile and broadband connectivity are positives. All measurements, tenure and services should be checked with your solicitor before committing.
Suitable as a retirement home, this property will appeal to older buyers seeking value and flexibility rather than someone wanting a large, single‑level bungalow. The layout offers scope for modest updating in places, while the modern dining extension/skylight provides a bright focal point.
4 bedroom semi-detached house for sale in Beechfield Avenue, Torquay, Devon, TQ2 — £227,750 • 4 bed • 1 bath • 920 ft²
4 bedroom detached house for sale in Dewberry Drive, Paignton, Devon, TQ4 — £227,750 • 4 bed • 2 bath • 653 ft²
3 bedroom terraced house for sale in Oxenham Green, Torquay, Devon, TQ2 — £147,500 • 3 bed • 1 bath • 900 ft²
5 bedroom terraced house for sale in Crownhill Park, Torquay, Devon, TQ2 — £241,250 • 5 bed • 1 bath • 1202 ft²
4 bedroom end of terrace house for sale in Honeysuckle Close, Paignton, Devon, TQ3 — £191,000 • 4 bed • 2 bath • 1157 ft²
4 bedroom terraced house for sale in Kenwyn Road, Torquay, Devon, TQ1 — £201,000 • 4 bed • 1 bath • 920 ft²


















































































