Lifetime Lease option for buyers aged 60 plus with potential savings.
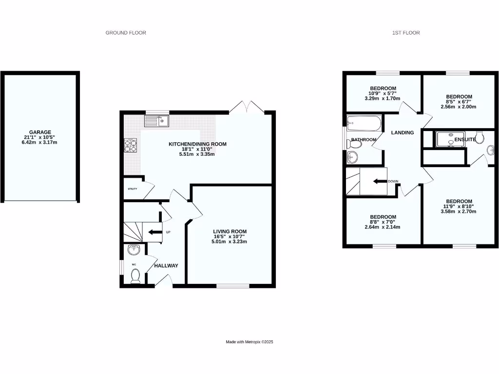
Four bedrooms across two storeys in a compact 653 sq ft footprint
A compact four-bedroom detached home in Paignton presented as a Home for Life Lifetime Lease example for purchasers aged 60+. The property sits on a small plot with a garage and a manageable garden, making it suitable for buyers seeking low-exterior maintenance and secure parking.
Internally the house is contemporary and recently updated in key areas: a bright open-plan kitchen with island and laminate flooring and a well-proportioned living layout across two storeys. Broadband speeds are fast and mobile signal is excellent, while local crime levels are very low — practical benefits for everyday comfort and connectivity.
Important points to note: the listed market value is £340,000 but the Home for Life guide price shown is £227,750 based on an indicative average saving; actual Lifetime Lease cost depends on age, personal circumstances and the share purchased (up to 50%). The property is sold as a shared ownership/Lifetime Lease arrangement here; tenure details must be checked with a solicitor and all measurements verified.
The home is small at about 653 sq ft with a compact plot; the four-bedroom layout is best suited to purchasers who prioritise separate bedrooms over generous living space or who plan modest internal reconfiguration. The local area scores as deprived overall despite very low crime; nearby primary schools are rated Good and transport and town amenities are within reach of this city/major town location.
4 bedroom detached house for sale in Waddeton Drive, Paignton, Devon, TQ4 — £298,250 • 4 bed • 4 bath • 1677 ft²
4 bedroom semi-detached house for sale in Borough Park Road, Paignton, Devon, TQ3 — £217,750 • 4 bed • 2 bath • 1513 ft²
3 bedroom semi-detached house for sale in Occombe Valley Road, Paignton, Devon, TQ3 — £217,750 • 3 bed • 1 bath • 919 ft²
3 bedroom detached house for sale in Grange Heights, Paignton, Devon, TQ4 — £264,750 • 3 bed • 2 bath • 1320 ft²
3 bedroom detached house for sale in Washington Close, Paignton, Devon, TQ3 — £227,750 • 3 bed • 2 bath • 717 ft²
3 bedroom semi-detached house for sale in Cornflower Close, Paignton, Devon, TQ4 — £227,750 • 3 bed • 3 bath • 1023 ft²


























































