Well-presented two-bedroom coastal apartment — private parking and proven holiday-let income.
Allocated off-street parking bay within private courtyard
Bright open-plan kitchen/living room with Juliet balcony
Two bedrooms: principal bedroom includes en-suite shower room
Leasehold: approximately 103 years remaining, ground rent £100
Electric storage heating; main fuel is electricity (higher running costs)
EPC D; council tax band A (lower tax but moderate efficiency)
Limited external space — small balcony and communal courtyard only
Currently run as a successful holiday let (investment potential)
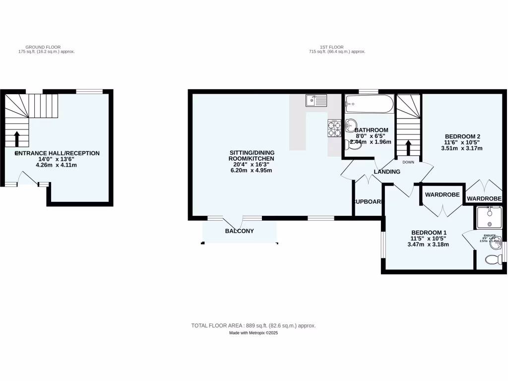
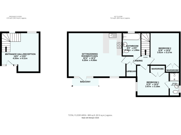
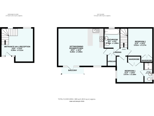
Situated in the heart of Porthleven, this well-presented two-bedroom first-floor apartment offers low-maintenance coastal living close to the harbour and village amenities. The large open-plan kitchen/living room and Juliet balcony provide bright, airy communal space, while two bedrooms (principal with en-suite) make the layout suitable for couples, small families or holiday-let operation.
Practical features include an allocated off-street parking bay within the courtyard, double glazing and electric storage heating. The property is leasehold with about 103 years remaining and a modest ground rent of £100 — important considerations for buyers and investors. EPC rating D and council tax band A reflect running-cost realities.
Currently run successfully as a holiday let, the apartment presents an immediate income opportunity for investors or a ready-to-move-in base for someone wanting a town-fringe coastal home. Note that external amenity space is limited to small balconies and a communal courtyard, and the main heating is electric storage heaters, which may affect long-term running costs compared with mains gas.
1 bedroom apartment for sale in St. Elvans Courtyard, Porthleven, TR13 — £199,950 • 1 bed • 1 bath • 471 ft²
2 bedroom flat for sale in Ground floor apartment in the village of Porthleven, TR13 — £329,980 • 2 bed • 2 bath • 762 ft²
2 bedroom end of terrace house for sale in Prospect Place, Porthleven, TR13 — £295,000 • 2 bed • 1 bath • 634 ft²
2 bedroom flat for sale in Ground floor flat near harbour, Porthleven, TR13 — £250,000 • 2 bed • 1 bath • 566 ft²
1 bedroom flat for sale in Ground Floor Flat, Peverell Road, Porthleven, TR13 — £132,800 • 1 bed • 1 bath • 377 ft²
2 bedroom ground floor flat for sale in St. Elvans Courtyard, Porthleven, Helston, Cornwall, TR13 — £217,750 • 2 bed • 2 bath • 889 ft²






















































































