High-spec contemporary living with garden and eco credentials near Balham amenities.
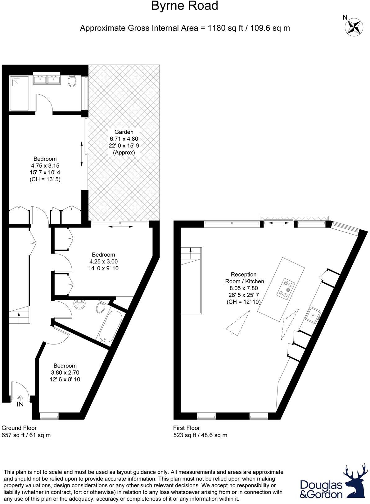
- Freehold three-bedroom mews with two bathrooms
- Dramatic first-floor living with four-metre vaulted ceilings
- Triple glazing, exhaust-air heat pump, underfloor heating
- Private courtyard garden with patio and planters
- 10-year new-build warranty and high-spec kitchen island
- Split-level layout involves multiple stair flights
- 1,180 sq ft — average overall internal size
- Inner-city location; local crime level reported as average
This freehold three-bedroom mews home in SW12 offers bright, high-spec living across a careful split-level layout. A dramatic first-floor open-plan kitchen, dining and living space features four-metre vaulted ceilings, floor-to-ceiling glazing and skylights, creating exceptional natural light and an airy feel. The contemporary kitchen includes a large island, quartz worktops and integrated appliances.
The ground floor places the principal bedroom and ensuite with fitted wardrobes and direct access to a private courtyard garden; two further double bedrooms and a family bathroom complete the layout. Environmentally focused fittings — triple glazing, an exhaust-air heat pump and underfloor heating — reduce running costs and come with a 10-year build warranty for reassurance.
Set within an inner-city, highly qualified neighbourhood close to Balham and Northcote Road, the house is well placed for parks, schools (several rated Outstanding) and strong transport links. Practical extras include bicycle parking and bin storage. Note the split-level plan involves stairs between principal living zones and the urban location has average local crime levels; the property is an average overall size at 1,180 sq ft, so buyers seeking very large lateral space should check room dimensions.
2 bedroom mews property for sale in Byrne Road, SW12 — £975,000 • 2 bed • 1 bath • 933 ft²
3 bedroom house for sale in Byrne Road, SW12 — £1,250,000 • 3 bed • 2 bath • 1180 ft²
3 bedroom terraced house for sale in Southfields Road, Wandsworth, SW18 — £1,100,000 • 3 bed • 3 bath • 1173 ft²
3 bedroom semi-detached house for sale in Kings Avenue, Clapham, SW4 — £999,950 • 3 bed • 3 bath • 1267 ft²
5 bedroom house for sale in Pakefield Mews, Streatham, SW2 — £995,000 • 5 bed • 3 bath • 1806 ft²
3 bedroom terraced house for sale in Southfields Road, Wandsworth, SW18 — £999,000 • 3 bed • 3 bath • 1236 ft²














































































