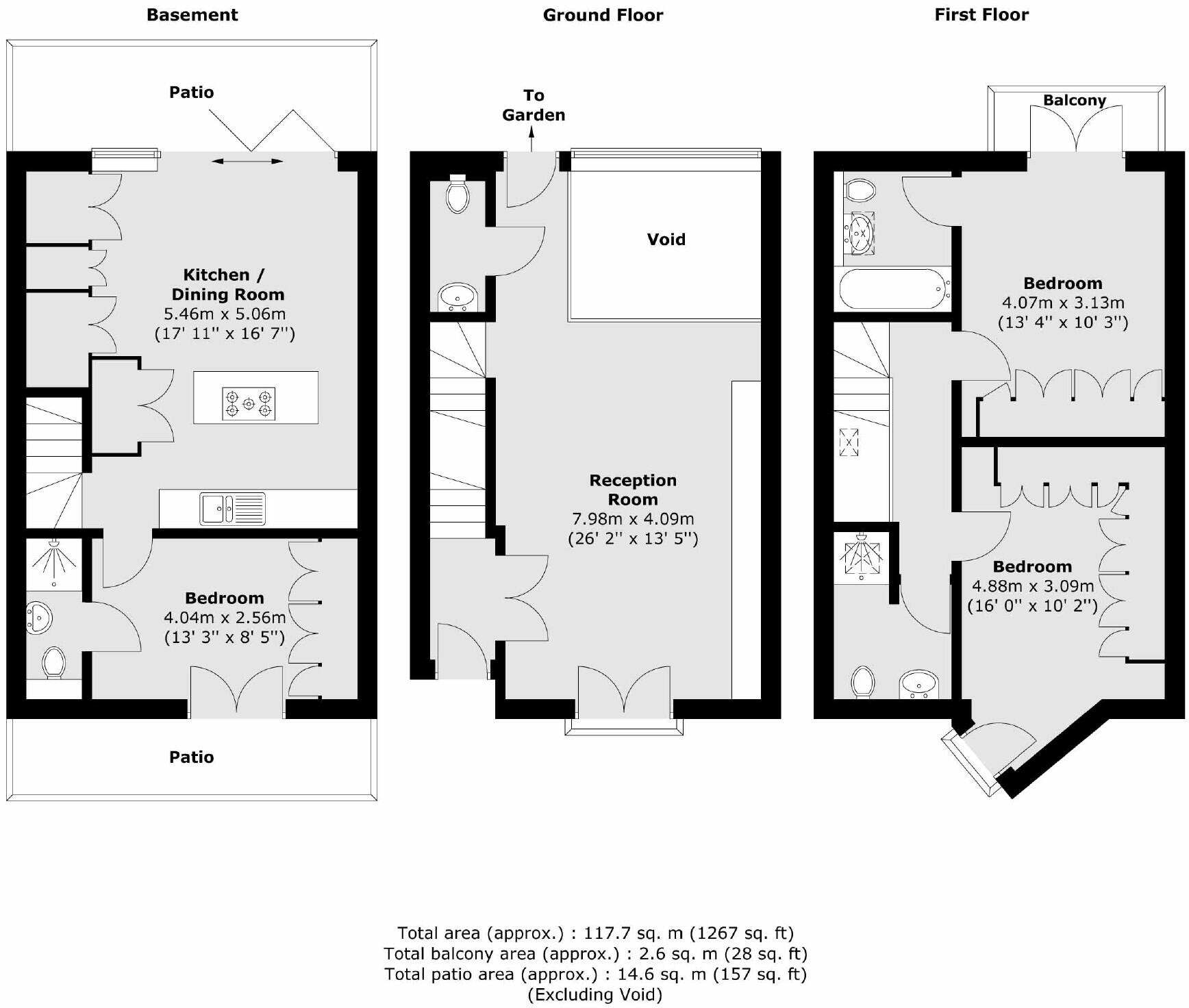
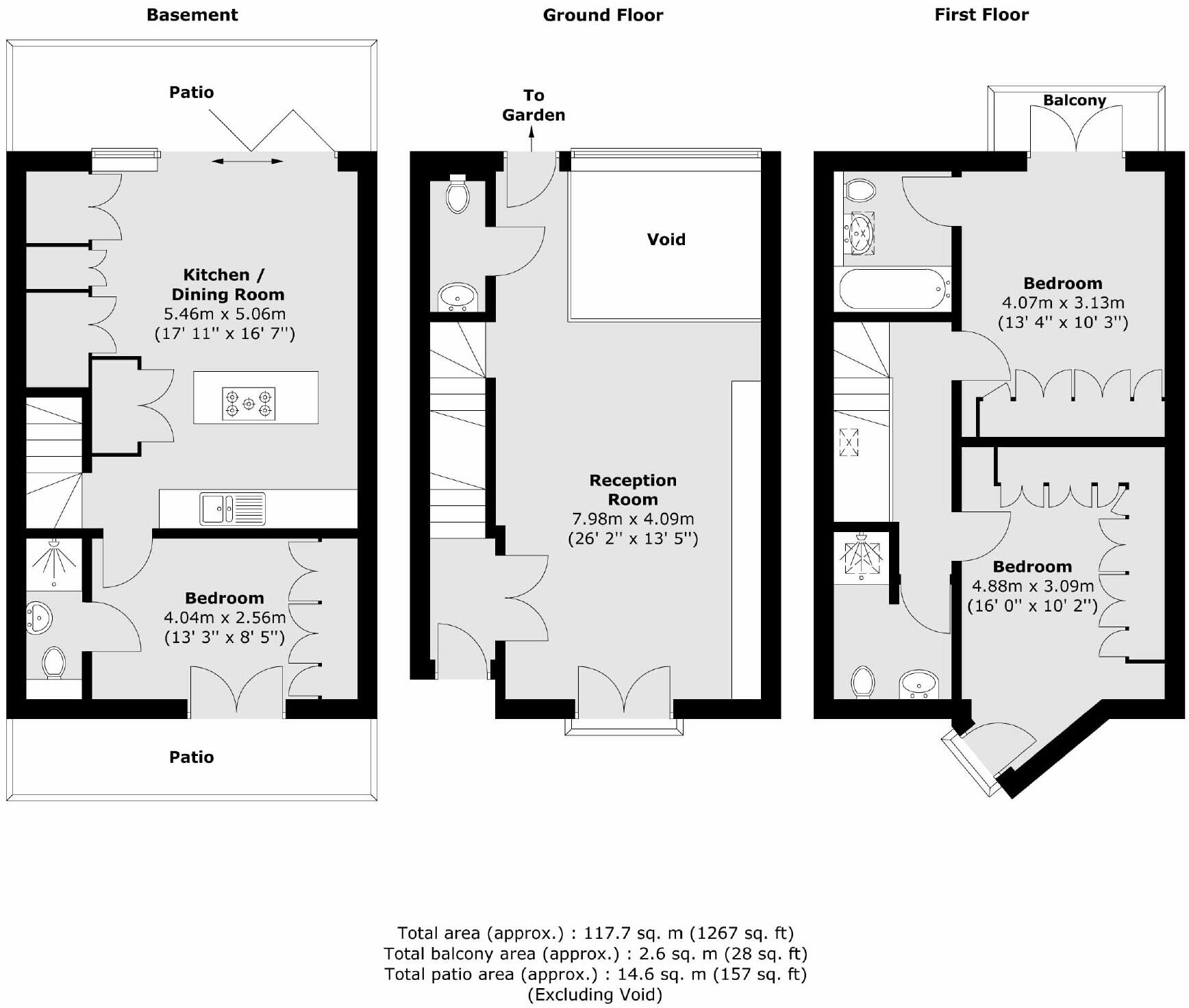
Spacious family home with planning approvals for significant extension and modern energy systems.
Freehold mews house with off-street parking
A rare freehold mews house in SW4 offering generous, well-planned family living across multi-level accommodation. The ground and lower-ground floors provide flexible entertaining space with a bright kitchen and dining area that open via bi-fold doors to a west-facing garden and patio. The house includes three double bedrooms, three bathrooms, a principal balcony and useful built-in storage.
Practical running costs are reduced by underfloor heating and an air-source heat pump. The property is chain free and comes with secure off-street parking — valuable for Inner London living — and Certificates of Lawfulness already granted for a full additional floor and a subterranean garden room (Lambeth refs: 21/04892/LDCP & 22/01454/LDCP). These approvals present clear scope to add value and increase living space subject to works.
Buyers should note some trade-offs for the price: broadband speeds in the area are currently slow and local area deprivation statistics are high, which may affect resale dynamics and everyday convenience for heavy internet users. Council tax sits above average and the property is in an inner-city setting with average crime levels; prospective purchasers should check running costs and local services.
This house will suit a family or buyers seeking a spacious, low-maintenance modern home with immediate living comfort and short-term development upside. It is well placed for Abbeville Village, Clapham and Brixton amenities and several well-rated nearby schools.
2 bedroom house for sale in Flutemakers Mews, Clapham, SW4 — £950,000 • 2 bed • 2 bath • 1269 ft²
3 bedroom semi-detached house for sale in Park Hill, London, SW4 — £2,150,000 • 3 bed • 3 bath • 1736 ft²
1 bedroom house for sale in Flutemakers Mews, London, SW4 — £550,000 • 1 bed • 1 bath • 566 ft²
4 bedroom semi-detached house for sale in Plum Tree Mews, Streatham, SW16 — £1,500,000 • 4 bed • 2 bath • 2340 ft²
3 bedroom semi-detached house for sale in Kings Avenue, London, SW4 — £900,000 • 3 bed • 2 bath • 1345 ft²
4 bedroom terraced house for sale in Fernbank Mews, Clapham South, SW12 — £1,300,000 • 4 bed • 2 bath • 1400 ft²










































































