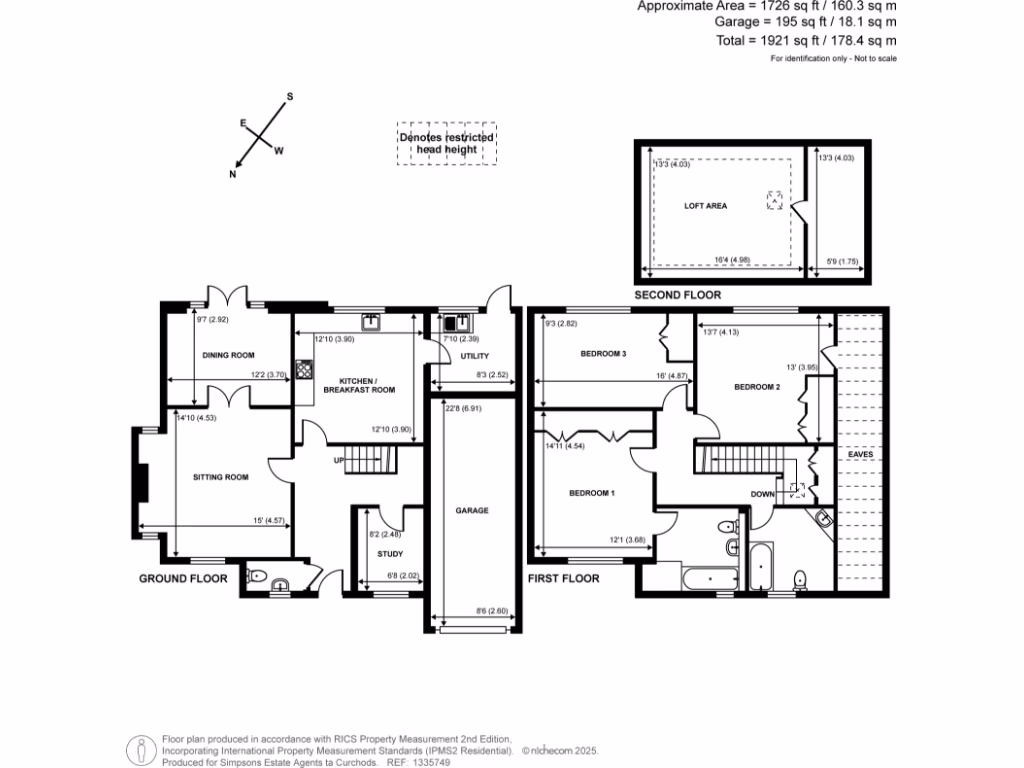
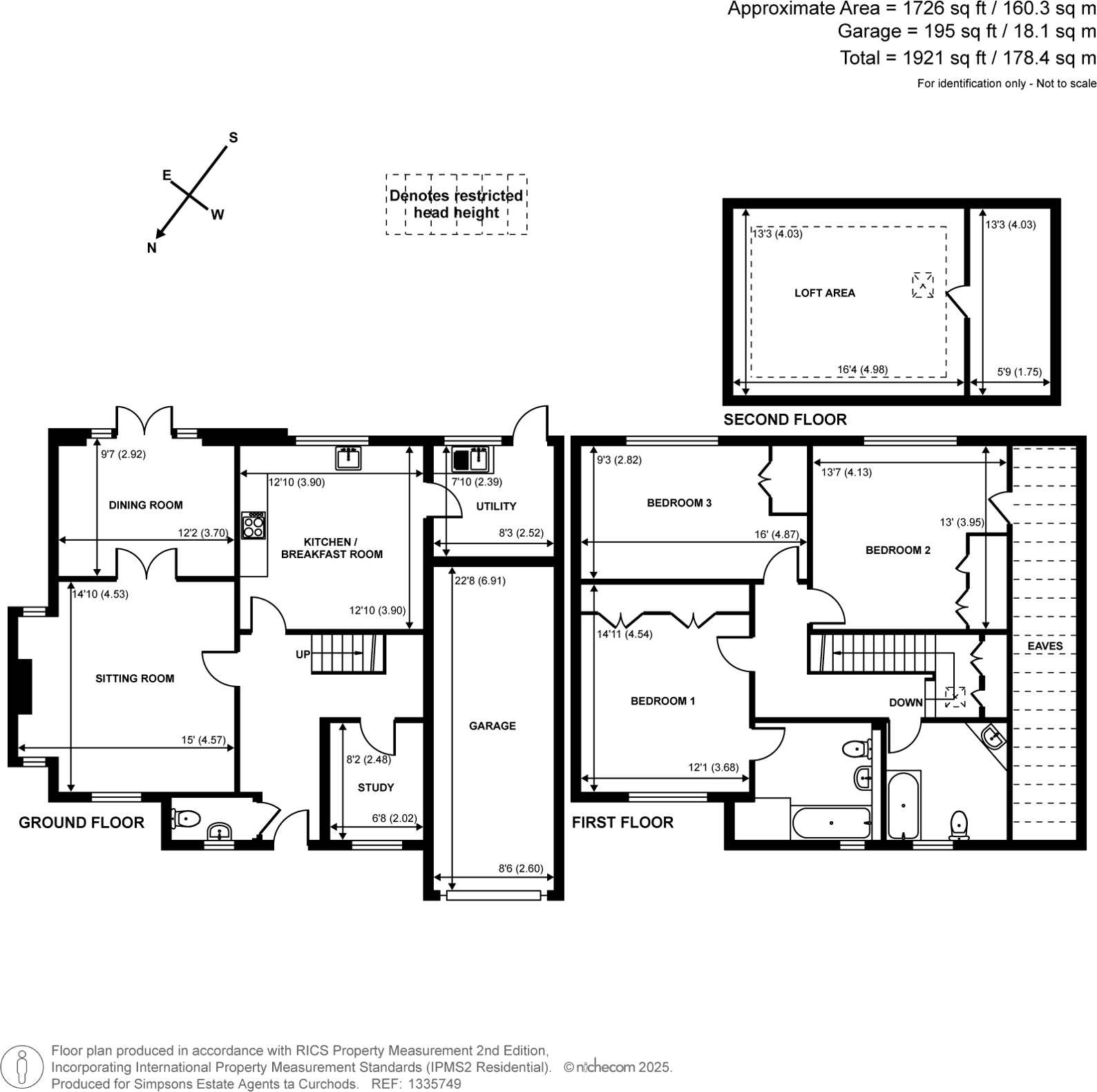
Large, well‑presented three‑bed home near Cobham High Street with garden and garage.
- Over 1,700 sq ft including loft area, three bedrooms, two bathrooms
- South‑east facing landscaped rear garden, good outdoor space
- Double‑length integrated garage with conversion potential (STPP)
- Separate utility room and ground‑floor study / home office
- Short 0.3 mile walk to Cobham High Street and local schools
- Mains gas boiler and radiators; double glazing installed before 2002
- Cavity walls likely uninsulated — energy upgrades may be needed
- Council tax fairly high; local recorded crime levels are high
This spacious three-bedroom detached house sits in the heart of Cobham and offers over 1,700 sq ft of accommodation, including a loft area. The ground floor has a comfortable sitting room with a traditional fireplace, a dining room, kitchen/breakfast room, separate utility and a study — useful for a home office or playroom. Upstairs there are two principal bedrooms (one with en suite), a family bathroom and a further loft/third-floor room. The property is well presented and ready to occupy.
Outside, a south‑east facing rear garden and landscaped front provide pleasant outdoor space for children and entertaining. A double‑length integrated garage and gravel driveway provide parking for several cars, with scope to convert the garage for additional living space (subject to the usual planning consents). The house is quietly positioned about 0.3 miles from Cobham High Street and close to a range of well‑rated schools, local shops and amenities.
Practical benefits include mains gas central heating, double glazing and fast broadband with excellent mobile signal. There is potential to enlarge the property (STPP) for growing families or to add value. The sale is offered with no onward chain, which can speed completion.
Notable drawbacks are presented plainly: council tax is described as quite expensive and local recorded crime is high. The property’s cavity walls were built without insulation and the double glazing appears to pre‑date 2002, so buyers should budget for possible energy efficiency improvements. Any garage conversion or extension will require the usual planning permissions and checks.
3 bedroom detached house for sale in Fairmile Lane, Cobham, KT11 — £1,400,000 • 3 bed • 3 bath • 2081 ft²
5 bedroom detached house for sale in Broad High Way, Cobham, Surrey, KT11 — £2,795,000 • 5 bed • 2 bath • 3991 ft²
3 bedroom detached house for sale in Paddocks Close, Cobham, Surrey KT11 2BD, KT11 — £785,000 • 3 bed • 1 bath • 1578 ft²
6 bedroom detached house for sale in Bramble Rise, Cobham, Surrey, KT11 — £1,495,000 • 6 bed • 3 bath • 2198 ft²
4 bedroom detached house for sale in St. Andrews Gardens, Cobham, KT11 — £825,000 • 4 bed • 2 bath • 1316 ft²
5 bedroom detached house for sale in Waterford Close, Cobham, KT11 — £1,600,000 • 5 bed • 4 bath • 3000 ft²










































































