Spacious family living with modern kitchen and generous gardens.
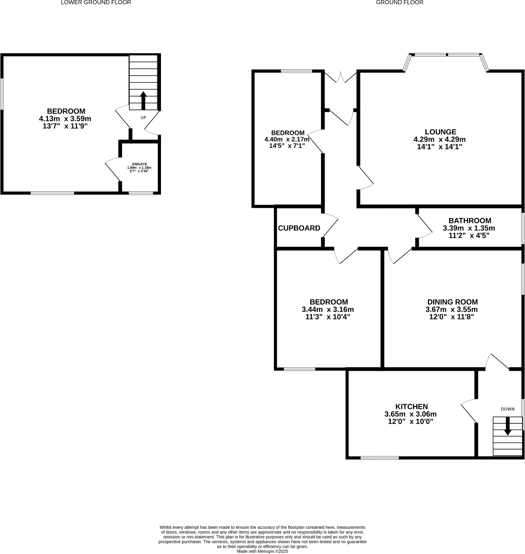
Freehold three-bedroom ground/lower villa with two bathrooms
An attractively presented three-bedroom ground/lower villa combining period character with modern upgrades. The layout includes a bay-windowed lounge, separate dining room, luxury breakfasting kitchen and a master bedroom with a luxury en-suite on the lower level, giving flexible living space for family life or home-working. Gas central heating, double glazing and excellent built-in storage add everyday convenience.
Outside, the property benefits from generous walled garden grounds front and rear, with a large decked area, shrubs and a garden shed — useful for children, pets or low-maintenance outdoor entertaining. The location is particularly convenient, within walking distance of Dunfermline Railway Station, the city centre, parks and local amenities, with easy commuter routes to Edinburgh and the M90.
Buyers should note the neighbourhood data: the immediate area is classified as very deprived and marked as ‘constrained renters’ in local profiling, which may affect resale or rental demand compared with more affluent pockets. The lower-floor master bedroom sits below street level, which may suit some buyers but could feel darker than upper rooms. Overall this is a well-presented period property offering character, practical outdoor space and excellent transport links — suited to families wanting ready-to-move-in accommodation or investors seeking a period conversion with modern comforts.
3 bedroom ground floor flat for sale in 9 Transy Place, Dunfermline, KY12 7QN, KY12 — £415,000 • 3 bed • 2 bath • 1520 ft²
3 bedroom terraced house for sale in 112 Pilmuir Street, Dunfermline, KY12 0PL, KY12 — £359,950 • 3 bed • 2 bath • 1443 ft²
2 bedroom ground floor flat for sale in Thistle Street, Dunfermline, KY12 — £145,000 • 2 bed • 1 bath • 645 ft²
4 bedroom flat for sale in 53 Cameron Street, Dunfermline, Fife, KY12 8DP, KY12 — £319,950 • 4 bed • 2 bath • 1530 ft²
2 bedroom flat for sale in Forth Street, Dunfermline, KY12 — £134,995 • 2 bed • 1 bath • 574 ft²
3 bedroom end of terrace house for sale in 36 Main Street, Cairneyhill, Dunfermline, KY12 — £219,950 • 3 bed • 2 bath • 955 ft²






















































































