Bright two-bedroom home with balcony, generous rooms and quick links to Burgess Park.
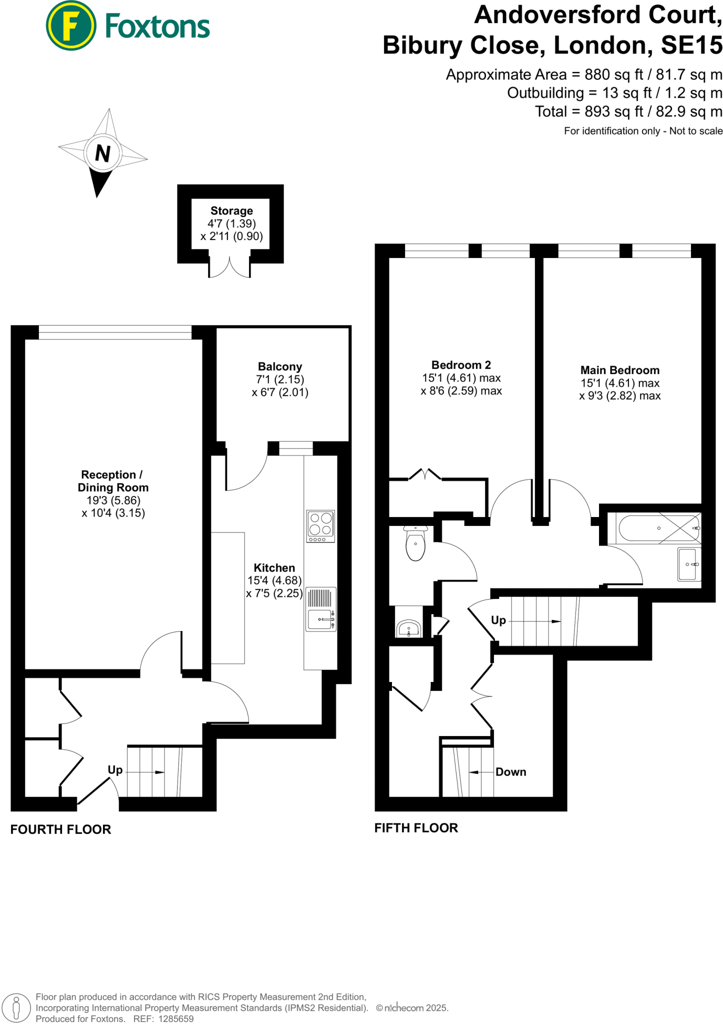
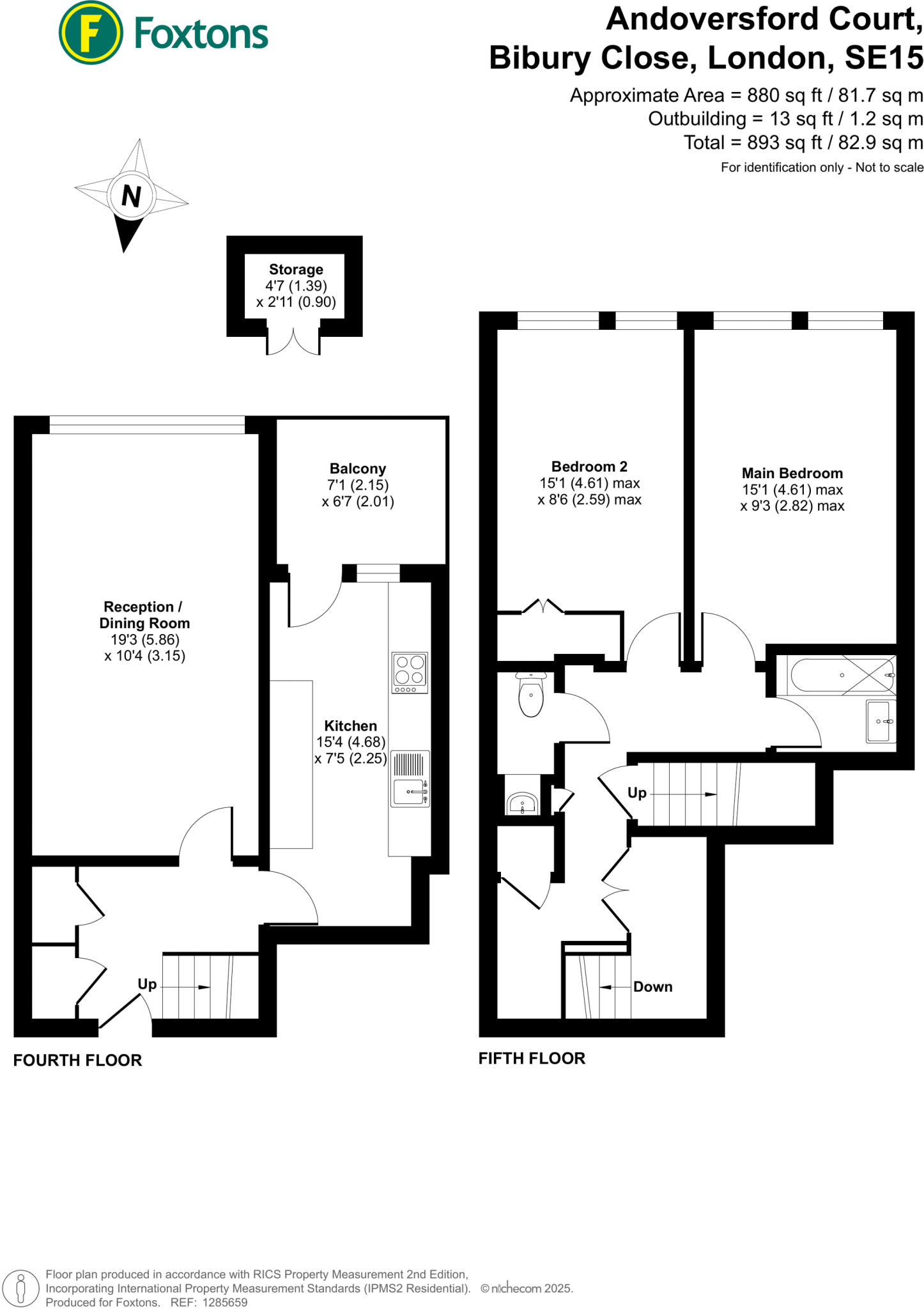
Approx. 893 sq ft split-level maisonette with private balcony
Large bright reception room with wood flooring and big windows
Separate modern kitchen and stylish bathroom plus separate WC
Long lease (114 years) and low ground rent reported (£10)
Cavity walls noted with no recorded insulation; upgrade likely needed
Double glazing present, install date unknown
Built 1967–1975; mid-terrace purpose-built block
Area classified as deprived; crime level average
A spacious two-bedroom split-level maisonette offering generous living space (approx. 893 sq ft) and a private balcony in a well-connected Peckham pocket. The reception room is bright with large windows and wood flooring; the separate modern kitchen and stylish bathroom provide move-in-ready convenience. The layout across two floors gives clear day/night separation and flexible living for couples or sharers.
Practical details suit first-time buyers: a long lease of 114 years, low ground rent (£10 reported) and mains gas central heating with a boiler and radiators. Broadband speeds are fast and mobile signal is excellent, supporting home working. The property sits moments from Burgess Park and local amenities, with a range of good and outstanding primary and secondary schools nearby.
Be upfront about a few material points. The building dates from the late 1960s–1970s and the external walls are cavity construction with no installed insulation recorded, which could mean higher heating costs unless upgraded. Double glazing is present but the installation date is unknown. The area is classified as deprived at a local level, and crime is average — factor this into long-term plans.
Overall this maisonette presents a roomy, contemporary-feeling home with clear potential for modest energy improvements. It will suit first-time buyers or young professionals seeking space, outdoor access and strong local transport and amenity links, while buyers should budget for possible insulation or retrofit works.
2 bedroom maisonette for sale in Cator Street, Peckham, London, SE15 — £325,000 • 2 bed • 1 bath • 682 ft²
2 bedroom flat for sale in Haymerle Road, Peckham, London, SE15 — £300,000 • 2 bed • 1 bath • 700 ft²
2 bedroom maisonette for sale in Willowbrook Estate, Peckham, London, SE15 — £375,000 • 2 bed • 1 bath • 721 ft²
2 bedroom flat for sale in St. Georges Way, London, SE15 — £425,000 • 2 bed • 2 bath • 725 ft²
2 bedroom flat for sale in Garnies Close, Peckham, SE15 — £400,000 • 2 bed • 1 bath • 700 ft²
3 bedroom flat for sale in Alder Close, Peckham, London, SE15 — £375,000 • 3 bed • 1 bath • 807 ft²


























































































































































































































































































































































































