BN43 6WL - 4 bedroom semidetached house for sale in Rosslyn Road, Shor…

View on Property Piper

4 bedroom semi-detached house for sale in Rosslyn Road, Shoreham by Sea, BN43

Summary - 41 ROSSLYN ROAD, SHOREHAM-BY-SEA BN43 6WL

4 bed 2 bath Semi-Detached

Four bedrooms including a downstairs main bedroom
This extended four-bedroom semi-detached home on Rosslyn Road offers comfortable family living a short walk from Shoreham town centre and the mainline station. The house combines generous rooms and period touches — bay windows, high ceilings, cornicing and fireplaces — with a flexible layout that includes a ground-floor bedroom, utility with shower and a dual-aspect open-plan kitchen/dining area.

Outside, the enclosed rear garden and timber outbuilding create private outdoor space for children and pets, plus a low-maintenance patio and a lawned area for play. Off-street parking to the front and side adds practical convenience in this well-connected location, with shops, health centre, schools and a footbridge to Shoreham Beach nearby.

Practical points to note: the property has double glazing (installation date not confirmed) and a gas boiler serving radiators, but cavity walls are assumed to have no internal insulation — so energy-performance improvements may be beneficial. The house presents solid family living now with potential to modernise kitchens, bathrooms or decoration to suit personal taste.

With no onward chain, the home is ready for a buyer seeking immediate occupation or straightforward improvement works to add value. Good local schools and fast broadband make this a strong choice for growing households wanting town-centre convenience and outdoor space.

Property Details

Brochure Descriptions

Image Descriptions

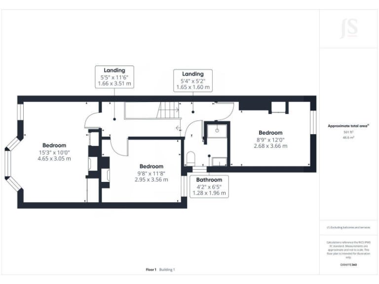
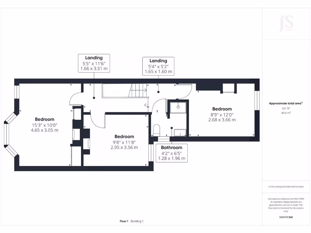
Floorplan Description

Rooms

Textual Property Features

Detected Visual Features

EPC Details

Nearby Schools

Nearest Bars And Restaurants

,,,,}

Nearest General Shops

,,}

Nearest Grocery shops

,,}

Nearest Supermarkets

,,}

Nearest Religious buildings

,,}

Nearest Medical buildings

,,,}

Nearest Leisure Facilities

,,,,}

Nearest Tourist attractions

,,}

Nearest Train stations

,,,,}

Nearest Bus stations and stops

,,,,}

Nearest Hotels

,,}

Tags

Local Market Stats

AirBnB Data

Similar Properties

Meta

High Res Images

Compatible Images

Low res Images

Thumbnails

Raw Images

High Res Floorplan Images

Compatible Floorplan Images

Low res Floorplan Images

FloorplanImages Thumbnail

Raw Floorplan Images