**Standout Features:**
- Chain free with 232 years remaining on the lease
- Private 22-feet wide terrace with sweeping views over Richmond Park
- Bright, open-plan reception area with west-facing windows
- Secure covered parking and efficient heat exchange system
- Access to beautifully maintained communal gardens and residents' gym
**Potential Downsides:**
- Average crime rate in the area
- Above average transportation noise near bus stop
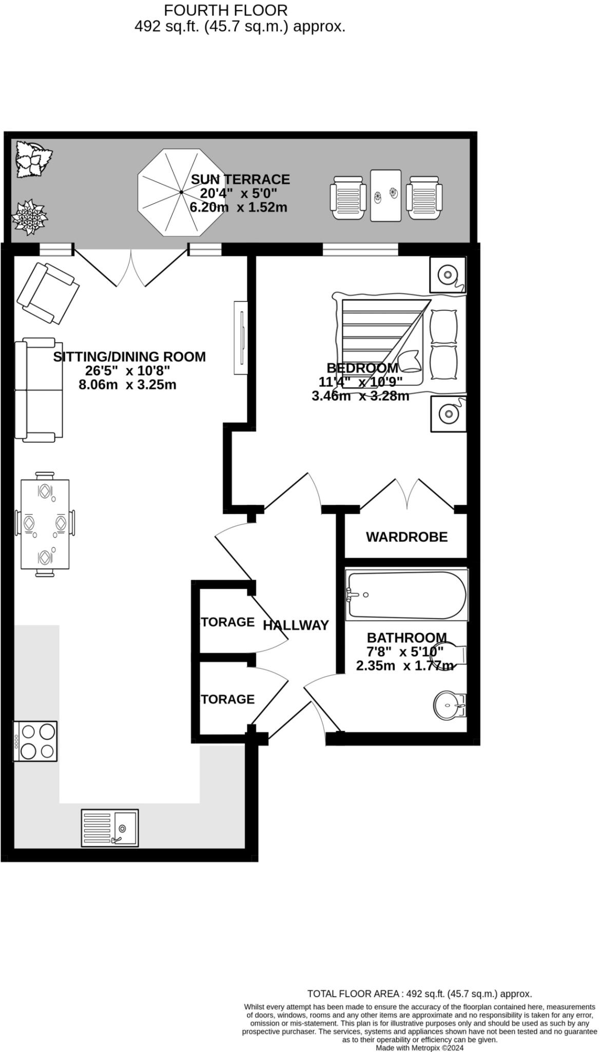
Discover a hidden gem in southwest London with this stunning 1-bedroom flat at Queen Mary's Place. Boasting a private 22-foot wide terrace, the property offers breathtaking views over Richmond Park, providing an ideal outdoor escape in a secure, family-friendly environment. The bright, open-plan layout features a well-equipped kitchen, large west-facing windows, and easy access to communal gardens, allowing for a comfortable and tranquil lifestyle.
This modern flat, constructed in recent years, comes chain free and offers a remarkable 232 years left on the lease. The generous storage solutions, including a utility room, offer added convenience. You'll appreciate the community vibe that permeates the area, while access to local amenities and schools caters perfectly to families and professionals alike. Though located near convenient transport links, be mindful of the average crime rate in the area.
This property stands out not only for its aesthetic appeal and location but also for its renovation potential, making it the perfect opportunity for first-time buyers or investors looking for a solid asset. Don't miss out on this exclusive offering—experience the best of modern urban living combined with serene outdoor charm!
2 bedroom flat for sale in Apsley House, 2 Holford Way, London SW15 5EY, SW15 — £500,000 • 2 bed • 2 bath • 784 ft²
1 bedroom flat for sale in Apsley House, 2 Holford Way, London SW15 5EY, SW15 — £154,000 • 1 bed • 1 bath • 492 ft²
2 bedroom flat for sale in 3 Holford Way, London, SW15 — £450,000 • 2 bed • 2 bath • 1315 ft²
2 bedroom apartment for sale in Avington House, Holford Way, London, SW15 — £475,000 • 2 bed • 2 bath • 1054 ft²
1 bedroom apartment for sale in Holford Way, London, SW15 — £310,000 • 1 bed • 1 bath • 514 ft²
2 bedroom flat for sale in Holford Way, London SW15 5FB, SW15 — £500,000 • 2 bed • 2 bath • 834 ft²










































































