**Standout Features:**
- Chain-free sale with a favorable 232-year lease.
- Stunning private terrace (22 feet) with panoramic views of Richmond Park.
- Modern flat in a secure, family-friendly environment with a communal garden.
- Access to exclusive residents' gym and designated secure parking.
- Convenient access to public transport and nearby green spaces.
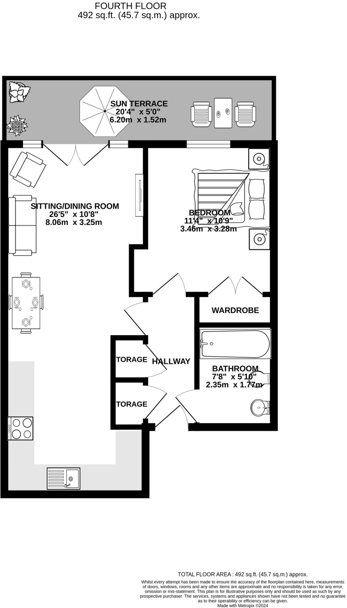
This striking one-bedroom flat in Queen Mary’s Place epitomizes modern urban living, offering a tranquil retreat that's just a stone's throw from Richmond Park and bustling areas like Putney and Wimbledon. At 492 sq. ft., the spacious open-plan layout boasts a bright reception area with west-facing windows, seamlessly flowing to a private terrace that invites relaxation and stunning views. A well-equipped kitchen and generous storage solutions, including a utility room, enhance the functionality of this stylish home. With shared ownership starting at just £154,000 for a 40% share and an attractive service charge, this property is perfect for first-time buyers seeking affordability in a desirable location.
Nestled within a vibrant community, residents enjoy beautifully maintained gardens and quick access to excellent local amenities, schools, and public transport, including nearby bus and train services. However, do keep in mind the above-average crime rate in the area, along with any minor aesthetic upkeep needed on the terrace. This unique opportunity won't last long—experience the comfort, security, and community spirit that Queen Mary’s Place has to offer.
2 bedroom flat for sale in 71 Apsley House, 2 Holford Way, London, SW15 — £375,000 • 2 bed • 2 bath • 784 ft²
1 bedroom flat for sale in Apsley House, 2 Holford Way, London SW15 5EY, SW15 — £385,000 • 1 bed • 1 bath • 492 ft²
1 bedroom apartment for sale in Queen Mary House, Roehampton, SW15 — £75,000 • 1 bed • 1 bath • 513 ft²
2 bedroom flat for sale in Apsley House, 2 Holford Way, London SW15 5EY, SW15 — £500,000 • 2 bed • 2 bath • 784 ft²
1 bedroom flat for sale in Apsley House, Roehampton, London, SW15 — £134,750 • 1 bed • 1 bath • 548 ft²
2 bedroom flat for sale in Apsley House, Roehampton, London, SW15 — £132,500 • 2 bed • 1 bath • 764 ft²














































































