Spacious single-level village home with extensive gardens and countryside outlook.
Five double bedrooms arranged on a single storey
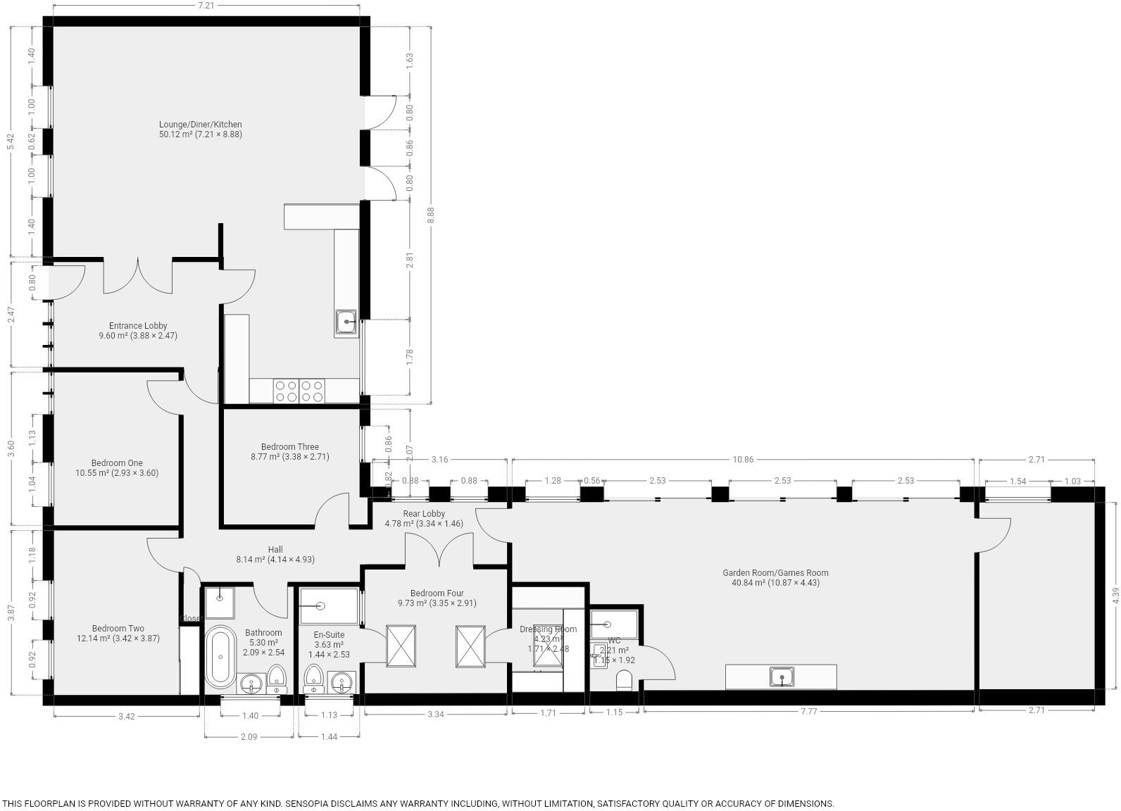
Tucked down Thong Lane in the sought-after village of Shorne, this single-storey five-bedroom barn conversion combines period charm with a recent sympathetic renovation. The converted barn, originally built in 1851 and extended, sits on a very large plot with gated electric entrance, gravel drive and generous off-street parking — ideal for families who value outdoor space and privacy.
The layout is arranged linearly on one level and offers a spacious open-plan lounge/kitchen/dining area, a large games/garden room with three patio doors opening to the rear garden, and five double bedrooms including an en-suite and dressing room to one bedroom. Modern finishes include a fitted kitchen with marble worktops, integrated appliances and contemporary bathrooms, while exposed beams and period radiators retain the building's character.
Practical points to note: heating is from an oil-fired boiler with radiators, and double glazing was installed before 2002. The property has solid brick walls with partial insulation assumed, and while recently renovated, upkeep typical of older buildings (windows, ongoing insulation improvements) should be expected. Broadband and mobile signal are average in the area. The house is offered freehold and chain free, with no flood risk.
Location is a key strength: Shorne Country Park, local schools (including nearby independent options), and transport links to Gravesend and Ebbsfleet stations are within easy reach. This home will suit a family seeking roomy single-level living with countryside views, or buyers wanting a period property with contemporary living spaces and scope to personalise remaining details.
5 bedroom detached house for sale in Tanyard Hill, Shorne, DA12 — £1,750,000 • 5 bed • 5 bath • 4300 ft²
6 bedroom detached house for sale in Ashen Grove Road, Otford Hills, TN15 — £1,600,000 • 6 bed • 4 bath • 4586 ft²
5 bedroom detached house for sale in Honeymellow Cottage, Bowesden Lane, Shorne, DA12 — £1,100,000 • 5 bed • 3 bath • 1957 ft²
5 bedroom detached house for sale in Ide Hill, Sevenoaks, Kent, TN14 — £1,650,000 • 5 bed • 4 bath • 5233 ft²
5 bedroom detached house for sale in Pett Road, Stockbury, Sittingbourne, Kent, ME9 — £850,000 • 5 bed • 4 bath • 2645 ft²
4 bedroom detached house for sale in Butchers Hill, Shorne, Gravesend, Kent, DA12 — £850,000 • 4 bed • 2 bath • 2048 ft²






































































































































