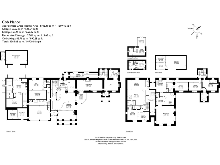
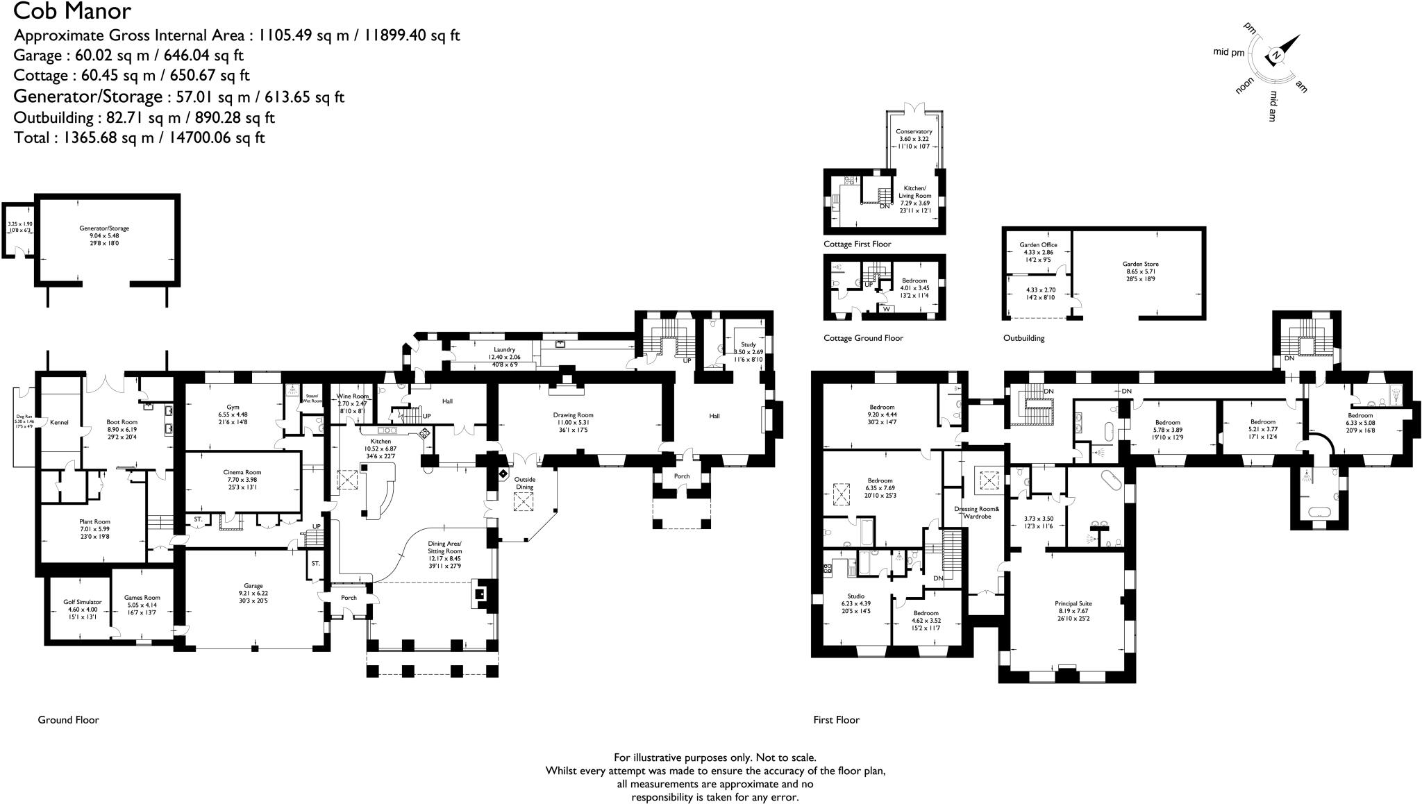
Expansive stone manor with seven acres and versatile guest accommodation.
Elevated private position with uninterrupted Ribble Valley views
Approximately seven acres including paddocks, ornamental pond and specimen trees
Principal suite plus five en-suite bedrooms and separate guest suite
Detached one-bedroom cottage for guests or dependent relatives
Ground-source heat pump, underfloor heating and 21kW solar panels
Private sewerage system; broadband described as very slow (B4RN referenced)
Double gated driveway, ample parking, monitored alarm and CCTV
Council tax banding noted as quite expensive; EV charging provision unconfirmed
Set within about seven acres of private grounds, Cob Manor is a substantial stone-built manor offering long-distance views across the Ribble Valley to Pendle Hill. The house combines historic character with extensive modern systems: ground-source heat pumps with underfloor heating, 21kW of solar panels, Control4 home automation, monitored alarm and CCTV. Landscaped gardens, ornamental water features, paddocks and a detached one-bedroom cottage add flexible living and guest accommodation.
Internally the layout suits family life and entertaining — multiple reception rooms including a drawing room, dining room, cinema, gym, games room and a guest suite with independent living facilities. The principal suite and five further en-suite bedrooms provide significant family or guest capacity; high-quality fixtures and dressed stonework are consistent throughout.
Practical considerations are noted: the property uses a private sewerage system and broadband is very slow (B4RN is referenced), while council tax is described as quite expensive. The site includes outbuildings, a generator and ample parking accessed via electric double gates; EV charging provision is not confirmed. These are important operational details for ongoing running costs and connectivity.
Cob Manor will suit buyers seeking an exceptional rural family home with extensive grounds, strong period character and modern energy systems. It is a rare, large-scale country property in a sought-after village location with good access to Clitheroe and wider transport links, but prospective buyers should factor in service arrangements, broadband limitations and higher local taxes when considering the purchase.
8 bedroom detached house for sale in Grindleton, Lancashire, BB7 — £4,250,000 • 8 bed • 8 bath • 14700 ft²
5 bedroom detached house for sale in Slaidburn Road, Waddington, Clitheroe, BB7 — £1,700,000 • 5 bed • 5 bath • 6017 ft²
5 bedroom detached house for sale in Talbot Bridge, Bashall Eaves, Clitheroe, Lancashire, BB7 — £2,250,000 • 5 bed • 2 bath • 3078 ft²
4 bedroom barn conversion for sale in Edisford Road, Clitheroe, Ribble Valley, BB7 — £850,000 • 4 bed • 2 bath • 2672 ft²
6 bedroom detached house for sale in Osbaldeston, Near Blackburn, Lancashire, BB2 — £3,000,000 • 6 bed • 5 bath • 6940 ft²
8 bedroom detached house for sale in Cliviger Laithe Estate, Red Lees Road, Burnley, BB10 — £1,750,000 • 8 bed • 6 bath • 9180 ft²


































































































































