Bright refurbished flat moments from Hyde Park and Notting Hill Gate station.
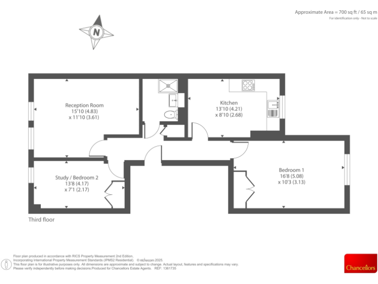
Two double bedrooms in a freshly refurbished period conversion
South-west facing reception room with plentiful natural light
Approximately 700 sq ft — comfortable two-bed layout
Long lease: about 168 years remaining (from 24/06/1983)
Ground rent £200 per year (small)
Heating via community electricity scheme — consider running costs
Solid brick walls with likely limited insulation — potential energy upgrade
Council tax above local average; local crime reported above average
This bright two-bedroom period conversion in Clanricarde Gardens offers a newly refurbished interior and an abundance of natural light in a prime Notting Hill location. The south-west facing reception room and eat-in kitchen provide a comfortable day-to-day layout for a couple or first-time buyers seeking central London living close to Hyde Park and Notting Hill Gate station.
At about 700 sq ft the flat delivers two double bedrooms and good built-in storage, presented to a high standard after recent renovation. The property benefits from a long lease (circa 168 years remaining from 1983) and a modest ground rent (£200), making it straightforward for mortgage and long-term ownership planning.
Buyers should note a few practical points: heating is provided via a community electricity scheme, and the building’s solid brick construction likely has limited wall insulation, which may affect energy efficiency. Council tax is above average for the area and local crime levels are reported as above average. These are manageable considerations for purchasers who prioritise location and finish but should be factored into running-cost expectations.
With direct access to the open spaces of Kensington Gardens/Hyde Park, excellent transport links and a cluster of well-regarded schools nearby, this flat is well-placed for both urban convenience and family life. There is also sensible scope to improve energy performance over time, which will add comfort and reduce bills.
2 bedroom flat for sale in Clanricarde Gardens, Notting Hill, W2 — £925,000 • 2 bed • 1 bath • 755 ft²
2 bedroom apartment for sale in Clanricarde Gardens, London, W2 — £1,175,000 • 2 bed • 2 bath • 756 ft²
1 bedroom flat for sale in Clanricarde Gardens, London, W2 — £625,000 • 1 bed • 1 bath • 369 ft²
2 bedroom apartment for sale in Clanricarde Gardens, London, W2 — £775,000 • 2 bed • 1 bath • 661 ft²
2 bedroom flat for sale in Ladbroke Grove, Notting Hill, W11 — £800,000 • 2 bed • 1 bath • 947 ft²
2 bedroom flat for sale in Colville Terrace, Notting Hill, W11 — £1,595,000 • 2 bed • 3 bath • 1027 ft²






















































































