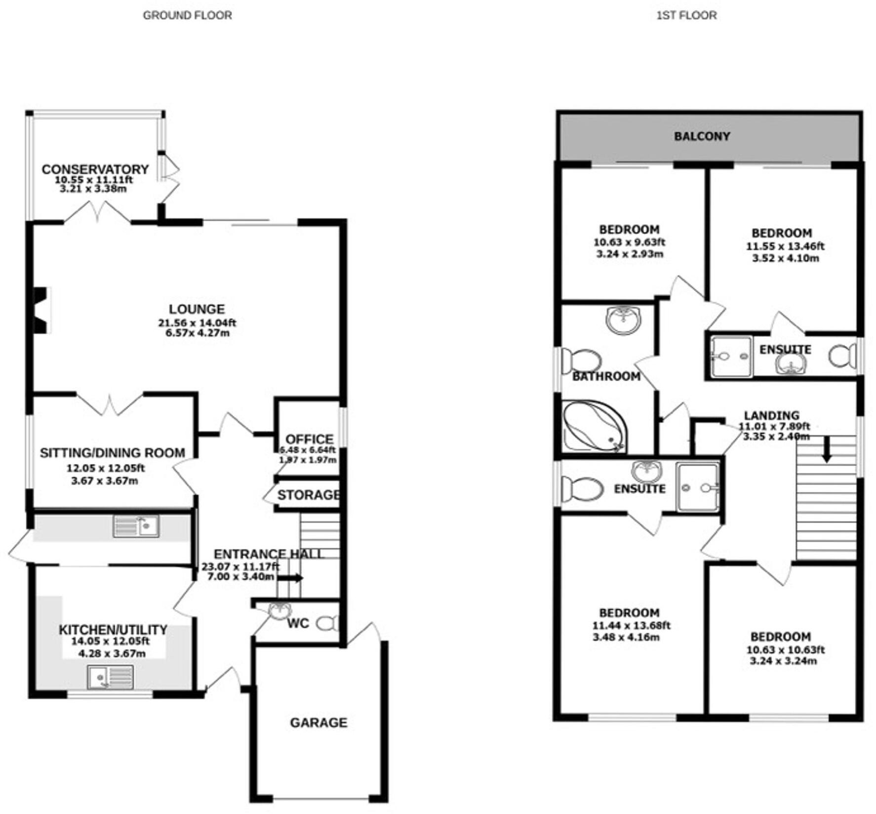
Large garden and scenic rear balcony near Riverside Primary School.
Four good-sized bedrooms with two ensuite shower rooms
This attractive four-bedroom detached home on Lower Road blends period touches with contemporary living across c.1,894 sq ft. The ground floor offers a flexible layout—lounge/diner, separate dining room, study and a Victorian-style conservatory—ideal for family life and entertaining. Two ensuite shower rooms plus a family bathroom give private space for household members and guests.
Outside, the property sits on a large plot with an established 85' rear garden, a balcony with scenic rear views and an attached garage with driveway parking. Riverside Primary School is within easy reach and local buses connect to Rayleigh Station, making school runs and commuting straightforward. The area has very low crime, excellent mobile signal and fast broadband speeds.
Practical details: the house is freehold, has no recorded flood risk and offers good room proportions across roughly 11 rooms. Council tax is classed as expensive — a recurrent running cost to factor into your budget. The home presents as generally well kept but buyers should satisfy themselves by arranging a viewing and survey.
4 bedroom detached house for sale in Lower Road, Hockley, SS5 — £975,000 • 4 bed • 2 bath • 1701 ft²
4 bedroom detached house for sale in Hilltop Avenue, Hullbridge, Hockley, Essex, SS5 — £525,000 • 4 bed • 3 bath • 1774 ft²
4 bedroom detached house for sale in Temple Way, Rayleigh, SS6 — £600,000 • 4 bed • 3 bath • 1475 ft²
4 bedroom detached house for sale in Causton Way, Rayleigh, SS6 — £500,000 • 4 bed • 1 bath • 1249 ft²
4 bedroom detached house for sale in Heron Gardens, Rayleigh, Essex, SS6 — £500,000 • 4 bed • 2 bath • 1269 ft²
4 bedroom detached house for sale in Hambro Avenue, Rayleigh, SS6 — £500,000 • 4 bed • 2 bath • 1206 ft²






































































































