SO30 2DR - 2 bedroom end of terrace house for sale in Avon Road, Curbr…

View on Property Piper

2 bedroom end of terrace house for sale in Avon Road, Curbridge, SO30

Summary - 22, AVON ROAD SO30 2DR

2 bed 1 bath End of Terrace

Contemporary 2-bed end-terrace with garage, driveway and landscaped garden — ready to move in.
Two double bedrooms; main bedroom with en-suite
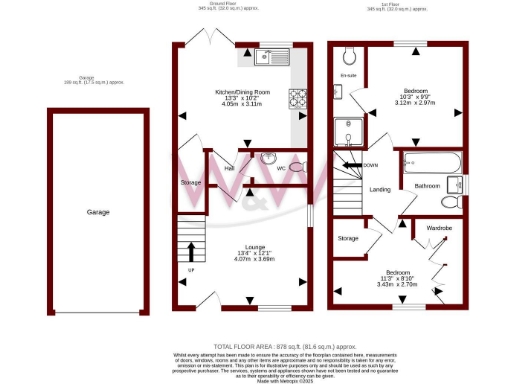
Built in 2021/22, this two-bedroom end-of-terrace offers modern, low-maintenance living on the Whiteley Meadows development. The house feels fresh throughout with Karndean flooring on the ground floor, an open-plan kitchen/dining room with double doors to a landscaped rear garden, and practical storage including a garage with power and driveway parking.

The layout suits first-time buyers or small families: two double bedrooms (main with en-suite), a separate lounge, ground-floor cloakroom and a contemporary family bathroom. Connectivity is strong — fast broadband and excellent mobile signal — and Botley station is about 1.5 miles away for rail links to Southampton and London.

Buyers should note some material points: the plot is small and rear outlook is over neighbouring properties rather than open countryside. The development has an estate management charge (approx. £197.76 pa) and the area records above-average crime compared with national levels. Schooling will be a long-term benefit once the development’s planned schools open.

Overall, this freehold, gas-heated home combines new-build convenience, efficient modern construction and useful parking/garage space. It will suit buyers seeking a turn-key starter home in a semi-rural village setting with good transport and local amenities nearby.

Property Details

Brochure Descriptions

Image Descriptions

Rooms

Textual Property Features

Target Audience

AI Tags

Detected Visual Features

EPC Details

Nearby Schools

Nearest Bars And Restaurants

,,,,}

Nearest General Shops

,,}

Nearest Grocery shops

,,}

Nearest Supermarkets

,,}

Nearest Religious buildings

,,}

Nearest Medical buildings

,,,}

Nearest Airports

}

Nearest Leisure Facilities

,,,,}

Nearest Tourist attractions

,,}

Nearest Train stations

,,,,}

Nearest Bus stations and stops

,,,,}

Nearest Hotels

,,}

Tags

Local Market Stats

AirBnB Data

Similar Properties

Meta

High Res Images

Compatible Images

Low res Images

Thumbnails

Raw Images

High Res Floorplan Images

Compatible Floorplan Images

Low res Floorplan Images

FloorplanImages Thumbnail

Raw Floorplan Images