Period character with modern kitchen, minutes from the Northern Line station.
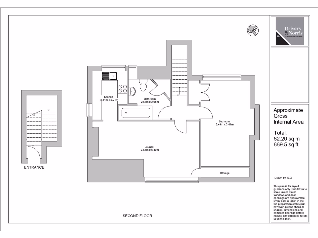
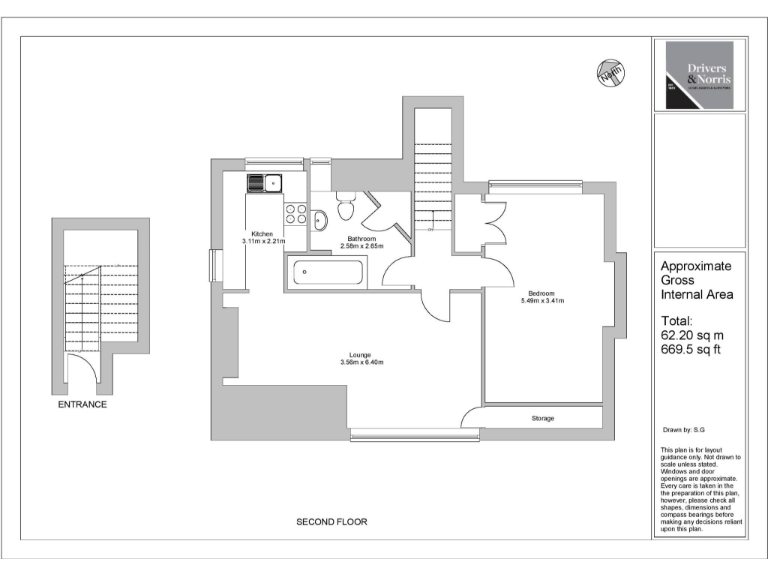
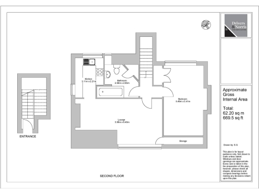
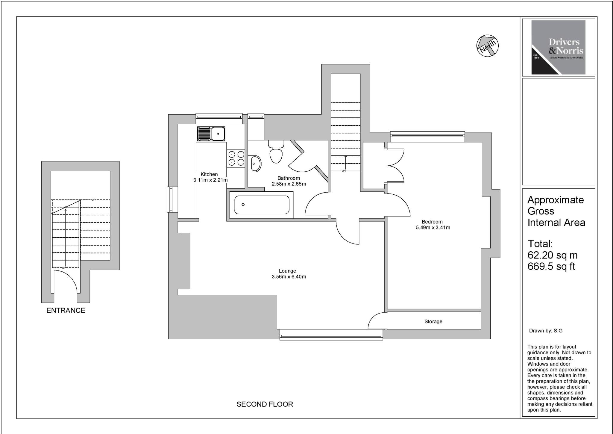
Top-floor one-bedroom conversion, approx. 669 sq ft
Set on a quiet, prestigious Highgate turning, this top-floor one-bedroom apartment occupies the upper level of a striking double-fronted Victorian semi. At around 669 sq ft the flat feels generous for a one-bed, with a large lounge, separate bedroom, modern galley kitchen and bathroom. High ceilings, sash-style windows and period brick exterior give character and plenty of natural light.
Practical benefits include fast broadband, excellent mobile signal, low local crime and very close walking distance to Highgate station (Northern Line) and the cafes, shops and restaurants of Highgate Village. The property is offered chain free and sold as a share of freehold, which will appeal to buyers seeking straightforward ownership.
Buyers should note this is an upper‑floor conversion in an older building (constructed 1900–1929) with timber-frame walls assumed to lack insulation. Double glazing is present but install date is unknown — further checks on thermal performance and sound transmission are advisable. Heating is by mains gas boiler and radiators; council tax is moderate and flood risk is nil.
This apartment suits a first-time buyer or city professional wanting an impressive period setting with modern touches, quick transport links and clear scope to personalise. While well-presented, there is potential to improve insulation and energy efficiency, and the property’s age means prospective purchasers should allow for typical period maintenance and survey checks.
1 bedroom apartment for sale in Highgate Avenue, Highgate, N6 — £330,000 • 1 bed • 1 bath • 346 ft²
1 bedroom flat for sale in Archway Road, Highgate, N6 — £425,000 • 1 bed • 1 bath • 389 ft²
1 bedroom flat for sale in Langdon Park Road, London, N6 — £425,000 • 1 bed • 1 bath • 358 ft²
1 bedroom flat for sale in Archway Road, Highgate, London, N6 — £350,000 • 1 bed • 1 bath • 493 ft²
3 bedroom flat for sale in Archway Road, London, N6 — £800,000 • 3 bed • 2 bath • 1216 ft²
3 bedroom flat for sale in Archway Road, Highgate, N6 — £575,000 • 3 bed • 1 bath • 687 ft²


































