Compact one-bedroom near Highgate Village and Northern Line.
Chain free with share of freehold
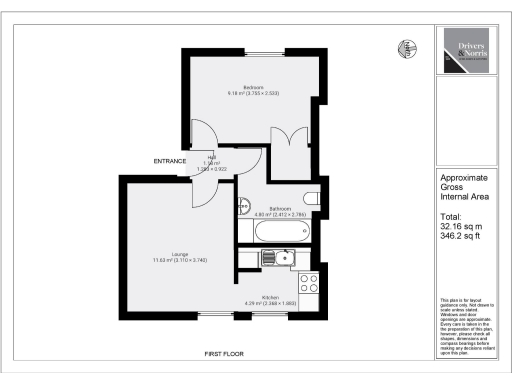
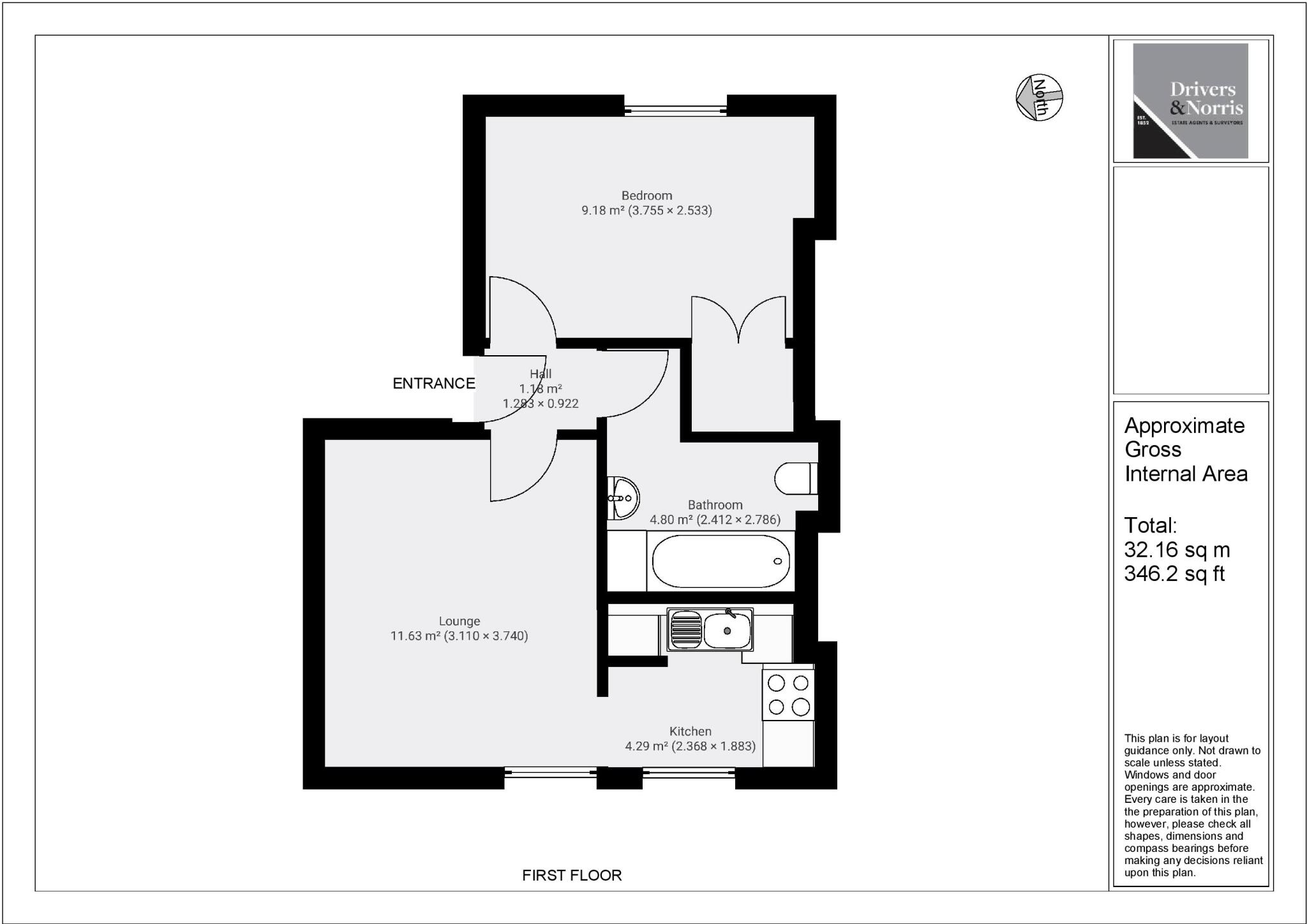
This one-bedroom first-floor conversion sits within an imposing Edwardian semi and is offered chain free with a share of the freehold. At around 346 sq ft it’s compact but well-located on a quiet turning just minutes from Highgate station and Highgate Village’s cafés, shops and amenities.
The apartment has a lounge/kitchen, double bedroom with built-in cupboards, and bathroom. Period character is evident from the exterior; inside the finish is basic and some updating is likely to unlock the property’s potential. Heating is by mains-gas boiler and radiators and the building is solid-brick (no assumed insulation), so buyers should factor possible improvement works and thermal upgrades into their budgets.
Practical positives include a detached garage and driveway parking, low local crime, fast broadband and excellent mobile signal. The area is affluent with highly qualified residents and strong local schools, making it suitable for a first-time buyer seeking a central Highgate base or an investor targeting reliable rental demand.
Important considerations: the apartment is small and will suit those comfortable living compactly. No glazing details are provided and the building age (c.1900–1929) means maintenance or modernization could be needed. There is no flood risk and council tax is described as affordable.
1 bedroom flat for sale in Langdon Park Road, London, N6 — £425,000 • 1 bed • 1 bath • 358 ft²
3 bedroom apartment for sale in Muswell Hill Road, London, N6 — £1,100,000 • 3 bed • 2 bath • 1225 ft²
1 bedroom flat for sale in Milton Road, N8, N6 — £475,000 • 1 bed • 1 bath • 579 ft²
1 bedroom flat for sale in Southwood Lane, Highgate Village, London, N6 — £550,000 • 1 bed • 1 bath • 645 ft²
2 bedroom flat for sale in Archway Rd, Highgate, N6 — £450,000 • 2 bed • 1 bath • 760 ft²
2 bedroom flat for sale in Milton Avenue, London, N6 — £650,000 • 2 bed • 1 bath • 750 ft²














































